Headley Down, Hampshire, GU35

Guide Price
£750,000

3 Bedroom Detached Bungalow for sale in Hampshire

1 3 1

Exceptional level plot (0.6 acres) on the doorstep of Ludshott Common. The current bungalow needs complete renovation or presents the opportunity for a re-build. Vacant possession with no onward chain.

The opportunity to create your own home, to your design and specification Is a reality here. This is a quiet tucked away spot on an unmade road about 100 meters from acres of National Trust heathland at Ludshott Common.

Occupying grounds of just over 0.6 acres, with mature hedging providing complete privacy from passers by. There is scope to open up and landscape these into attractive formal gardens whilst still maintaining a rural feel.

There are two access points to the property; both on Furze Hill Road. The main driveway offers parking and formal driveway access to a detached garage. There is a secondary vehicular access point with double wooden gates further down where a former out building can be found.

Also within the grounds is a greenhouse.

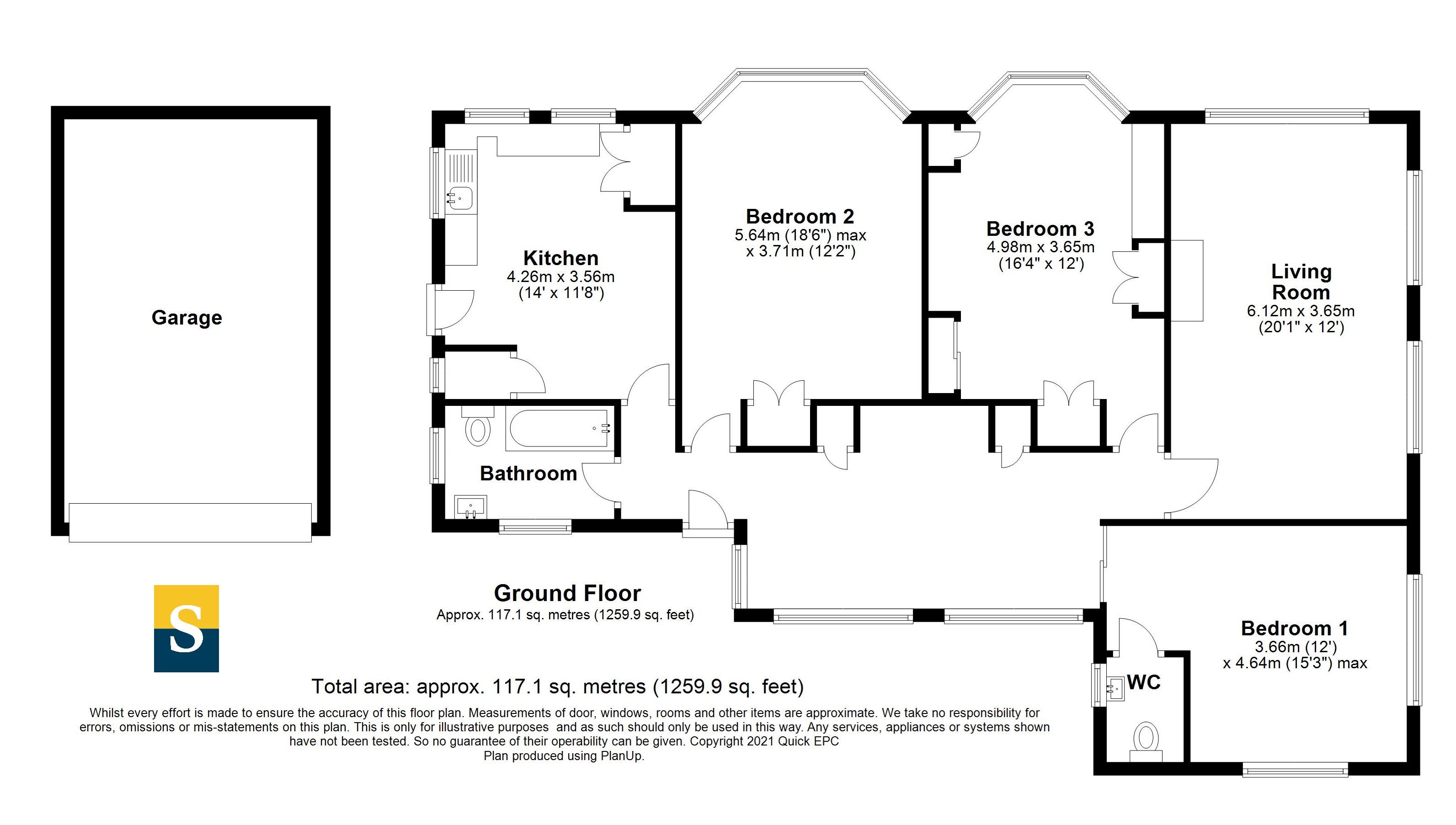
The existing accommodation is arranged as a large entrance hall, double aspect living room with patio doors onto the rear garden, double aspect kitchen, three double bedrooms and a family bathroom. There is scope to modernise and refurbish if desired with the further option to extend STPP, or plan for a more modern replacement dwelling.

Tenure: Freehold   
EPC Rating: G
Council Tax Band: F (Correct at time of publication and is subject to change following a council revaluation after a sale)
Services: The property has mains water, electricity, and mains drainage. Mains gas available to the property but not connected.
Broadband and Mobile services: Visit checker.ofcom.org.uk
Please note:   An overage provision will be included in the sale transfer due to historical planning permission to the grounds. All planning has now lapsed and it is believed the only options now considered by the local council would be a like for like replacement. There would be no overage payable for the erection of one replacement dwelling.

Location: Situated on Furze Hill Road, a popular residential position on the doorstep of Ludshott Common. The neighbouring properties are nearly all detached and of a comparable size and prestige.

Headley Down itself is an attractive rural predominantly residential area, within easy reach of many acres of National Trust common, ideal for walking and riding including Ludshott Common, Arford Common and the more recently formed Headley Down Nature Reserve. In the immediate vicinity is a small convenience store, fuel station and take away. A newsagent and small delicatessen can be found in Headley village. Just a short walk on from Ludshott Common towards Grayshott is Applegarth, a restaurant, farm shop and cookery school.

A wider range of services and shops can be found in Grayshott, whilst high street shopping and mainline stations can be found at Haslemere and Farnham. Access to the A3 with motorway style connections to London, the South Coast and both London Airports is within a few miles.

Also nearby is access to a fantastic selection of private and state schools. Close by are The Holme Primary in Headley, Grayshott Primary, and St Johns in Churt, as well as two superb secondary schools in Bohunt and Woolmer Hill.
Details of private schools are available on request.

Important Information

  • This is a Freehold property.

Property Ref: GRA240229

Share:

Similar Properties

Portsmouth Road, Hindhead, GU26

5 Bedroom Detached House | Guide Price £750,000

A superb detached family home situated in gardens that extend to the rear and side. Designed and built in 2021 by the cu...

Grayshott, Hindhead, Hampshire, GU26

4 Bedroom Semi-Detached House | Guide Price £749,950

A fantastic opportunity for a village centre, 4-bedroom semi-detached character home with large garden and off-road park...

Grayshott, Hindhead, Hampshire, GU26

2 Bedroom Detached Bungalow | Guide Price £735,000

Detached well-presented two bedroom bungalow in a popular cul de sac with level gardens and driveway parking. Offered to...

Grayshott, Hindhead, Hampshire, GU26

4 Bedroom Detached Bungalow | Offers in region of £775,000

A delightfully spacious detached 4 bedroom bungalow, set in mature wrap around gardens on the outskirts of Grayshott vil...

Headley Down, Hampshire, GU35

3 Bedroom Detached Bungalow | Guide Price £775,000

Generous three bedroom detached bungalow situated in charming gardens on a quiet, no through lane close to Ludshott Comm...

Churt, Farnham, Surrey, GU10

4 Bedroom Detached House | Guide Price £775,000

Attractive four bedroom detached house in a quiet cul de sac position in the highly desired village of Churt. Level sunn...

Seymours (Grayshott)

Headley Road, Grayshott, Hampshire, GU26 6LD

01428 771155

How much is your home worth?

Use our short form to request a valuation of your property.

Request a Valuation

Mortgage Calculator

Amount Borrowed: £
Total Amount Repayable: £
Total Monthly Payment: £
©2026 The Guild of Property Professionals. All rights reserved. Terms and Conditions | Privacy Policy | Cookie Policy | Complaints Policy | Members Login
The Guild of Property Professionals Trading Address: 121 Park Lane, London W1K 7AG. GPEA Limited. Registered in England & Wales.  Company No: 02819824.  Registered Office Address: 2 St. Stephen's Court, St. Stephen's Road, Bournemouth, Dorset, England, BH2 6LA.  VAT Registration No: 576 8795 61
Book a Property Valuation Update Cookies Preferences