Headley Down, Hampshire, GU35

Guide Price
£550,000

3 Bedroom Detached House for sale in Hampshire

3 3 1
  • Corner Plot – South facing garden
  • Offered with no Onward Chain
  • Three double bedrooms
  • Driveway and double garage

A well loved Edwardian family home, requiring some modernisation in order to reach it's full potential. Offered with no onward chain. Enclosed level south facing garden with driveway parking and double garage.

Situated in a corner plot the grounds are spacious, as is the accommodation with three reception rooms and three double bedrooms.

Built in 1907, with later additions, part of the house for many years was the village tea room. Since 1957 it has been under the ownership of one family, who happily raised their family here, locally renowned for their village connections having run the village shop, post office and butchers for many years. Presented in good condition with many character features the house now offers scope to be revitalised and enjoyed by a new family.

The boundaries are well defined with either fencing or mature hedging. Driveway access is off Eddeys Lane, providing parking for several vehicles in addition to a detached double garage. Beyond this lie south facing gardens, predominantly laid to lawn, which enjoy sun throughout the day and into the evening.

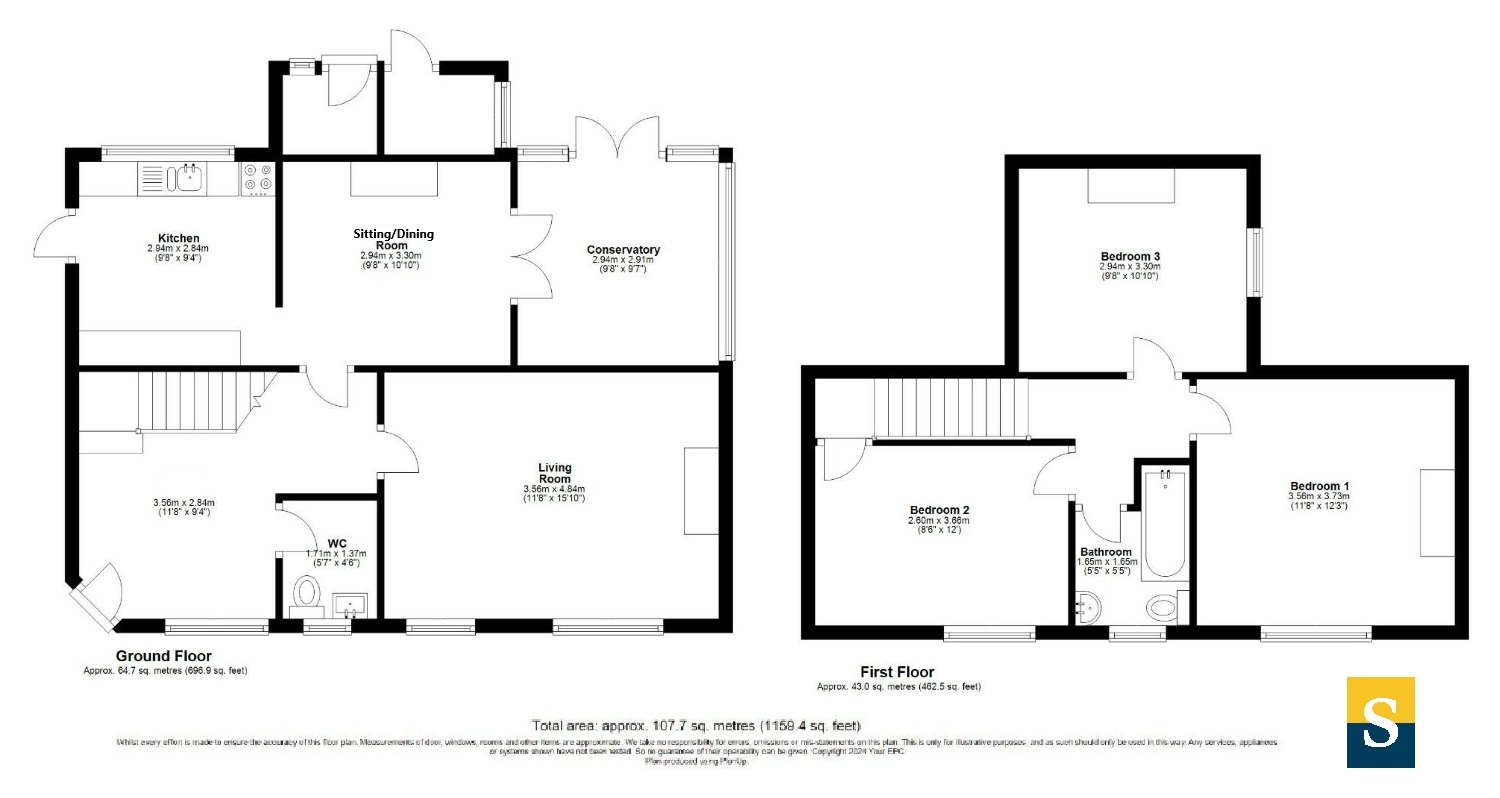
The front door opens into an exceptionally spacious entrance hall, with WC and stairs to the first floor. Off this hallway is your principle reception room, a sitting room with central fireplace to one end.

An additional reception room sits between the kitchen and conservatory and offers several uses including dining room, family room or lounge area, sitting centrally within the room is a beautiful fireplace with characterful tiles and hearth. The conservatory is south facing; a lovely spot to relax or dine overlooking the garden, with a door opening out onto a paved terrace area and the garden beyond.

Completing the ground floor accommodation is the kitchen, which is well equipped with a good range of drawer and cupboard storage, and has an external door out to the side.

Taking to the first floor there are three generous double bedrooms; two of which retain beautiful feature fireplaces, and a family bathroom.

The property has a unique feature in that one of the bricks to the front has been engraved with the date to confirm when it was first laid, by a Mr William Eddey in 1907. The name Eddeys Lane being granted to the lane adjacent to the property.

Situated on the cusp of Beech Hill and Eddeys Lane, a quiet no through road, in the heart of Headley Down, within walking distance of the local corner shop, fuel station and take away, as well as Arford Common, Ludshott Common and Headley Down Nature Reserve. Headley Down is an attractive rural residential area, within easy reach of many acres of National Trust common, ideal for walking and riding. Additional amenities, including a newsagent, a small delicatessen, doctors/pharmacy, and a garden centre, can be found in nearby Headley village. Just a short walk on from Ludshott Common towards Grayshott is Applegarth, a restaurant, farm shop and cookery school.

A wider range of services and shops can be found in Grayshott, whilst high street shopping and mainline stations can be found at Haslemere and Farnham. Access to the A3 with motorway style connections to London, the South Coast and both London Airports is within a few miles.

Tenure: Freehold   
EPC Rating: E
Council Tax Band: E (Correct at time of publication and is subject to change following a council revaluation after a sale)
Services: The property has mains water, electricity, gas fired central heating to radiators and mains drainage.
Broadband and Mobile services: Visit checker.ofcom.org.uk

Important Information

  • This is a Freehold property.

Property Ref: GRA250036

Share:

Similar Properties

Headley, Hampshire, GU35

3 Bedroom Detached House | Guide Price £550,000

Enjoying a tucked away position, close to village amenities is this charming three bedroom home, with lovely garden to b...

Grayshott, Hindhead, Hampshire, GU26

3 Bedroom Detached House | Guide Price £550,000

Well presented village centre detached house with level south west facing garden and off road parking. Offered with no o...

Beacon Hill, Surrey, GU26

4 Bedroom Semi-Detached House | Guide Price £545,000

Four bedroom extended semi in a tucked away quiet position offering generous family accommodation with level garden to t...

Grayshott, Hindhead, Hampshire, GU26

3 Bedroom Semi-Detached House | Guide Price £575,000

Three bedroom semi detached house on the highly regarded Applegarth development offering easy to move into family accomm...

Hindhead, Surrey, GU26

2 Bedroom Detached Bungalow | Guide Price £575,000

Generous detached bungalow within level gardens offering scope to update and modernise. Offered with no onward chain.An...

Hindhead, Surrey, GU26

4 Bedroom End of Terrace House | Guide Price £575,000

Four bedroom house on a no through road close to National Trust land. Driveway parking and garage to the front, level en...

Seymours (Grayshott)

Headley Road, Grayshott, Hampshire, GU26 6LD

01428 771155

How much is your home worth?

Use our short form to request a valuation of your property.

Request a Valuation

Mortgage Calculator

Amount Borrowed: £
Total Amount Repayable: £
Total Monthly Payment: £
©2026 The Guild of Property Professionals. All rights reserved. Terms and Conditions | Privacy Policy | Cookie Policy | Complaints Policy | Members Login
The Guild of Property Professionals Trading Address: 121 Park Lane, London W1K 7AG. GPEA Limited. Registered in England & Wales.  Company No: 02819824.  Registered Office Address: 2 St. Stephen's Court, St. Stephen's Road, Bournemouth, Dorset, England, BH2 6LA.  VAT Registration No: 576 8795 61
Book a Property Valuation Update Cookies Preferences