Kevins Drive, Yateley, Hampshire, GU46

£500,000

3 Bedroom House for sale in Hampshire

3

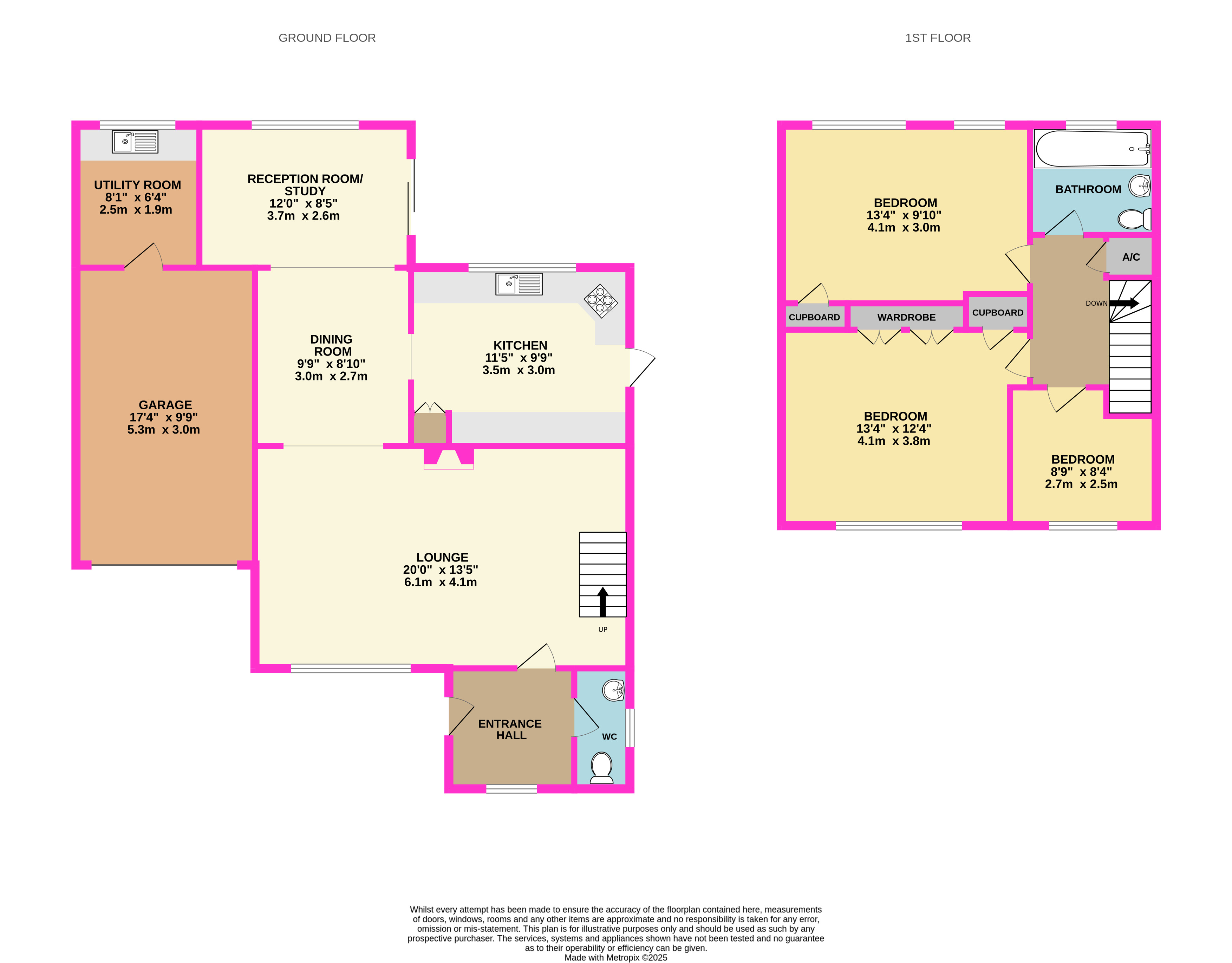
Conveniently situated on this quiet residential road, within a short walk of plenty of woodland walks; including the popular Horseshoe Lake Nature Reserve.
This extended family home boasts versatile bright and airy living space and is located nearby well-regarded schools, local shops and a short drive of the M3 motorway.
Externally, the property features a generous well-maintained garden with side access, an integral garage and driveway parking.
Accommodation of this detached home features the addition of the front porch and downstairs WC, together with a spacious 20ft lounge, dining room, further reception room, utility room and refitted kitchen.
Upstairs there are three good sized bedrooms (two of them doubles) and a refitted family bathroom.
Viewings are highly advised to appreciate the space on offer with this rarely available property!

Important Information

  • This is a Freehold property.

Property Ref: 9768854_CAS250147

Share:

Similar Properties

Cambrian Way, Finchampstead, Wokingham, Berkshire, RG40

3 Bedroom House | £500,000

SIMPLY STUNNING- This charming home forms part of a select collection of properties perfectly positioned around a beauti...

Oak Avenue, Wokingham, Berkshire, RG40

3 Bedroom House | £500,000

THREE LEVELS OF EXCELLENCE - Welcome to this beautifully presented three-bedroom townhouse situated in a desirable locat...

Quiller Avenue, Arborfield Green, Reading, Berkshire, RG2

3 Bedroom House | £490,000

BEAUTIFULLY POSITIONED- If you are keen on the idea of purchasing a new build and are looking for something that is chic...

Merton Ford, Pages Croft, Wokingham, Berkshire, RG40

3 Bedroom Apartment | Guide Price £525,000

noir by david cliff - prestige living, prime locationThis fantastic top-floor penthouse apartment, exquisitely reimagine...

Beaufort Park, Wokingham, Berkshire, RG40

3 Bedroom House | £525,000

IMMACULATE THROUGHOUT- Imagine buying a nearly new home with complete peace of mind — no snagging issues, no new-bu...

Waterloo Road, Wokingham, Berkshire, RG40

2 Bedroom House | Guide Price £555,000

CHARACTER MEETS MODERN - noir by David Cliff Offered to the market with the added benefit of having no onward chain comp...

David Cliff (Wokingham)

Wokingham, Berkshire, RG40 1XJ

0118 989 9770

How much is your home worth?

Use our short form to request a valuation of your property.

Request a Valuation

Mortgage Calculator

Amount Borrowed: £
Total Amount Repayable: £
Total Monthly Payment: £
©2025 The Guild of Property Professionals. All rights reserved. Terms and Conditions | Privacy Policy | Cookie Policy | Complaints Policy | Members Login
The Guild of Property Professionals Trading Address: 121 Park Lane, London W1K 7AG. GPEA Limited. Registered in England & Wales.  Company No: 02819824.  Registered Office Address: 2 St. Stephen's Court, St. Stephen's Road, Bournemouth, Dorset, England, BH2 6LA.  VAT Registration No: 576 8795 61
Book a Property Valuation Update Cookies Preferences