Orme House, Hampton

Asking Price
£2,685,000
SSTC
This property listing is now SSTC

6 Bedroom House for sale in Hampton

5 6 3

A delightful Grade II listed 'William and Mary' home of distinguished provenance.



Commissioned by the crown in 1698, there is little doubt in the merit of such fine architecture, accompanied by a fascinating and timeless history.



Orme House, once the home of crown artist, Thomas Holloway in the early 19th century and formerly acquired by the highly respected Shakespearian actor, David Garrick for 60 years in the 18th century (1717-1779). Also during its tenure were various private educational establishments; The first Ladies Academy in Middlesex c.1770, and latterly a private boarding school covering the mid Victorian era, returning to a residential home by the mid-20th century immediately after WWII.



Prominent architectural features to the façade include; stone steps leading to a carved enrichment Doorcase (inc. flat hood on carved consoles), along with 'square headed' flush framed sash windows adorned with regimented fenestration. In addition, there is excellent stucco-work at ground level, modillion (under eaves) cornice with a small central pediment above, and a distinctive 'weathervane' in gold leaf, sitting proudly on the roof.



Internally typical features include listed marble fireplaces, elegant wide staircases, intricate wall panelling and operational box window shutters.  With all this fine period detail, it is important to note that the current custodians have under taken a sympathetic programme of work - mainly modernisation to kitchen and bathroom facilities - to carry this wonderful home in to the 21st century. 



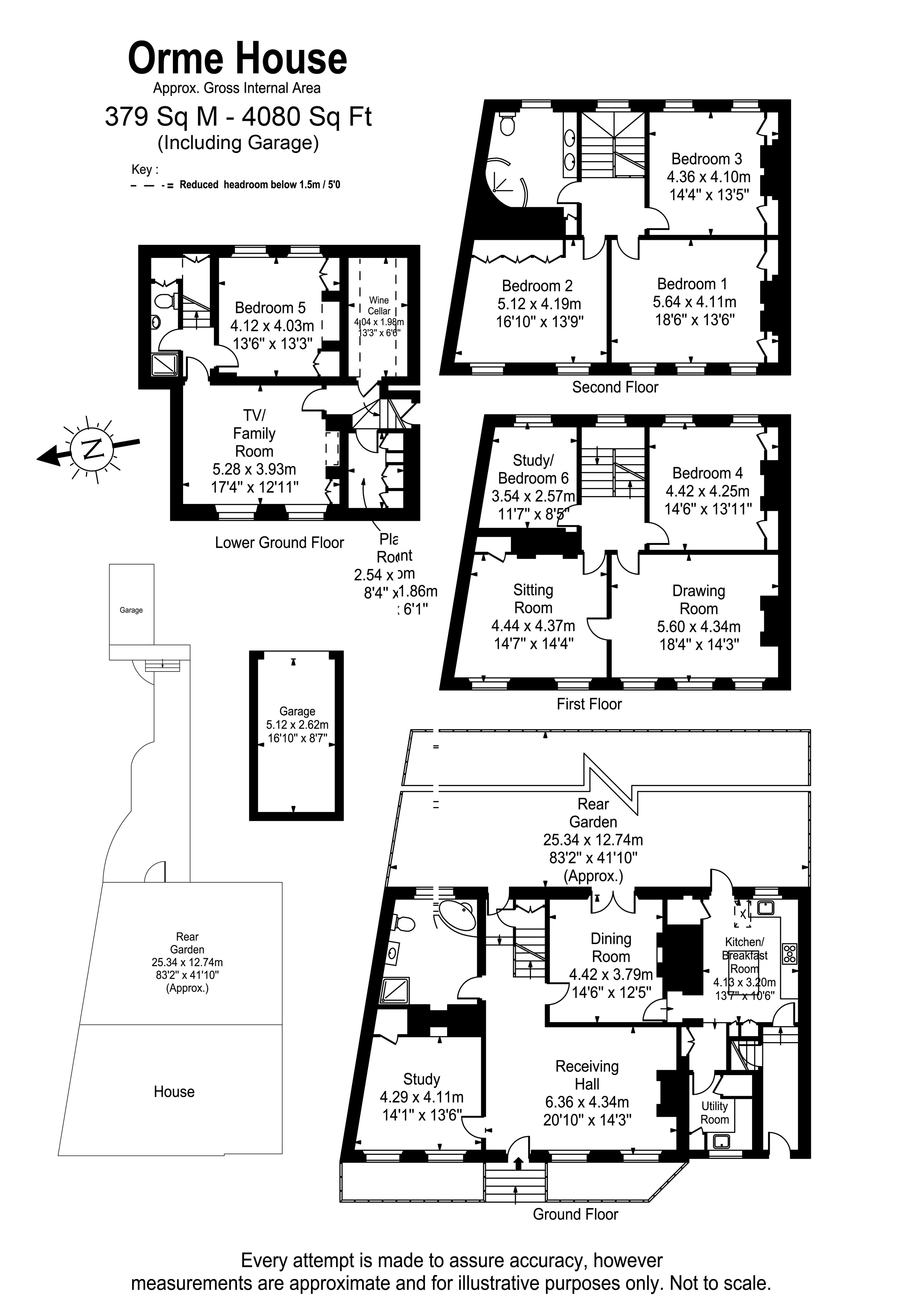
As illustrated in the floor plan provided, the accommodation is spread laterally, over three main storeys plus a basement.  This creates great versatility and functionality with any possible combination of bedrooms, reception rooms and private work spaces.  Principle rooms are of excellent proportion and enjoy lovely window views.  



The house is complimented by a stunning garden extending to 90 feet in depth, extensively planted with specimen plants, trees and shrubs, all centred by a beautifully manicured formal lawn.  Twin terraces are positioned to capture morning and afternoon sunshine, whilst a rear section of land accommodates a practical lock-up store and leads down to a private lock up garage - accessed via Johnson's Drive - with remotely operated garage door.  



Internal floor area: 379 sq ms / 4008 sq ft (inc. garage)



Additional notes:  A detailed resumé of the intriguing history of this fine home, together with a short passage on 17th century architecture is available by application.



Location: The local area is a reflection of both town and country.  On the doorstep of London, Hampton, Teddington and Hampton Court retain the charm and scale of their village origins.  If you wish to combine the pace of urban life with rural peace, this is the ideal location.  These High Streets have a cosmopolitan air with a variety of restaurants, bistros and quality independent retailers and outlets.  There are a surprisingly continental choice of places to eat, whilst parkland and green spaces are abound, with both Bushy Park and Richmond Park being easily accessible. Cultural events such as the annual Flower Show at Hampton Court, or a West End Play at Richmond Theatre will soon return all within a short drive. Waterloo takes just over 30 minutes by train and the West End is about half an hours drive away. Nearby road connections include the M3 and M25, with easy access to Londons international airports in Heathrow and Gatwick.  Immediately on the doorstep (2 mins away) are the banks of the Thames with sailing school, a small marina with mooring and cross river ferry.  On the opposite side of the bank the Thames towpath leads down to the renowned Rowing and Cricket clubs of East Molesey.

 

 

 

 

Important Information

  • This is a Freehold property.

Property Ref: EAXML14612_10303093

Share:

Similar Properties

Seymour Road, East Molesey

5 Bedroom House | Asking Price £2,250,000

A substantial five bedroom, three bathroom, detached family home with extensive off-street parking and a stunning 160ft...

Vine Road, East Molesey

5 Bedroom House | Guide Price £2,250,000

A fine example of a unique detached property boasting particularly attractive elevations set amongst quintessentially Br...

Seymour Road, East Molesey

5 Bedroom Detached House | Guide Price £2,100,000

A handsome detached Edwardian house built in 1910, offering generous proportions, elegant period character, and exceptio...

Hampton Court Road, East Molesey

6 Bedroom Terraced House | Guide Price £2,950,000

A delightful period home of distinction and provenance with an intriguing history dating back to the 16th century*.What...

Queens Road, Richmond

5 Bedroom Detached House | Guide Price £3,000,000

A fine example of an Edwardian detached family residence situated in highly desirable residential neighbourhood on the l...

Miles & Bird (East Molesey)

East Molesey, Surrey, KT8 9HA

020 3875 3875

How much is your home worth?

Use our short form to request a valuation of your property.

Request a Valuation

Mortgage Calculator

Amount Borrowed: £
Total Amount Repayable: £
Total Monthly Payment: £
©2026 The Guild of Property Professionals. All rights reserved. Terms and Conditions | Privacy Policy | Cookie Policy | Complaints Policy | Members Login
The Guild of Property Professionals Trading Address: 121 Park Lane, London W1K 7AG. GPEA Limited. Registered in England & Wales.  Company No: 02819824.  Registered Office Address: 2 St. Stephen's Court, St. Stephen's Road, Bournemouth, Dorset, England, BH2 6LA.  VAT Registration No: 576 8795 61
Book a Property Valuation Update Cookies Preferences