Seward Road, Hanwell, London. W7

£800,000
SSTC
This property listing is now SSTC

3 Bedroom Semi-Detached House for sale in Hanwell

2 3 1
  • 3 double bedroom semi detached period house
  • Off street parking
  • 2 reception room
  • Modern & extended fully equipped kitchen
  • Offered chain free
  • Rear garden
  • Ideal located for a family
  • Potential loft conversion stpp
  • Four piece suite
  • Original period features with functioning fireplace

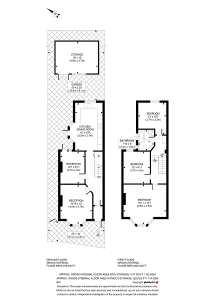
An immaculate & lovely 3 double bedroom period house situated in a highly sought after location. Within this spacious semi-detached property, the ground floor comprises of 2 large reception rooms with a functioning fireplace, an impressive & extended fully equipped modern kitchen with dining room, hallway includes the original tiled flooring & high ceilings with the original period features intact. On the first floor are 3 good sized double bedrooms and a bathroom with a four piece suite.

At the rear of the property is a large sized garden with part patio and grass and a rear shed ideal for storage. At the front of the property is off street parking for up to 2 cars and a side access to the rear of the property.

There is also potential for a loft conversion stpp.

This property is perfect for a growing family and is offered chain free. For more details & to arrange a viewing please call our office on 020 8998 1118.

Important Information

  • This is a Freehold property.

Property Ref: 127654_PRA10627

Share:

Similar Properties

Milton Road, Hanwell, Greater London. W7

4 Bedroom Terraced House | Offers in excess of £800,000

Spacious and deceptively large 4 bedroom family home situated in the highly desirable Poet's Corner in Hanwell. With sub...

The Mall, Ealing

2 Bedroom Apartment | £790,000

Luxurious selection of 1, 2 & 3 Apartments in the heart of Ealing, a thriving borough, 8 minutes to Central London - an...

Julien Road, Ealing

2 Bedroom Terraced House | £700,000

Charming 2-bedroom terraced home in Ealing, featuring a spacious reception room, conservatory, & large rear garden. Conv...

Brand new 2 bed - The Mall, Ealing

2 Bedroom Apartment | £815,000

Brand new 2-bedroom apartment in Ealing Broadway with floor-to-ceiling windows, a balcony with city views, and a high-en...

Brand new 3 bedroom, West Ealing

3 Bedroom Apartment | £825,000

New 3-bedroom ground-floor apartment with 927 sq ft of space, featuring a southwest-facing balcony and modern finishes....

Somerset Road, West Ealing

3 Bedroom Apartment | £840,650

A selection of BRAND NEW 3 bedroom apartments - be the first to take advantage of this exclusive development!Some units...

Castle Hill Properties (West Ealing)

West Ealing, London, W13 8JR

020 8998 1118

How much is your home worth?

Use our short form to request a valuation of your property.

Request a Valuation

Mortgage Calculator

Amount Borrowed: £
Total Amount Repayable: £
Total Monthly Payment: £
©2026 The Guild of Property Professionals. All rights reserved. Terms and Conditions | Privacy Policy | Cookie Policy | Complaints Policy | Members Login
The Guild of Property Professionals Trading Address: 121 Park Lane, London W1K 7AG. GPEA Limited. Registered in England & Wales.  Company No: 02819824.  Registered Office Address: 2 St. Stephen's Court, St. Stephen's Road, Bournemouth, Dorset, England, BH2 6LA.  VAT Registration No: 576 8795 61
Book a Property Valuation Update Cookies Preferences