High Street, Harlesden, NW10 4SP

Guide Price
£760,000

4 Bedroom Flat for sale in Harlesden

5 4 1
  • Excellent Investment Opportunity
  • Freehold building
  • Combo Retail and Residential
  • Great location
  • Monthly Income
  • Capital Growth

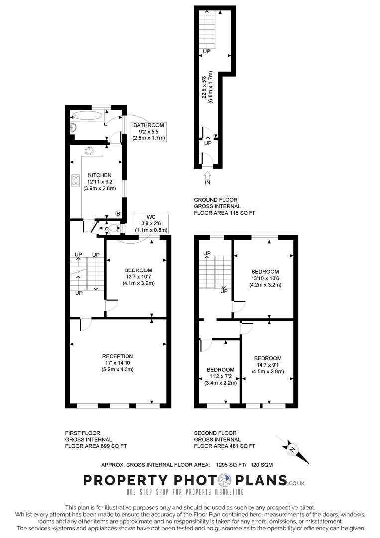
FREEHOLD BUILDING 1 x RETAIL SHOP & 1 x 4 BEDROOM FLAT FOR SALE

Situated on the bustling High Street in Harlesden, NW10 4SP, this property offers a fantastic investment opportunity for those seeking a balance of commercial and residential space. Boasting an impressive 2,438 sq ft, this freehold property features a unique combination of retail and residential space.

The 1,295 sqft flat boasts, 4 bedrooms, 1 large living room, 1 bathroom and well appointed kitchen, the residential area spans over 2 floors, offering a comfortable living space. Rental income ?27,600pa

The retail space, spanning 1143 sq ft, includes a large shop area with a spacious back room a basement ideal for storage or additional workspace and a outside courtyard. Rental income ?17,500pa

Overall, this property presents a rare opportunity to own a versatile space that caters to both commercial and residential needs. Don't miss out on the chance to make this property your own and unlock its full potential in the heart of Harlesden.

Property Ref: 34379727

Share:

Similar Properties

Tunley Road, London

4 Bedroom Semi-Detached House | Guide Price £725,000

CHURCHILL&MATHESONS are delighted to offer FOR SALE this substantial FOUR / FIVE BEDROOM END OF TERRACE FAMILY HOUSE sit...

St. Marys Road, London, NW10 4

4 Bedroom Semi-Detached House | Guide Price £725,000

Situated on St. Marys Road, London, this 2088sqft semi-detached property offers spacious living with four bedrooms and t...

Burns Road, London

4 Bedroom House | £724,950

Four bedroom Victorian mid terraced home located on a quiet residential road providing great accommodation for a growing...

Manor Park Road, Harlesden, London, NW10

6 Bedroom Terraced House | Offers Over £775,000

Churchill Mathesons are delighted to offer this spacious FIVE/SIX BEDROOM MID TERRACE SET OVER THREE FLOORS. The propert...

Harley Road, London, NW10 8

3 Bedroom Terraced House | Guide Price £785,000

Discover a well presented 3-bedroom home on Harley Road, NW10. It offering a blend of comfort and character. Situated in...

Acton Lane, Harlesden, NW10

4 Bedroom House | £824,950

Mathesons are pleased to present to the market this end of terraced Victorian house. The property would make a fantastic...

Churchill Mathesons (Harlesden)

Harlesden, London, NW10 4JT

0208 965 2250

How much is your home worth?

Use our short form to request a valuation of your property.

Request a Valuation

Mortgage Calculator

Amount Borrowed: £
Total Amount Repayable: £
Total Monthly Payment: £
©2026 The Guild of Property Professionals. All rights reserved. Terms and Conditions | Privacy Policy | Cookie Policy | Complaints Policy | Members Login
The Guild of Property Professionals Trading Address: 121 Park Lane, London W1K 7AG. GPEA Limited. Registered in England & Wales.  Company No: 02819824.  Registered Office Address: 2 St. Stephen's Court, St. Stephen's Road, Bournemouth, Dorset, England, BH2 6LA.  VAT Registration No: 576 8795 61
Book a Property Valuation Update Cookies Preferences