Rudding Lane, Follifoot, Harrogate

Offers Over
£500,000
SSTC
This property listing is now SSTC

3 Bedroom Semi-Detached House for sale in Harrogate

3 1

A charming and most individual 2/3 bedroom cottage forming part of the exclusive Rudding Dower estate.

Enjoying an attractive position on the exclusive Rudding Dower estate with far reaching views towards the Park and open countryside on your doorstep.


Rudding Dower is an exclusive development of individual houses being the former mill and estate cottages of the Rudding Park Estate. The extensive facilities of central Harrogate are a few minutes short drive with day-to-day amenities on Wetherby Road. Leeds and York are both within easy commuting distance with the A1 (m) motorway 5 miles to the east. No chain.

Boasting a wonderful mix of contemporary charm and character throughout and during the current ownership, great efforts were made to preserve and upgrade the property both externally and internally with no expense spared. The property also benefits from flexible and well proportioned internal accommodation along with private parking and a well-manicured front garden and rear south facing courtyard. 

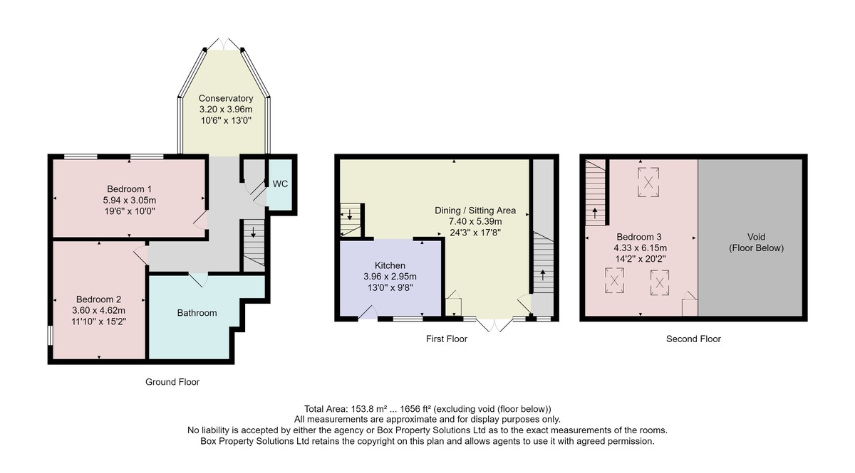
ACCOMMODATION Arranged over three floors the property in brief comprises; Kitchen, with stylish modern units and integrated Miele and Gaggenau appliances, a large sitting dining room with solid wood flooring, multi fuel burner and feature stone walls.

A large second floor mezzanine leads to a third bedroom that also serves as a study
area overlooking the main living space.

To the ground floor is a further reception room/conservatory with french doors to the garden, w/c and two double bedrooms serviced by a large house bathroom with both bath and shower.  

OUTSIDE Outside and to the rear of the property is a south facing courtyard garden and to the front and mainly laid to lawn with well stocked boarders, offering a high degree of privacy.

Fantastic spaces to entertain and enjoy with friends and family.

Parking and a single garage. 

SERVICES Mains water, electricity and draingage are installed. Oil fired central heating. 

DIRECTIONS On entertaining Rudding Dower (off Ruddling Lane) bear left to the lower parking area and April Cottage is situated on the right hand side. 

Property Ref: 56568_100470027739

Share:

Similar Properties

Esplanade Court, St Mary's Walk, Harrogate

2 Bedroom Ground Floor Flat | Offers Over £500,000

A fantastic opportunity to purchase a beautifully presented two bedroom ground floor apartment with private balcony, und...

St Clement's Road South, Harrogate

3 Bedroom Semi-Detached House | Guide Price £500,000

* 360 3D Virtual Walk-Through Tour *An extended and newly refurbished three-bedroom semi-detached house with driveway an...

Copper Close, Knaresborough

4 Bedroom Detached House | Offers Over £500,000

A spacious and beautifully presented four-bedroom detached modern property with garage and attractive garden, forming pa...

Beech Road, Harrogate

4 Bedroom Semi-Detached House | Offers in region of £520,000

**OVER 2,000 SQ FT**A substantially extended and beautifully presented four-bedroom semi-detached home with attractive g...

Grayson House, Beech Grove, Harrogate

2 Bedroom Apartment | £525,000

* 360 3D Virtual Walk-Through Tour *A spacious and well-presented two-bedroom top-floor apartment with lift access, enjo...

Hartley Road, Harrogate

4 Bedroom Detached House | Offers Over £525,000

* 360 3D Virtual Walk-Through Tour *A fantastic opportunity to purchase a well-presented four-bedroom detached home, sit...

Verity Frearson (Harrogate)

Harrogate, North Yorkshire, HG1 1JT

01423 562 531

How much is your home worth?

Use our short form to request a valuation of your property.

Request a Valuation

Mortgage Calculator

Amount Borrowed: £
Total Amount Repayable: £
Total Monthly Payment: £
©2025 The Guild of Property Professionals. All rights reserved. Terms and Conditions | Privacy Policy | Cookie Policy | Complaints Policy | Members Login
The Guild of Property Professionals Trading Address: 121 Park Lane, London W1K 7AG. GPEA Limited. Registered in England & Wales.  Company No: 02819824.  Registered Office Address: 2 St. Stephen's Court, St. Stephen's Road, Bournemouth, Dorset, England, BH2 6LA.  VAT Registration No: 576 8795 61
Book a Property Valuation Update Cookies Preferences