Forest Lane, Harrogate

Guide Price
£365,000
SSTC
This property listing is now SSTC

4 Bedroom Semi-Detached Bungalow for sale in Harrogate

4 2

A well-presented four-bedroom semi-detached dormer bungalow with good sized garden and double garage, situated in this convenient location between Harrogate and Knaresborough.

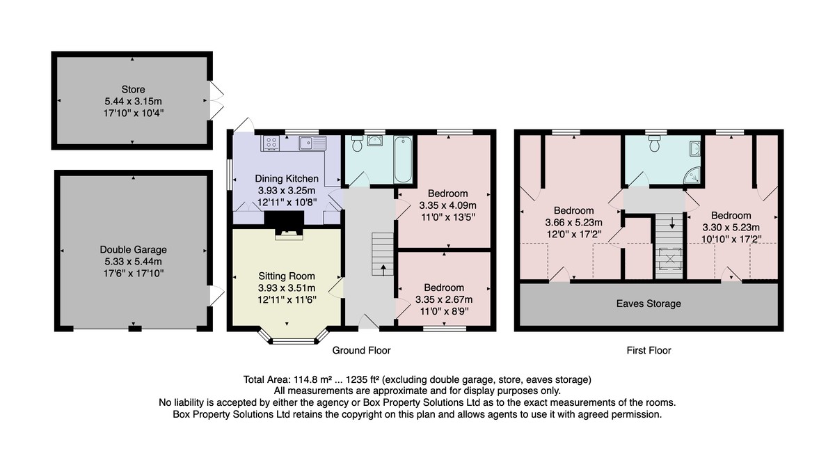
This property provides generous and well-presented accommodation. On the ground floor there is a reception room, two bedrooms, well equipped kitchen and bathroom. Upstairs, there are A further two good-sized bedrooms, bathroom and separate WC. The property benefits from a generous garden to the rear providing an excellent outdoor entertaining space and a double garage with space for parking in front.

Forest Lane is a popular address which is well served by the excellent local amenities of Starbeck including the railway station which is convenient for access to both Harrogate and Knaresborough town centres.  

ACCOMMODATION GROUND FLOOR
On the ground floor the property offers flexible accommodation. This includes two bedrooms, a living room with bay window to the front, a kitchen/dining space and a well-equipped bathroom comprising w/c, wash basin and bath with shower above.

FIRST FLOOR
On the first floor the property has two great sized bedrooms, both with ample storage in the eves. Furthermore, there is the benefit of a shower room with stand alone shower, wash basin and W/C.
 

OUTSIDE To the front of the property there is gravel forecourt garden and a block set side driveway suitable for multiple vehicles leading to the detached double garage. to the rear there is a private southwest facing garden which is fully enclosed with a lawn and a large flagged patio.  

Property Ref: 100470029907

Share:

Similar Properties

Whinney Close, Harrogate

3 Bedroom Semi-Detached House | £365,000

A superb three-bedroom executive-style semi-detached house offering stylish and well-presented accommodation.
The proper...

Heather Way, Harrogate

3 Bedroom Detached House | £365,000

A well-presented three-bedroom detached home featuring an enclosed rear garden, garage, and private driveway, located wi...

Station Lane, Burton Leonard, Harrogate

3 Bedroom Link Detached House | Guide Price £365,000

A three bedroom link-detached home situated in the heart of the highly sought after and fashionable village of Burton Le...

Poppy Close, Knaresborough

3 Bedroom Detached House | Guide Price £369,950

** NO ONWARD CHAIN **A nearly new three bedroom detached house situated on this new and exciting development situated on...

Hutton Gate, Harrogate

4 Bedroom Town House | Fixed Price £370,000

A spacious and well presented three/four bedroomed townhouse offering well proportioned accommodation in this popular an...

Moorland View, Harrogate

4 Bedroom Land | Offers Over £375,000

An exciting opportunity to acquire a rare building plot in Harrogate, with planning permission approved for two four- be...

Verity Frearson (Harrogate)

Harrogate, North Yorkshire, HG1 1JT

01423 562 531

How much is your home worth?

Use our short form to request a valuation of your property.

Request a Valuation

Mortgage Calculator

Amount Borrowed: £
Total Amount Repayable: £
Total Monthly Payment: £
©2026 The Guild of Property Professionals. All rights reserved. Terms and Conditions | Privacy Policy | Cookie Policy | Complaints Policy | Members Login
The Guild of Property Professionals Trading Address: 121 Park Lane, London W1K 7AG. GPEA Limited. Registered in England & Wales.  Company No: 02819824.  Registered Office Address: 2 St. Stephen's Court, St. Stephen's Road, Bournemouth, Dorset, England, BH2 6LA.  VAT Registration No: 576 8795 61
Book a Property Valuation Update Cookies Preferences