Roxborough Avenue, Harrow, HA1

Guide Price
£350,000

2 Bedroom Flat for sale in Harrow

1 2 1
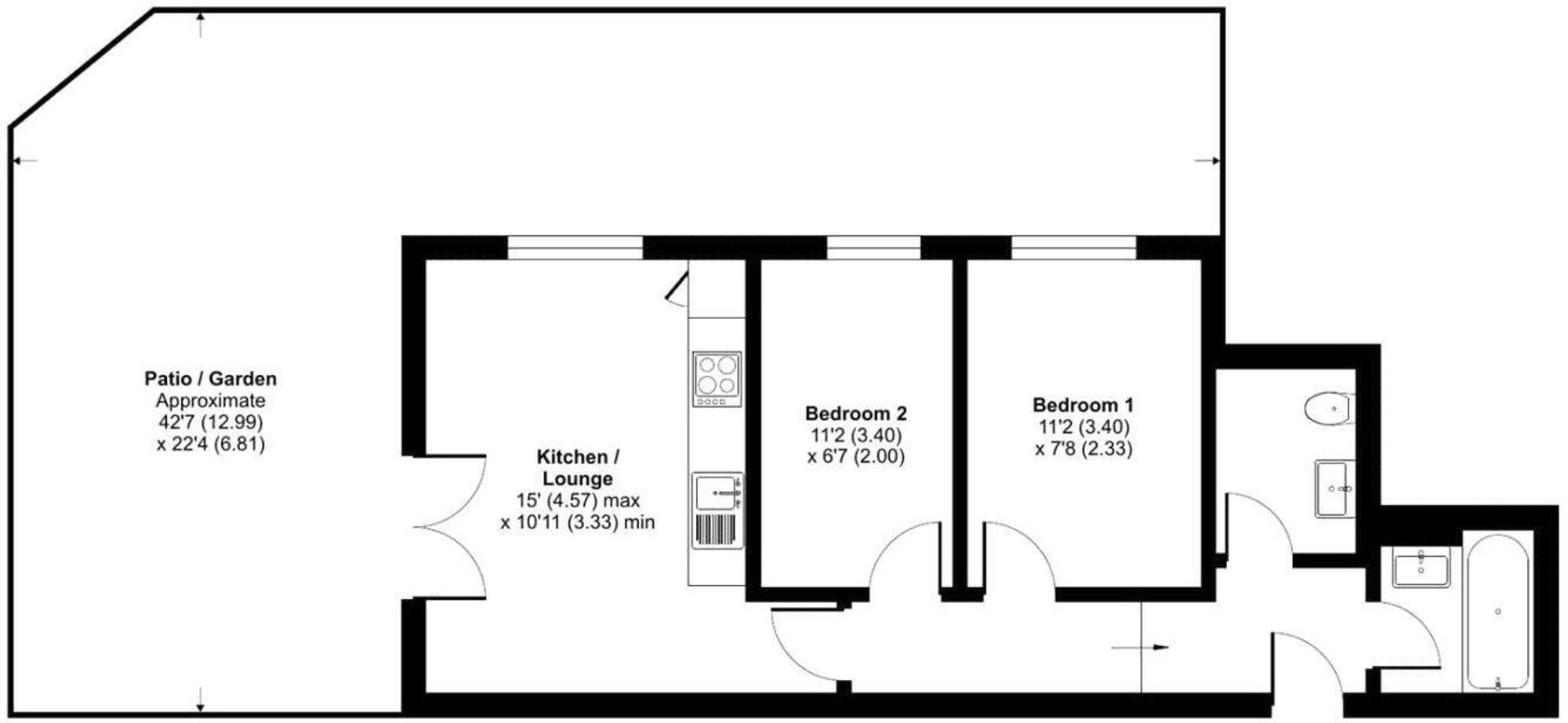
  • Two double bedrooms Modern Ground Floor Flat
  • Large Private Outdoor Patio
  • Walking Distance to Harrow-on-the-Hill and Outstanding Schools
  • Long Lease
  • Contemporary Family Bathroom and Stylish W/C
  • Modern Stylish Finish Throughout

Lawrence Rand is delighted to present this well-presented two-bedroom ground floor flat, ideally positioned within close proximity to Harrow town centre and Harrow-on-the-Hill Station. The property offers modern open-plan living, private outdoor space, and excellent transport links, making it an ideal purchase for first-time buyers, professionals, or investors.

The accommodation is well laid out and comprises an entrance hall, open-plan kitchen/living room with space for dining, two well-proportioned bedrooms, a modern bathroom, and a separate W/C. The property is in great condition throughout and ready to move into.

Externally, a key highlight is the large private patio area which wraps around the entire flat, providing valuable outdoor space rarely found in properties of this type. Further benefits include a long lease and a well-maintained development in a highly convenient location close to local amenities, transport links, and schools.

An excellent opportunity to purchase a well-located and low-maintenance home offering both comfort and practicality.

Presented with care by Lawrence Rand - helping you find the place you’ll love to call home.

Verified Material Information:

Council Tax band: D, London Borough of Harrow

Tenure: Leasehold, 118 years, Service Charge £1684pa /Ground Rent £350pa

EPC Energy Efficiency Rating: C

Suppliers:

Electricity supply: Mains,

Water supply: Mains water

Sewerage: Mains

Heating: Electric & underfloor heating

Broadband & mobile coverage:

Broadband: FTTP (Fibre to the Premises) Mobile coverage: O2 - Excellent, Vodafone - Excellent, Three - Excellent, EE Excellent

Important Information

  • This is a Leasehold property.
  • The annual cost for the ground rent on this property is £350
  • The annual service charges for this property is £1684
  • This Council Tax band for this property is: D
  • EPC Rating is C

Property Ref: 9926145d-05c2-485a-b54c-47142408fd60

Share:

Similar Properties

Rydal Way, Ruislip, HA4

2 Bedroom Flat | Offers in region of £350,000

A spacious two double bedroom top floor purpose built apartment situated in a popular cul-de-sac, just minutes from the...

Apple Grove, Harrow, HA2

2 Bedroom Flat | Offers in excess of £350,000

Berkeley Close, Ruislip

2 Bedroom Maisonette | Asking Price £350,000

Two double-bedroom ground-floor maisonette with private entrance and own garden situated in close proximity to Ruislip G...

Denham Green Lane, Denham, UB9

2 Bedroom Flat | £360,000

Alexandra Avenue, Harrow, HA2

3 Bedroom Flat | Guide Price £365,000

A bright and spacious three bedroom flat with a modern kitchen. Great location close to schools, shops, and transport id...

Surrey Road, Harrow, HA1

2 Bedroom Maisonette | Guide Price £365,000

Lawrence Rand (Ruislip Manor)

Ruislip Manor, Middlesex, HA4 9BH

01895 632211

How much is your home worth?

Use our short form to request a valuation of your property.

Request a Valuation

Mortgage Calculator

Amount Borrowed: £
Total Amount Repayable: £
Total Monthly Payment: £
©2026 The Guild of Property Professionals. All rights reserved. Terms and Conditions | Privacy Policy | Cookie Policy | Complaints Policy | Members Login
The Guild of Property Professionals Trading Address: 121 Park Lane, London W1K 7AG. GPEA Limited. Registered in England & Wales.  Company No: 02819824.  Registered Office Address: 2 St. Stephen's Court, St. Stephen's Road, Bournemouth, Dorset, England, BH2 6LA.  VAT Registration No: 576 8795 61
Book a Property Valuation Update Cookies Preferences