Eastcote Lane, Harrow, HA2

Guide Price
£465,000

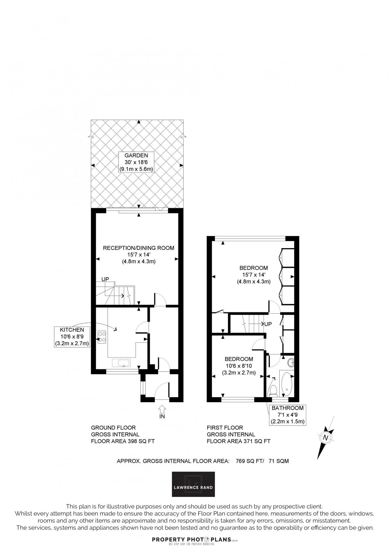
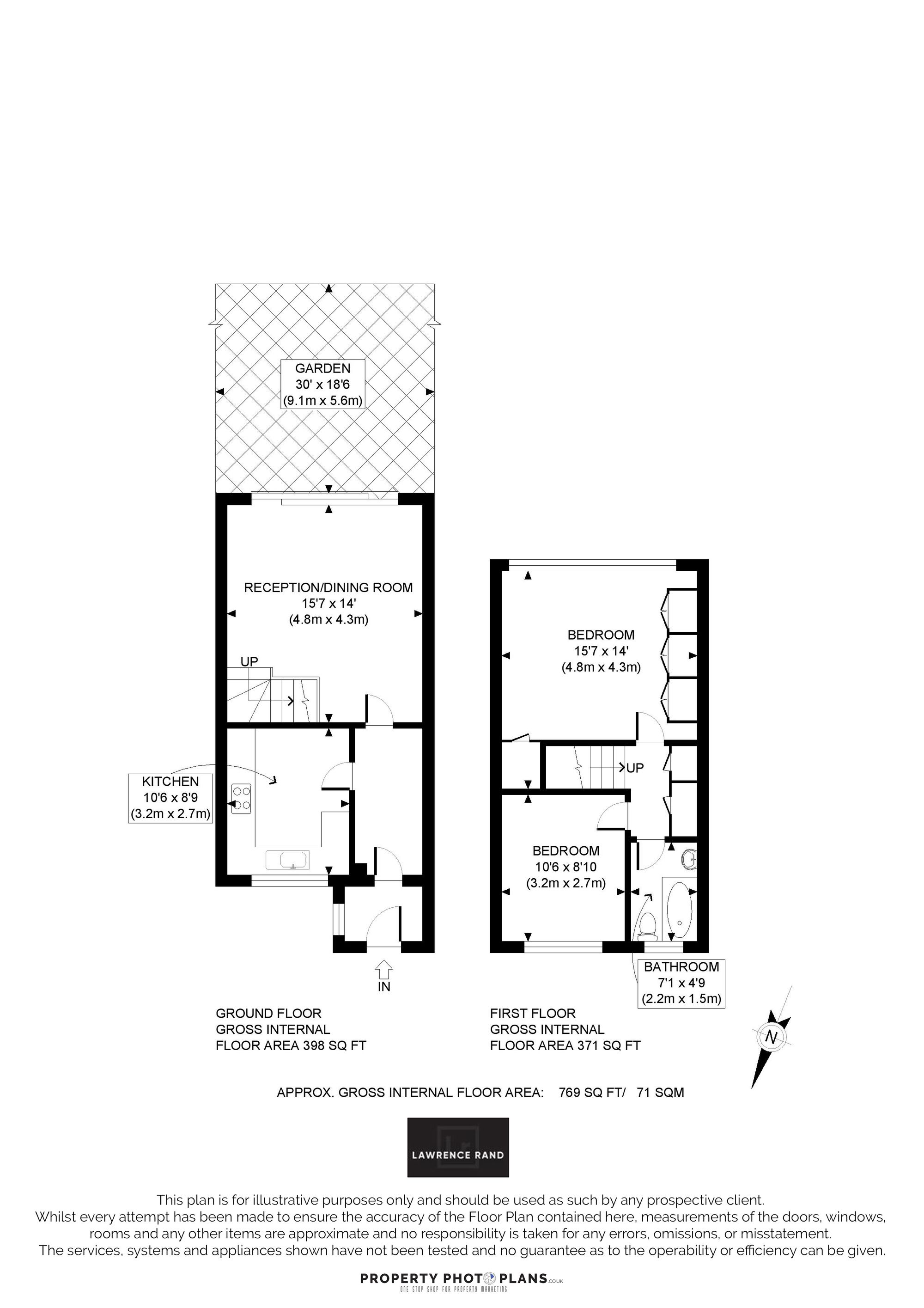
2 Bedroom Semi-Detached House for sale in Harrow

1 2 1
  • Two bedroom terraced house
  • Garage to rear
  • Newly fitted kitchen
  • Brand new boiler
  • Own driveway

Lawrence Rand is delighted to offer this well-presented two-bedroom End-terrace home set within a popular and convenient location to the market. The property has been carefully maintained and features a modern fitted kitchen, an updated bathroom, and a recently installed boiler, making it ideal for first-time buyers, investors and those looking to downsize.

Accommodation includes a bright and welcoming living room that leads on to a generously sized garden. Upstairs you have two well-proportioned bedrooms and a family bathroom. Externally, the property benefits from a private driveway, a rear garden, and a garage to the rear, offering both off-street parking and valuable storage.

Offering further scope to personalise, and ideally positioned close to local amenities, transport links, and green spaces, this home combines comfort, practicality, and future potential in a sought-after setting.

Presented with care by Lawrence Rand—helping you find the place you’ll love to call home.

Verified Material Information:

Council Tax band: D, London Borough of Harrow

Energy Performance Rating (EPC) TBC

Suppliers:

Electricity supply: Mains, Water supply: Mains water, Sewerage: Mains

Heating: Gas central heating

Broadband & mobile coverage:

Broadband: FTTP (Fibre to the Premises)

Mobile coverage: O2 - Excellent, Vodafone - Excellent, Three - Excellent, EE - Excellent

Important Information

  • This is a Freehold property.
  • This Council Tax band for this property is: D
  • EPC Rating is D

Property Ref: 9926133f-a827-4c72-99ea-36b019269663

Share:

Similar Properties

Bourne Court, South Ruislip, HA4

2 Bedroom Flat | Guide Price £450,000

Victoria Road, Ruislip, HA4

2 Bedroom End of Terrace House | £450,000

Bourne Court, South Ruislip, HA4

2 Bedroom Apartment | Guide Price £450,000

Stylish first-floor apartment featuring two bedrooms, two bathrooms, a private balcony, allocated parking and convenient...

West Mead, Ruislip, HA4

2 Bedroom Maisonette | Guide Price £475,000

This generously sized two-bedroom first-floor maisonette is well-presented throughout, with off-street parking, a garage...

Castle Road, Northolt

2 Bedroom Terraced House | Asking Price £475,000

In immaculate condition this two bedroom terraced house situated in this popular residential location with access to Nor...

Chelston Road, Ruislip

2 Bedroom Terraced House | Asking Price £500,000

This delightful two double bedroom terraced house in the heart of Ruislip Manor is offered to the market in immaculate c...

Lawrence Rand (Ruislip Manor)

Ruislip Manor, Middlesex, HA4 9BH

01895 632211

How much is your home worth?

Use our short form to request a valuation of your property.

Request a Valuation

Mortgage Calculator

Amount Borrowed: £
Total Amount Repayable: £
Total Monthly Payment: £
©2026 The Guild of Property Professionals. All rights reserved. Terms and Conditions | Privacy Policy | Cookie Policy | Complaints Policy | Members Login
The Guild of Property Professionals Trading Address: 121 Park Lane, London W1K 7AG. GPEA Limited. Registered in England & Wales.  Company No: 02819824.  Registered Office Address: 2 St. Stephen's Court, St. Stephen's Road, Bournemouth, Dorset, England, BH2 6LA.  VAT Registration No: 576 8795 61
Book a Property Valuation Update Cookies Preferences