Cottage Close, Harrow

£410,000
SSTC
This property listing is now SSTC

2 Bedroom Flat for sale in Harrow on the Hill

1 2 2

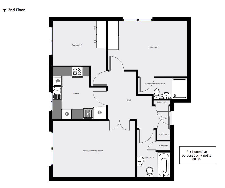
Welcome to this exquisite 2-bedroom flat situated within a secure gated community. The property offers a perfect blend of elegance and convenience, providing residents with a tranquil oasis in the heart of the city.

As part of the community, enjoy the lush surroundings of communal gardens, meticulously maintained for relaxation and outdoor enjoyment. The presence of a concierge service adds an extra layer of comfort, ensuring that your needs are met with efficiency and professionalism.

The flat itself boasts two generously sized double bedrooms, offering ample space and versatility. The master bedroom features the added luxury of an ensuite, providing a private retreat within your home. The modern design of the flat is complemented by allocated parking, offering convenience and security.

The prime location of this property is a true highlight, with a short walk leading to Harrow on the Hill, Sudbury Hill, and South Harrow tube stations. This provides quick and easy access to London's vibrant cultural scene, making commuting a breeze.

Whether you're drawn to the convenience of city living or the serenity of a gated community, this ground floor flat is the epitome of sophisticated urban living. Seize the opportunity to make this property your home, where luxury and accessibility meet seamlessly.

Property Ref: 33000690

Share:

Similar Properties

Sheepcote Road, Harrow

2 Bedroom Flat | £400,000

A large and well presented 2 double bedroom second floor flat in Gayton Court, a popular development within Harrow town...

Vaughan Road, Harrow

3 Bedroom Flat | Offers in excess of £400,000

This well-proportioned and beautifully maintained 3-bedroom split level maisonette is now available for sale, offering c...

Radnor Road, Harrow

3 Bedroom Maisonette | Guide Price £395,000

This spacious three bedroom maisonette is arranged over two levels and offers over 1,000 sq ft of well balanced accommod...

Badgers Close, Harrow

2 Bedroom End of Terrace House | £425,000

Welcome to this charming 2-bedroom end-of-terrace house in the heart of West Harrow, a property that seamlessly combines...

Roxborough Park, Harrow on the Hill

2 Bedroom Apartment | Offers in excess of £425,000

A well presented two bedroom, two bathroom second floor apartment located in the highly regarded Lychgate Manor, a gated...

Roxborough Avenue, Harrow

2 Bedroom Apartment | Offers in excess of £425,000

Set within Little Court, this well proportioned first floor apartment extends to approximately 707 sq ft, offering a car...

Woodward Estate Agents (Harrow on the Hill)

90 High Street, Harrow on the Hill, Greater London, HA1 3LP

020 8864 8844

How much is your home worth?

Use our short form to request a valuation of your property.

Request a Valuation

Mortgage Calculator

Amount Borrowed: £
Total Amount Repayable: £
Total Monthly Payment: £
©2026 The Guild of Property Professionals. All rights reserved. Terms and Conditions | Privacy Policy | Cookie Policy | Complaints Policy | Members Login
The Guild of Property Professionals Trading Address: 121 Park Lane, London W1K 7AG. GPEA Limited. Registered in England & Wales.  Company No: 02819824.  Registered Office Address: 2 St. Stephen's Court, St. Stephen's Road, Bournemouth, Dorset, England, BH2 6LA.  VAT Registration No: 576 8795 61
Book a Property Valuation Update Cookies Preferences