Byron Road, Harrow

Offers in excess of
£235,000

1 Bedroom Flat for sale in Harrow

1 1 1
  • Modern one-bedroom apartment in secure gated development
  • Long 138-year lease with no ground rent
  • Bright living room and separate fitted kitchen
  • Close to Harrow on the Hill Station and local amenities
  • Service Charge is inclusive of Heating Charges.

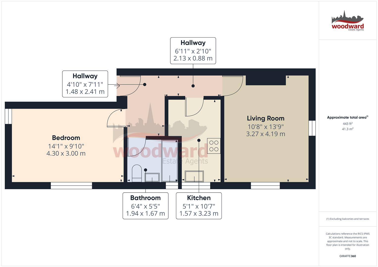
Situated within the development of Byron Court in central Harrow, this one-bedroom apartment presents a great opportunity to secure a conveniently located home within a gated development. . With approximately 138 years remaining on the lease and no ground rent, the property represents an excellent opportunity for both first-time buyers and investors.

The apartment features a bright and welcoming layout, beginning with an entrance hallway that leads through to a well-proportioned living room, ideal for both relaxation and dining. The adjoining kitchen is smartly designed and efficiently arranged, offering ample storage and workspace. The double bedroom is generously sized, providing comfortable accommodation with room for freestanding storage. Completing the property is a neatly presented bathroom finished in a clean contemporary style.

Byron Court enjoys a peaceful setting within a secure gated environment, while remaining moments from Harrow's excellent local amenities. The area offers a wide choice of shops, caf?s and restaurants, along with nearby green spaces and convenient transport links via Harrow on the Hill Station (Metropolitan and Chiltern Lines).

With its bright interiors, long lease and prime location, this apartment makes an attractive and low-maintenance home in one of Harrow's most convenient residential settings.

Bedroom - 4.30 x 3.00 (14'1" x 9'10") -

Living Room - 3.27 x 4.19 (10'8" x 13'8" ) -

Bathroom - 1.94 x 1.67 (6'4" x 5'5") -

Kitchen - 1.57 x 3.23 (5'1" x 10'7") -

Property Ref: 34261045

Share:

Similar Properties

Slough Lane, Kingsbury

1 Bedroom Apartment | Offers in excess of £175,000

Situated in the heart of Kingsbury, this studio forms part of a unique development in a prominent position on Slough Lan...

Hartington Close, Harrow

1 Bedroom Retirement Property | £150,000

This exquisite one-bedroom flat, perched on the top floor of a dedicated retirement building, is exclusively available f...

Lyon Road, Harrow

1 Bedroom Flat | £146,250

Welcome to this modern one-bedroom flat located on the top floor in the heart of central Harrow. This stylish residence...

Cottage Close, Harrow

1 Bedroom Apartment | Offers in excess of £250,000

Discover a hidden gem in the heart of Harrow on the Hill, offering the perfect first step onto the property ladder. Set...

Bessborough Road, Harrow

1 Bedroom Apartment | Offers in excess of £250,000

Located on the top floor of a purpose-built block at the foot of Harrow on the Hill, this one bedroom apartment offers a...

Herga Court, Sudbury Hill, Harrow on the Hill

1 Bedroom Apartment | £269,950

Presenting a delightful one-bedroom apartment in the highly sought-after area of Harrow on the Hill. Within a recently r...

Woodward Estate Agents (Harrow on the Hill)

90 High Street, Harrow on the Hill, Greater London, HA1 3LP

020 8864 8844

How much is your home worth?

Use our short form to request a valuation of your property.

Request a Valuation

Mortgage Calculator

Amount Borrowed: £
Total Amount Repayable: £
Total Monthly Payment: £
©2026 The Guild of Property Professionals. All rights reserved. Terms and Conditions | Privacy Policy | Cookie Policy | Complaints Policy | Members Login
The Guild of Property Professionals Trading Address: 121 Park Lane, London W1K 7AG. GPEA Limited. Registered in England & Wales.  Company No: 02819824.  Registered Office Address: 2 St. Stephen's Court, St. Stephen's Road, Bournemouth, Dorset, England, BH2 6LA.  VAT Registration No: 576 8795 61
Book a Property Valuation Update Cookies Preferences