Belmont Road, Harrow, HA3

Guide Price
£575,000
Under Offer
This property listing is now Under Offer

4 Bedroom Terraced House for sale in Harrow

1 4 2

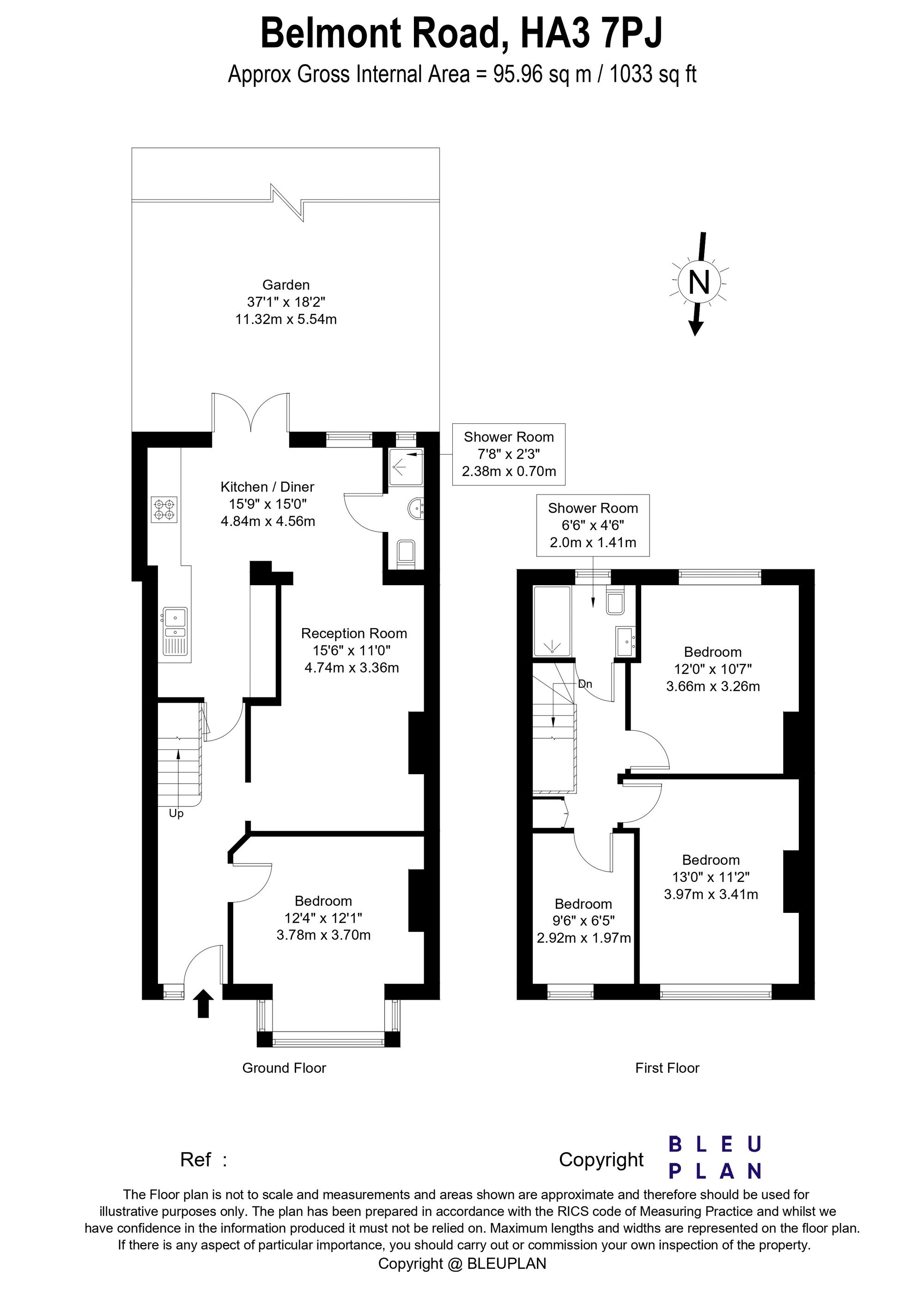
Situated on Belmont Road, HA3, this extended four-bedroom mid-terrace home is neatly presented and well decorated throughout, offering flexible and well-arranged accommodation ideal for growing families or buyers seeking versatile living space in a well-connected residential location.

The ground floor welcomes you with an entrance hallway leading to a generously sized bedroom positioned at the front of the property. Towards the rear, the home opens into a spacious reception room which flows through to the kitchen and dining area, creating a comfortable setting for everyday living and entertaining. The modern fitted kitchen offers ample worktop space and storage, making it both practical and well suited to everyday family use. The kitchen/diner also enjoys direct access to the rear garden, allowing for a seamless connection between indoor and outdoor spaces. The ground floor further benefits from a convenient shower room, adding practicality to the layout.

On the first floor there are three further bedrooms arranged around the landing, providing comfortable accommodation for the whole family. A modern shower room serves the first floor, offering added convenience for busy households.

Externally, the property benefits from a low-maintenance rear garden which is fully paved, creating an ideal space for outdoor seating, entertaining guests, or simply relaxing during the warmer months.

Belmont Road is conveniently located close to a range of local amenities including shops, parks and well-regarded schools. The property is also within easy reach of Harrow & Wealdstone Station, providing excellent transport links via the Bakerloo Line, London Overground and National Rail services into Central London and beyond.

This property presents a fantastic opportunity to acquire a spacious and well-maintained home in a popular residential location. Early viewing is highly recommended.

Important Information

  • This is a Freehold property.
  • This Council Tax band for this property is: D
  • EPC Rating is D

Property Ref: d6d82353-3a8a-4c1e-992f-f6abe5a30395

Share:

Similar Properties

Brannigan Way, Grafham Court, HA8

3 Bedroom Flat | Guide Price £570,000

Lacey Drive, Welford Court, HA8

3 Bedroom Flat | Guide Price £565,000

Whitehall Road, Lorne Court Whitehall Road, HA1

2 Bedroom Flat | Guide Price £555,000

Redhill Drive, Edgware, HA8

3 Bedroom Semi-Detached House | Guide Price £580,000

Charming 3-bed semi-detached house in prime location. Spacious through-lounge, contemporary kitchen, dining room. 3 gene...

Risingholme Road, Harrow, HA3

3 Bedroom Semi-Detached House | £584,950

Jesmond Avenue, Wembley, HA9

3 Bedroom Terraced House | Guide Price £585,000

Phillip Shaw (Harrow)

Harrow, Middlesex, HA3 8AZ

020 8909 1950

How much is your home worth?

Use our short form to request a valuation of your property.

Request a Valuation

Mortgage Calculator

Amount Borrowed: £
Total Amount Repayable: £
Total Monthly Payment: £
©2026 The Guild of Property Professionals. All rights reserved. Terms and Conditions | Privacy Policy | Cookie Policy | Complaints Policy | Members Login
The Guild of Property Professionals Trading Address: 121 Park Lane, London W1K 7AG. GPEA Limited. Registered in England & Wales.  Company No: 02819824.  Registered Office Address: 2 St. Stephen's Court, St. Stephen's Road, Bournemouth, Dorset, England, BH2 6LA.  VAT Registration No: 576 8795 61
Book a Property Valuation Update Cookies Preferences