Kenton Road, Harrow, HA3

£720,000
Under Offer
This property listing is now Under Offer

3 Bedroom Semi-Detached House for sale in Harrow

3 3 2

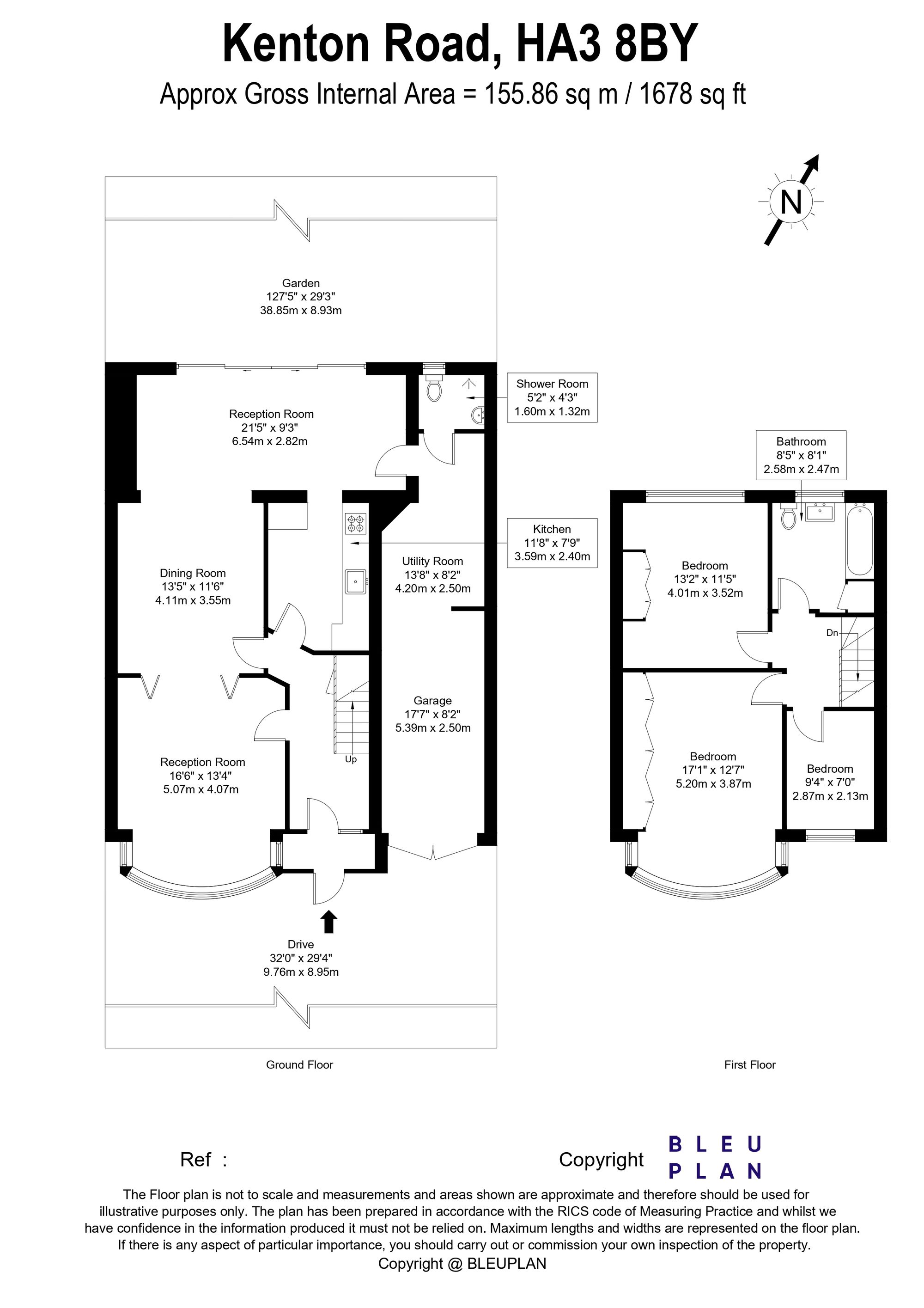
Phillip Shaw are delighted to present this spacious three-bedroom family home, ideally positioned on Kenton Road, HA3. Spanning over 1,600 sq ft, this property offers generous living space, a practical layout and excellent potential for modernisation or extension (STPP).

The ground floor welcomes you with a bright front reception room featuring a bay window, a separate dining room and an extended rear reception overlooking the garden. A fitted kitchen, utility room, downstairs shower room / wet room and integral garage complete the versatile ground floor.

Upstairs, the property boasts three well-proportioned bedrooms, including two large doubles, one with bay frontage, and a generous single room. A family bathroom serves the first floor.

Externally, the home benefits from a substantial rear garden extending over 120ft, perfect for family enjoyment and outdoor entertaining. To the front, a large driveway provides parking for multiple cars in addition to the integral garage.

Kenton Road is a prime location with excellent transport links, including Kenton (Bakerloo & Overground) and Northwick Park (Metropolitan Line) stations within close reach, alongside highly regarded schools, shopping facilities and places of worship.

This home presents a wonderful opportunity for families seeking a well-located property with scope to create their dream home.

Important Information

  • This is a Freehold property.
  • This Council Tax band for this property is: E

Property Ref: 40c3a29b-a74a-4131-8ca0-438a2170a403

Share:

Similar Properties

Lacey Drive, Edgware, HA8

4 Bedroom End of Terrace House | Guide Price £700,000

Farnsworth Drive, Edgware, HA8

4 Bedroom Town House | Guide Price £700,000

Woodcock Dell Avenue, Harrow, HA3

4 Bedroom Detached Bungalow | Guide Price £700,000

Alicia Gardens, Harrow, HA3

4 Bedroom Semi-Detached House | Guide Price £750,000

Lapstone Gardens, Harrow, HA3

3 Bedroom Semi-Detached House | Guide Price £765,000

Charming 3-bed semi-detached house off the prestigious Northwick Circle needing modernisation. Potential for extensions....

Draycott Avenue, Harrow, HA3

3 Bedroom Detached House | Guide Price £800,000

Exciting opportunity to renovate this 3-bed detached house on a large corner plot. Generous garden, garage, and potentia...

Phillip Shaw (Harrow)

Harrow, Middlesex, HA3 8AZ

020 8909 1950

How much is your home worth?

Use our short form to request a valuation of your property.

Request a Valuation

Mortgage Calculator

Amount Borrowed: £
Total Amount Repayable: £
Total Monthly Payment: £
©2026 The Guild of Property Professionals. All rights reserved. Terms and Conditions | Privacy Policy | Cookie Policy | Complaints Policy | Members Login
The Guild of Property Professionals Trading Address: 121 Park Lane, London W1K 7AG. GPEA Limited. Registered in England & Wales.  Company No: 02819824.  Registered Office Address: 2 St. Stephen's Court, St. Stephen's Road, Bournemouth, Dorset, England, BH2 6LA.  VAT Registration No: 576 8795 61
Book a Property Valuation Update Cookies Preferences