Ridley Green, Hartford End, Chelmsford

Guide Price
£900,000

4 Bedroom Detached House for sale in Hartford End, Chelmsford

3 4 3
  • THREE Reception Rooms Inc. 20' BAY-FRONTED Living Room & STUDY
  • 18' DUAL ASPECT Family Room & Impressive 21' Kitchen/Diner Plus UTILITY
  • IMMACULATELY PRESENTED Four Double Bedroom Detached Property
  • TWO EN-SUITES Plus Family Bathroom & D/Stairs Cloakroom
  • Detached DOUBLE GARAGE (Potential To Convert) & Driveway For Multiple Vehicles
  • COUNTRYSIDE VIEWS To Front Aspect
  • UNOVERLOOKED & Recently Re-Landscaped L-Shaped Rear Garden
  • VERSATILE & Well-Proportioned Living Space Throughout
  • Convenient Access To NEW Beaulieu Station & Chelmsford's Mainline Station (8.5m)

Prestige Homes by Hamilton Piers are delighted to offer for sale this IMMACULATELY PRESENTED four double bedroom detached property, boasting THREE reception rooms inc. 20' BAY-FRONTED lounge with log burner, 18' DUAL ASPECT family room & STUDY, with a RECENTLY REFITTED kitchen/diner plus an UNOVERLOOKED l-shaped rear garden. Benefiting from a detached DOUBLE GARAGE (potential to convert*), a driveway with EV charging point and parking for multiple vehicles, TWO EN-SUITES plus family bathroom and d/stairs cloakroom. Offering scenic COUNTRYSIDE VIEWS to front aspect and ideally located in the rural Hamlet of Hartford End, with convenient access to NEW BEAULIEU STATION, Stansted, A12 & Chelmsford City Centre/Mainline Station (8.5m).

***GUIDE PRICE £900,000-£925,000***

The accommodation, with approximate room sizes, is as follows:

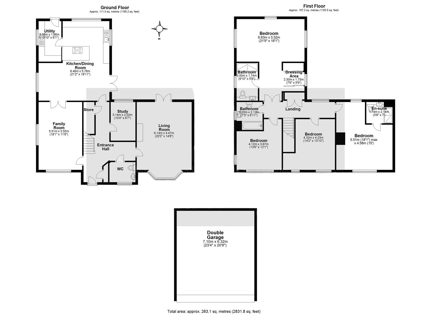
Ground Floor Accommodation: -

Entrance Hall: - Composite part-glazed secure main entrance door, stairs to first floor, radiator, Amtico Herringbone flooring.

Cloakroom: - Opaque double glazed window to front aspect (fitted with shutters), inset WC, vanity wash hand basin with splash back, radiator, Amtico Herringbone flooring.

Study: - 3.15m x 2.01m (10'4 x 6'7) - Double glazed window to rear aspect (fitted with shutters), radiator, Amtico Herringbone flooring.

Living Room: - 6.15m x 4.47m (20'2 x 14'8) - Double glazed bay window to front aspect (fitted with shutters), central Chesney's wood burning stove, two radiators, carpeted flooring. French doors to rear garden.

Family Room: - 5.51m x 3.56m (18'1 x 11'8) - Double glazed windows to front and side aspects (fitted with shutters), two radiators, carpeted flooring. Double doors linking to kitchen/diner.

Kitchen / Diner: - 6.45m x 5.77m (21'2 x 18'11) - Double glazed windows to side and rear aspects (fitted with shutters), a series of high quality fitted matching base and wall units, edged work surfaces in Granite incorporating a large dual ceramic sink with central mixer tap, two built-in ovens and microwave oven, integrated Siemens appliances including fridge, freezer and dishwasher, large breakfast bar with central induction hob and overhead extractor hood, radiator, Amtico Herringbone flooring. French doors to rear garden.

Utility Room: - 3.30m x 1.85m (10'10 x 6'1) - Double glazed window to side aspect (fitted with shutters), fitted with matching base and wall units, edged work surfaces in Granite incorporating a single ceramic sink with central mixer tap and drainer, space for washing machine and tumble dryer, radiator, Amtico Herringbone flooring. Door to rear garden.

First Floor Accommodation: -

Landing: - Double glazed window to rear aspect (fitted with shutters), built-in double airing cupboard, loft access, radiator, carpeted flooring.

Master Bedroom: - 6.63m x 5.51m (21'9 x 18'1) - Double glazed windows to side and rear aspects, two radiators, carpeted flooring. Opening to dressing area and access into en-suite.

Dressing Area: - 2.29m x 1.75m (7'6 x 5'9) - Double glazed window to side aspect, built-in wardrobes, radiator, carpeted flooring.

En-Suite: - Opaque double glazed window to side aspect, enclosed and fully tiled double shower unit, inset WC, vanity wash hand basin with tiled splash back, heated towel rail, extractor, tiled flooring.

Bedroom Two: - 5.51m x 4.57m (18'1 x 15'0) - Double glazed windows to front and rear aspects, radiator, carpeted flooring.

En-Suite: - Opaque double glazed window to rear aspect, enclosed and fully tiled double shower unit, inset WC, vanity wash hand basin with tiled splash back, heated towel rail, extractor, tiled flooring.

Bedroom Three: - 4.32m x 4.22m (14'2 x 13'10) - Two double glazed windows to front aspect, radiator, carpeted flooring.

Bedroom Four: - 4.11m x 3.68m (13'6 x 12'1) - Double glazed windows to front and side aspects, radiator, carpeted flooring.

Family Bathroom: - Opaque double glazed window to side aspect, panelled bath with central mixer tap and shower over, low level WC, pedestal wash hand basin with tiled splash back, heated towel rail, extractor, tiled flooring.

Exterior: -

Rear Garden: - A private l-shaped, unoverlooked rear garden, recently fully re-landscaped and comprising a large wraparound Granite patio, screened Pergola with Hot Spring hot tub, remainder mainly laid to lawn with shrubs and trees set behind edged borders, power points, gated side access to driveway and double garage.

Double Garage & Driveway Parking: - Detached double garage fitted with overhead storage space, power, lighting and electric up and over door plus external EV charging point. The driveway has been thoughtfully extended to provide parking space for multiple vehicles.

Agents Notes: - Council Tax Band: G

For further information regarding this property, please contact Prestige Homes by Hamilton Piers.

Property Ref: 42829_34433456

Share:

Similar Properties

Condor Gate, Channels Development, Chelmsford

5 Bedroom Detached House | Guide Price £875,000

Boasting a DOUBLE GARAGE with a self contained ANNEX/STUDIO APARTMENT above, plus FIVE DOUBLE BEDROOMS, TWO EN SUITES an...

Jubilee Avenue, Broomfield, Chelmsford

5 Bedroom Detached House | Offers Over £850,000

Boasting a detached SELF CONTAINED ANNEX within the SUBSTANTIAL 114' REAR GARDEN and upto SIX DOUBLE BEDROOMS with FOUR...

Torrington Close, Old Springfield, Chelmsford

4 Bedroom Detached House | £850,000

Boasting a BEAUTIFUL 31' OPEN PLAN LIVING AREA with an adjoining, simply STUNNING KITCHEN and dining area and an IMPRESS...

Rosina Place, Wickham Bishops, Witham

5 Bedroom Detached House | Guide Price £1,150,000

Prestige Homes by Hamilton Piers are delighted to introduce for sale this FIVE DOUBLE bedroom detached property, CONSTRU...

Braintree Road, Little Waltham, Chelmsford

4 Bedroom Detached House | Offers in excess of £1,400,000

Prestige Homes by Hamilton Piers are delighted to offer for sale this incredibly VERSATILE and IMMACULATELY PRESENTED fo...

Hamilton Piers - Chelmsford (Chelmsford)

4 Torquay Road, Springfield, Chelmsford, Essex, CM1 6NF

01245 269777

How much is your home worth?

Use our short form to request a valuation of your property.

Request a Valuation

Mortgage Calculator

Amount Borrowed: £
Total Amount Repayable: £
Total Monthly Payment: £
©2026 The Guild of Property Professionals. All rights reserved. Terms and Conditions | Privacy Policy | Cookie Policy | Complaints Policy | Members Login
The Guild of Property Professionals Trading Address: 121 Park Lane, London W1K 7AG. GPEA Limited. Registered in England & Wales.  Company No: 02819824.  Registered Office Address: 2 St. Stephen's Court, St. Stephen's Road, Bournemouth, Dorset, England, BH2 6LA.  VAT Registration No: 576 8795 61
Book a Property Valuation Update Cookies Preferences