South Headborough, Dale Road, Haverfordwest SA62 3AE

Offers Over
£1,000,000

Land for sale in Haverfordwest

  • Rare Pembrokeshire offering within 5 miles of idyllic beaches and the popular coastal villages of Little Haven and Broad Haven, offering a range of farming, lifestyle, or development opportunities...
  • Approx. 100 acres of south facing early growing arable land and high quality grassland with moors, heathland and woodland for conservation or planting.
  • Modern and traditional buildings with planning permission for two dwellings.

BARN CONVERSION WITH LAND

*A unique opportunity to acquire a valuable parcel of south facing agricultural land extending to 100 acres or thereabouts and including a small range of buildings.*
*Planning consent for converting two traditionally constructed buildings into two residential units.*
*Convenient setting on the periphery of the Pembrokeshire Coast National Park and within easy reach of the coastal villages of Broad Haven and Little Haven.*
*Ample potential for diversified uses, including habitat or conservation schemes or a renewable energy project such as solar park etc.*

Situation - The setting of South Headborough, can only be fully appreciated by a personal inspection. Located in a peaceful rural area ideally suited to purchasers looking to create a home in the countryside, yet within easy reach of the stunning Pembrokeshire Coastline. The popular coastal villages of Little Haven and Broad Haven offer a range of local services alongside sandy beaches within some 5 miles and the sailing centre of Dale within easy reach. Haverfordwest, the County Town of Pembrokeshire offers a wide range of services, leisure and shopping facilities is just 5 miles or so, with further amenities available within the nearby town of Milford Haven. The Farm lies on the periphery of the Pembrokeshire Coast National Park within a belt of highly regarded early land, suitable for pasture and arable with nearby agricultural land use being dairy and livestock, alongside all classes of arable use. The south facing aspect perhaps lends itself to a solar park project or similar.

Directions - A location plan is attached.

Description - South Headborough comprises a parcel of highly productive arable and pasture land, together with a useful range of adaptable buildings, extending in total to 100 acres or thereabouts, that has most recently been used for grazing and cropping. Historically the land has been cultivated for cereal and vegetables.
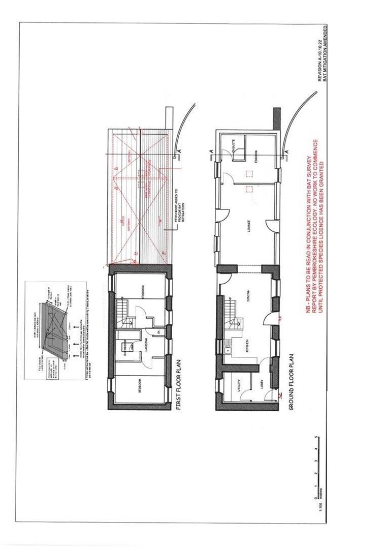
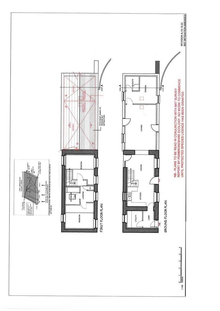
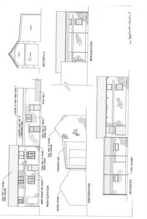
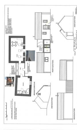
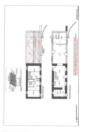
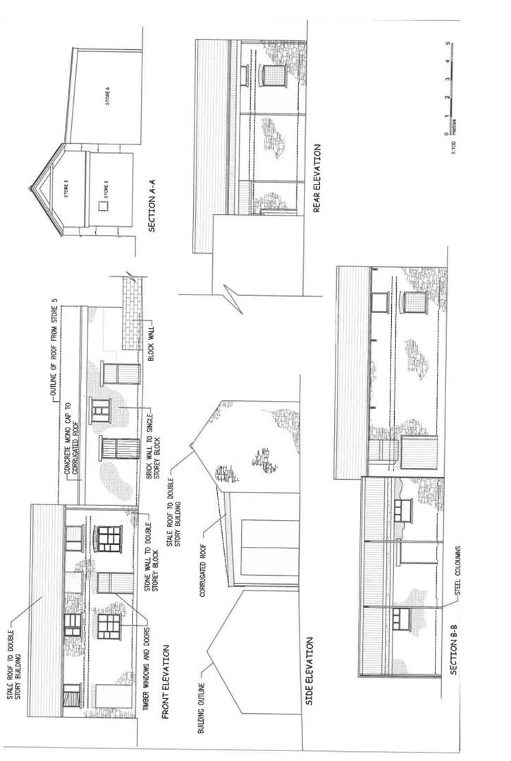
The farmstead is approached over a private compacted stone lane that provides excellent access to the fields, with the buildings being located in a private setting on the eastern side of the holding. The farmstead includes an attractive pond that has plenty of conservation and amenity appeal, together with the remains of the original farmhouse. There are two traditionally constructed outbuildings that have the benefit of planning consent for conversion to residential properties under reference 22/0262/PA, and the completed project will no doubt be a most desirable residential element to compliment that agricultural land.

The Traditionally Constructed Buildings - These have the benefit of planning consent for conversion to two appealing residences, affording the potential to create a most attractive homestead with accommodation for two generations of the same family or perhaps as a main residence and letting cottage.
Drawings of the redevelopment proposals are attached, with further details available from the planning portal of Pembrokeshire County Council's website under planning reference 22/0262/PA.
There are ample grounds around the buildings to create gardens and car-parking areas, with the grounds including a small pond that has plenty of conservation appeal.

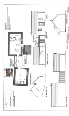
Stone Building 1 - The dimensions are 5m x 12m plus extension 5m x 12m. This Building is of stone construction under a slate roof and with the benefit of a single-storey brick extension. The proposed accommodation of Unit 1 is a ground floor of Entrance Hall, Utility Room, Kitchen/Diner, Lounge and En-Suite bedroom with 2 further bedrooms and bathroom on the first floor.

Stone Building 2 - Planning consent extends into a nearby stone constructed building, to provide a single storey residence comprising an open plan kitchen and sitting room, together with a lobby and bedroom with en-suite bathroom.

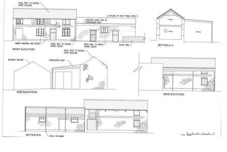
Agricultural Buildings - The farm buildings principally comprise a range of portal framed buildings that offer a degree of flexibility, being suitable for livestock housing and crop storage.

* Steel Portal Framed Shed: 22m x 18m. Steel construction with an open front and cement fibre roof and timber cladding to the rear.
* Concrete Portal Framed Shed: 22m x 18m. Concrete pillar construction with an open front and cement fibre roof and timber cladding to the rear.
* Lean-to: 5m x 12m. Open fronted with a corrugated tin roof.
* Workshop: 5m x 10m. Being fully enclosed with doors to both ends.
* Workshop 2: 13m x 6m. Of infill block wall construction with a concrete floor and cement fibre roof.

The Land - A plan of the Land is attached for identification purposes only.
The Land extends to 100 acres or thereabouts and is a versatile block of predominantly level, south-facing pasture land, divided by fencing and natural hedgerows into useful sized, easily worked enclosures, that are all conveniently located to the farmstead or access lane, with internal gates at strategic points that allows for livestock or machinery to be easily moved around the holding. The Land is typical of farmland in this area, being highly productive early land, enjoying a mild climate and having a good depth of top-soil and being relatively free-draining. In the past, the farm has been used for a variety of arable crops and there are two irrigation ponds which, along with an area of moorland, provide land and features that offer an opportunity for a conservation or habitat project to compliment the agricultural use of the land.
The South facing aspect of South Headborough may also be of interest to parties interested in exploring the potential for renewable energy, subject to the necessary consents being obtained as the present owners have been approached by a provider considering such a project.

The Land - Western Aspect -

The Land - North Western Aspect -

The Land - South Eastern Aspect -

The Land - Northern Aspect -

Services - Mains water and electricity are available.

Tenure - Freehold with vacant possession upon completion.

Basic Payment Scheme - We understand that the land has been used to claim for basic payments but no entitlements form part of the sale.
Entitlements can be purchased by separate negotiation.

Local Authority - Pembrokeshire County Council, County Hall, Haverfordwest, Pembrokeshire, SA61 1TP.

General Remarks - The sale of South Headborough offers a rare opportunity to acquire a property that has the potential to be developed into a highly desirable rural residence within the Pembrokeshire countryside. Comprising a parcel of productive agricultural land, to include a useful range of buildings, alongside traditionally constructed buildings that have the benefit of planning consent for a redevelopment project. The buildings can be converted to provide a principal residence and letting cottage of considerable character, in an area that sees a consistent demand for holiday accommodation.
Possibly there is some potential for further development on other traditional buildings on the farmstead.
The property occupies a pleasant, private and peaceful rural setting on the periphery of the Pembrokeshire Coast National Park, being within easy reach of the popular coastal villages of Broad Haven and Little Haven with the Dale peninsular also within easy reach as is the superb scenery of the Pembrokeshire coastline. The towns of Haverfordwest and Milford Haven both offer an extensive array of amenities and are within a 10-15 minute drive.
The buildings are ideally suited for livestock, machinery or crop housing and storage. The land offers a variety of opportunities, being productive south facing pasture and arable land, alongside conservation and habitat areas and with the potential for an alternative energy project, subject to planning.
Viewing to appreciate the setting and potential of South Headborough is highly recommended.

Property Ref: 856974_32977741

Share:

Similar Properties

Land at, Redberth, Tenby

Land | Offers in excess of £1,000,000

A valuable parcel of productive land in a convenient setting between Redberth and Carew and with roadside access directl...

New Moat, Clarbeston Road

6 Bedroom Character Property | Guide Price £975,000

Efailwen, Clunderwen (90 acre farm)

4 Bedroom Not Specified | Offers in excess of £850,000

*Livestock Farm extending to 90 acres or thereabouts * Within 1/2 mile of A478 Narberth to Cardigan roadway, Approx. 1 m...

Land and Buildings at Deer Park Lane, Milton, Tenby

Land | Offers in region of £1,200,000

* A highly regarded, productive parcel of land, suitable for grazing, cropping or arable purposes** Extensive range of b...

West End, Llawhaden, Narberth SA67 8EA

3 Bedroom Farm House | Offers in excess of £1,300,000

*123 acre livestock farm, occupying a delightful yet convenient rural setting. * ? mile of the A40 between Narberth and...

Nolton, Haverfordwest

6 Bedroom Not Specified | Offers in region of £1,750,000

A highly desirable coastal livestock/arable farm, situated within the Pembrokeshire Coast National Park, having consider...

JJ Morris (Haverfordwest)

4 Picton Place, Haverfordwest, Pembrokeshire, SA61 2LX

01437 760440

How much is your home worth?

Use our short form to request a valuation of your property.

Request a Valuation

Mortgage Calculator

Amount Borrowed: £
Total Amount Repayable: £
Total Monthly Payment: £
©2026 The Guild of Property Professionals. All rights reserved. Terms and Conditions | Privacy Policy | Cookie Policy | Complaints Policy | Members Login
The Guild of Property Professionals Trading Address: 121 Park Lane, London W1K 7AG. GPEA Limited. Registered in England & Wales.  Company No: 02819824.  Registered Office Address: 2 St. Stephen's Court, St. Stephen's Road, Bournemouth, Dorset, England, BH2 6LA.  VAT Registration No: 576 8795 61
Book a Property Valuation Update Cookies Preferences