Llain Farm, Mathry, Haverfordwest

Guide Price
£995,000

6 Bedroom Smallholding for sale in Haverfordwest

2 6 2
  • Exceptional 18 Acre Residential holding,
  • Spacious, stylish, welcoming and light-filled Detached 2 storey residence
  • Large Gardens and Grounds
  • Stable Block with 5 Stables and Tack Room
  • Substantial range of Agricultural Buildings with Commercial potential
  • EPC Rating C

*Benefitting Panoramic Coastal Sea Views and Rural Views, an exceptional 18 Acre Residential holding,
offering a high degree of privacy.
*Very spacious, stylish, welcoming and light-filled Detached 2 storey residence (recently renovated to an
extremely high standard) with 3/4 Reception, Large Fitted Kitchen and Dining area, Utility, 5/6 Bedroom
and 3 Bath/Shower accommodation.
*Elegant Roll Top Copper and Nickel Bath in main bedroom overlooking stunning Sea Views.
*Large Gardens and Grounds together with ample Vehicle Parking and Turning Space.
*Substantial Stable Block with 5 Stables and Tack Room lying adjacent to the Property and Gardens.
*Substantial range of Agricultural Buildings with Commercial potential, subject to any necessary
Planning Consents.
*18 Acres or thereabouts of which there is approximately 15 Acres of clean, gently sloping Pasture Land.
*Inspection essential to appreciate the spectacular views and Private Location.

Situation - Llain Farm is situated within a mile and a half or so by road of the hamlet of Castlemorris and is within 2.5 miles or so by road of the popular hilltop village of Mathry.

Castlemorris being close by has a cluster of Dwellings and an equestrian and pet store.

Mathry is within a short drive and has the benefit of a Church, a former Chapel, Public House, a Community/Village Hall, an Agricultural/Garden Machinery Retailer and a Cafe/Tea Room/Antique Shop.

The well known Market Town of Fishguard is some 7 miles or so north and has the benefit of a Good Shopping Centre together with a wide range of amenities and facilities including Secondary and Primary Schools, Churches, Chapels, a Building Society, Hotels, Restaurants, Public Houses, Cafes, Takeaways, Art Galleries, a Post Office, Bakery, Library, a Petrol Filling Station/Store, Repair Garages, a Petrol Filling Station/Store and a Leisure Centre.

The North Pembrokeshire Coastline at Abercastle is within 5 miles or so and also close by are the other well known sandy beaches and coves at Abermawr, Aberbach, Pwllcrochan, The Parrog, Aberfelin, Porthgain, Traeth Llyfn, Abereiddy and Whitesands Bay.

The County and Market Town of Haverfordwest is some 12 miles or so south and has the benefit of an excellent Shopping Centre together with an extensive range of amenities and facilities including Secondary and Primary Schools, Churches, Chapels, Banks, Building Societies, Hotels, Restaurants, Public Houses, Cafes, Takeaways, Art Galleries, a Leisure Centre, Petrol Filling Stations, Repair Garages, a Further Education College, Supermarkets, a Post Office, Library, The County Council Offices and The County Hospital at Withybush.

There are good road links along the Main A40 from Letterston to Haverfordwest and Carmarthen and the M4 to Cardiff and London as well as good rail links from both Fishguard and Haverfordwest to Carmarthen, Cardiff, London Paddington and the rest of the UK.

Directions - From Fishguard take the Main A40 road south for some 4 miles and take the turning on the right signposted to Mathry. Continue on this road for three quarters of a mile or so and upon reaching the 'T' junction with the B4331 Letterston to Mathry road, turn right. Continue on this road for a mile and a half or so and upon reaching the hamlet of Castlemorris, turn left at the crossroads. Proceed up the hill and continue on this road for a mile or so and upon reaching the crossroads, turn right. Continue on this road for half a mile or so and take the first farm track on the right to Llain. A 'For Sale' Board is erected at the roadside entrance. A 350 yard hardsurfaced farm lane leads down to the Property. See Location Plan.

Alternatively from Haverfordwest take the Main A40 road north for some 10 miles and in the village of Letterston take the turning on the left at the crossroads, signposted to Mathry and St Davids. Continue on this road for 2.5 miles or so and upon reaching the hamlet of Castlemorris, turn left at the crossroads. Follow directions as above.

Description - Llain Farm comprises a Detached 2 storey residence of cavity concrete block and brick construction with rendered and coloured elevations under a pitched composition slate roof. Accommodation is as follows:-

Double Glazed Entrance Door To:- -

Reception Hall - 6.45m x 5.18m approx (21'2" x 17'0" approx ) - Double height ceiling with handcrafted Oak gallery. Two floor to ceiling windows each side of the front door. Limestone tile floor, bespoke Oak staircase to First Floor, exposed beams, 2 double panelled radiators, understairs cupboard, entrance way to Inner Hall, built in Cloaks Cupboard, 5 downlighters, centre ceiling light, exposed beams and 10 pane glazed double doors to Kitchen/Dining Room and door to Sitting Room and:-

Cloakroom - 2.34m x 1.63m (7'8" x 5'4" ) - With a limestone tile floor, suite of Wash Hand Basin and Granite top and WC, ceiling light and a vertical designer Column radiator.

Sitting Room - 5.26m x 4.04m (17'3" x 13'3" ) - With a limestone tile floor, 2 double panelled radiators, coved ceiling, ceiling light, 2 uPVC double glazed windows (affording uninterrupted Coastal Sea views), internet point, mains smoke detector and 8 power points.

Glazed double doors from the Reception Hall give access to an:-

Open Plan Kitchen/Breakfast Room/Dining Room - 8.18m x 5.49m overall (26'10" x 18'0" overall ) - with Superb Sea Views and Views to the Preseli Hills.

Kitchen/Breakfast Room - 5.44m x 3.96m (17'10" x 13'0" ) - With a limestone tile floor, uPVC double glazed window, range of Floor Cupboards with Granite Worktops, Belfast sink with mixer tap, plumbing for dishwasher, Neff built in Single Oven/Grill, Neff 4 ring Induction Hob with splashback, Neff Cooker Hood (externally vented), 14 power points, appliance points, ceiling light,Central Island with Granite Worktop, 10 pane glazed door to Utility Room, 10 pane glazed double doors to Reception Hall and an opening to:-

Dining Room - 5.46m x 3.96m (17'11" x 13'0" ) - With a limestone tile floor, 9 downlighters, uPVC double glazed French door to Garden, uPVC double glazed window affording uninterrupted Coastal Sea views, double and single panelled radiators, TV point and 8 power points.

Utility Room - 3.86m x 2.29m (12'8" x 7'6" ) - With a limestone tile floor, uPVC double glazed window, ceiling light, plumbing for automatic washing machine, Belfast sink with mixer tap, Granite worktop, appliance points, 4 power points, built in cupboard with shelves, column radiator, ceiling light, uPVC double glazed stable door to exterior and a Boiler Cupboard housing a Worcester freestanding Oil Boiler (heating domestic hot water and firing central heating) with pressurised hot water cylinder and a central heating time switch.

Inner Hall (Accessed Off The Reception Hall) - 4.27m x 1.22m (14'0" x 4'0" ) - With a limestone tile floor, 3 downlighters, coved ceiling, 2 power points and doors to Bedrooms 4 and 6 and an office/study/bedroom5 :-

Bedroom 4 - 5.00m x 3.20m (16'5" x 10'6" ) - with a limestone tile floor, uPVC double glazed window and a uPVC double glazed French door (affording uninterrupted Coastal Sea views), telephone point, double panelled radiator, coved ceiling, ceiling light and 8 power points.

Office/Study/Bedroom 5 - 3.71m x 3.35m (12'2" x 11'0" ) - With a limestone tile floor, uPVC double glazed window (affording sea views), built in double wardrobe with shelves, built in shelved cupboard, coved ceiling, ceiling light, TV point and 8 power points.

Bedroom 6 - 5.59m x 3.43m (18'4" x 11'3" ) - With 2 uPVC double glazed windows, limestone tile floor, double panelled radiator, coved ceiling, ceiling light, 6 power points and plumbing for an En Suite Shower Room.

First Floor -

Galleried Landing - 5.18m x 3.66m (17'0" x 12'0" ) - ('L' shaped maximum)Oak galleried landing with Velux window over stairwell, 2 ceiling lights, mains smoke detector, radiator and a built in Airing Cupboard with fitted carpet, radiator and shelves.

Master Bedroom - 7.82m x 5.44m (25'8" x 17'10" ) - ('L' shaped) Featuring a large picture window affording superb Coastal Sea & Rural Views with a freestanding Copper (nickel-lined) Roll Top Bath by BC Designs on a raised platform. Two further uPVC double-glazed windows, one of which offers superb rural views, 2 double panelled radiators, ceiling light, 12 power points, access to undereaves storage, and door to an:

Ensuite Shower Room - 3.33m x 2.69m (10'11" x 8'10" ) - With porcelain tile floor, Burlington suite of WC, Wash Hand Basin and a glazed and tile Shower Cubicle, half tiled walls, uPVC double glazed window, column radiator with chrome towel rail, ceramic tile floor with electric underfloor heating, 3 downlighters, extractor fan, wall mirror, shaver point and access to undereaves storage space.

Bedroom 2 - 5.54m x 3.86m (18'2" x 12'8" ) - With uPVC double glazed French door to a Juliet Balcony (affording uninterrupted Coastal Sea and Rural views), ceiling light, exposed beams, double panelled radiator and 10 power points.

Bedroom 3 - 4.06m x 3.58m (13'4" x 11'9" ) - With Velux window (affording Sea views), uPVC double glazed window with views of paddock and driveway, double panelled radiator, exposed beams, access to undereaves storage space and 10 power points.

Bathroom - 2.90m x 2.64m (9'6" x 8'8" ) - With porcelain tile floor with electric underfloor heating, Burlington suite of Wash Hand Basin in a vanity surround, WC and a free standing Clawfoot Bath with shower attachment, glazed and tiled Shower Cubicle with a thermostatic shower, chrome heated towel rail/radiator, ceiling light, 2 (Jim Lawrence) designer wall lights, wall mirrors, shaver point, extractor fan, Velux window and porcelain tiled walls.

Externally - Directly to the fore of the Property is a large slate Paved Patio area and adjacent to the eastern gable end of the Property is a large Lawned Garden from where uninterrupted Coastal Sea and Rural views can be enjoyed.

Directly to the fore of the Property is a Slate Patio Area together with a Lawned Garden

Within close proximity of the Property is a:-

Stable Block - Of concrete block construction with rendered and coloured elevations under an insulated box profile roof. The Stable Block has 5 Stables and a Tack Room. 3 Stables measure 13'0" x 13'0" approx and have a single glazed window and wall lights. The Main Stable is 18'0" x 13'0" which has a single glazed window, 2 LED strip lights, electricity consumer unit, 2 power points and an opening to a:-

Tack Room - 3.96m x 2.64m (13'0" x 8'8" ) - Which a single glazed window, plumbing for a WC, LED strip light and 2 power points.

3 Outside Electric Lights and an Outside Water Tap.

Within 50 yards or so of the Property is the substantial range of Multipurpose/Agricultural Buildings as follows:-

Multipurpose Shed - 18.29m x 12.19m (60' x 40'" ) - Of steel stanchion and concrete block construction with corrugated cement fibre cladding and roof. It has a 10' wide entrance door, a concrete floor, a Generator Shed within the building and an electric power point.

Multipurpose Shed/Garaging - 18.29m x 5.49m (60'0" x 18'0" ) - Of steel stanchion construction with concrete block walls, corrugated cement fibre and Yorkshire board cladding and a corrugated cement fibre roof. It has a concreted floor and double doors at each end.

Multipurpose Shed/Garage - 18.29m x 12.19m plus recess 4.11m x 1.07m (60'0" x - Of steel stanchion and concrete block wall construction with box profile cladding under a corrugated cement fibre roof. It has a concreted floor and a opening to a:-

Lean To Shed - 13.72m x 6.10m (45'0" x 20'0") - Of steel stanchion and concrete block construction with a box profile roof and a concreted floor.

Former Shop/Garage - 15.24m x 9.68m (50'0" x 31'9" ) - ('L' shaped maximum) Of steel stanchion and concrete block construction with a corrugated cement fibre roof. It has 2 sections one measuring 50'0" x 16'6" approx plus a recess 16'0" x 13'0" approx with staircase to the First Floor. An opening leads off at the rear to a:-

Hall - 3.05m x 1.07m (10'0" x 3'6" ) - With pedestrian door to exterior and door opening to a:-

Former Kitchen - 3.51m x 2.74m (11'6" x 8'11" ) - With double glazed window, Worcester oil Boiler (requiring attention and formerly heating radiators on the Ground and First Floor), hot and cold water taps, strip light and 3 power points.

A staircase from the front part of the Building leads to a First Floor Landing Area with door to:-

Store Room 1 - 8.05m x 4.88m (26'4" x 16'0" ) - With 4 skylights, 2 double radiators, 2 power points and door to:-

Store Room 2 - 4.88m x 4.27m (16'0" x 14'0" ) - With 2 skylights, 2 power points, double panelled radiator and a pedestrian door leading to an external steel staircase (not in use).

Adjoining is a:-

Garage - 9.14m x 4.45m (29'11" x 14'7" ) - Of concrete block construction with a corrugated cement fibre roof. It has double wooden doors, wiring for electricity and a pedestrian door opening to a:-

Store Room - 2.90m x 2.44m (9'6" x 8'0" ) - With pedestrian door to:-

Former Dairy - 6.71m x 4.19m (22'0" x 13'9" ) - With 2 windows (1 uPVC double glazed), door to exterior and door to:-

Store Room - 2.59m x 0.84m (8'6" x 2'9" ) - With a uPVC double glazed window.

Adjacent to the former Dairy is a Bore Hole which serves the Agricultural Buildings and the Land.

Within a short distance of the first range of buildings is a substantial range of Agricultural Buildings as follows:-

Atcost Hay/Machinery Shed - 22.86m x 10.67m (75'0" x 35'0") - Of concrete portal frame construction with concrete block walls and corrugated cement fibre cladding and roof. It has a concreted floor and adjoining is a:-

Lean To Loose Cattle/Hay/Store Shed - 22.86m x 3.96m (75'0" x 13'0" ) - Of a concrete portal frame construction with corrugated cement fibre cladding and roof. Adjoining on the northern gable end is a:-

Lean To Shed - 9.14m x 9.14m (30'0" x 30'0" ) - Of concrete block construction with corrugated cement fibre cladding and roof. Bore hole pressure vessel installed 2023.

Hayshed - 13.72m x 9.14m (45'0" x 30'0" ) - Of steel stanchion construction with a corrugated cement fibre roof with an adjoining:-

Hayshed - 13.72m x 9.14m (45'0" x 30'0" ) - Of steel stanchion construction with a corrugated cement fibre roof and a:-

Store Shed - 13.72m x 9.14m (45'0" x 30'0" ) - Of steel stanchion construction with Yorkshire board cladding and corrugated cement fibre roof. It is divided it into 3 Pens each measuring 30'0" x 15'0".

Former Silage Pit - With adjacent large Concrete Yard.

Hayshed - 18.29m x 6.10m (60'0" x 20'0" ) - Of steel stanchion construction with a corrugated cement fibre roof.

Cow Kennels - 22.86m x 6.10m (75'0" x 20'0" ) - Of timber construction with a box profile roof.

Loose Cattle Shed - 28.96m x 9.14m (95'0" x 30'0" ) - Of steel stanchion and concrete block construction with corrugated cement fibre cladding and roof with an adjoining:-

Lean To Shed - 27.43m x 6.10m (90'0" x 20'0" ) - Of steel stanchion and concrete block construction with corrugated cement fibre cladding and roof.

Reception Area/ Collecting Yard - 13.72m x 6.10m (45'0" x 20'0" ) - Of steel stanchion and concrete block construction with corrugated cement fibre cladding and roof.

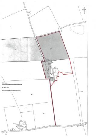
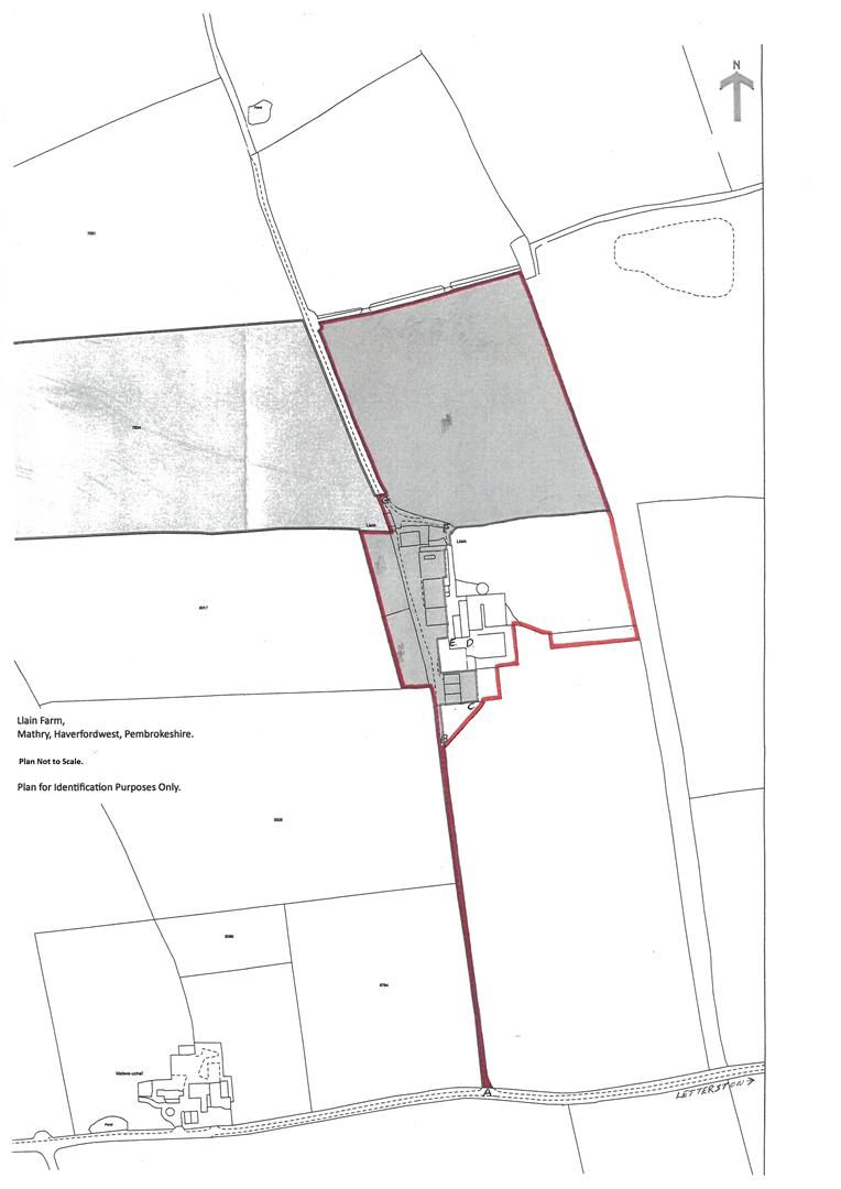
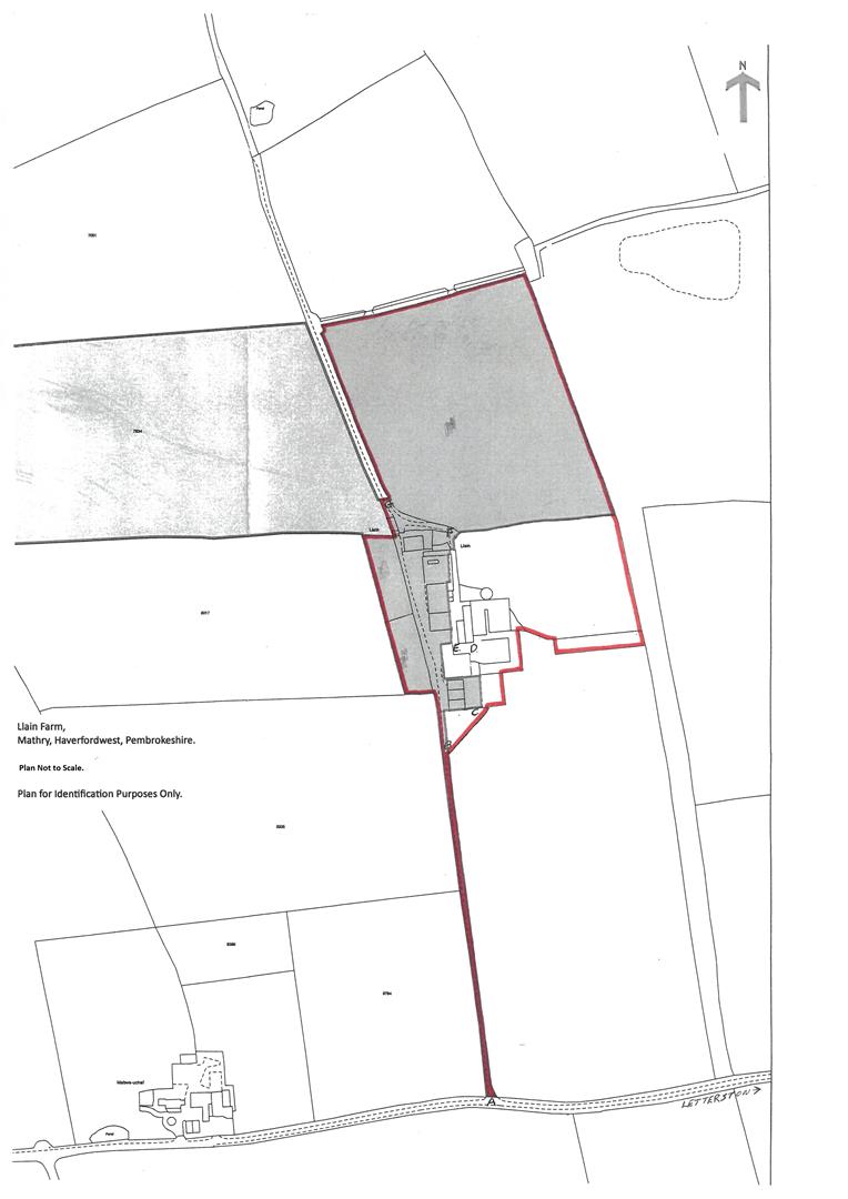
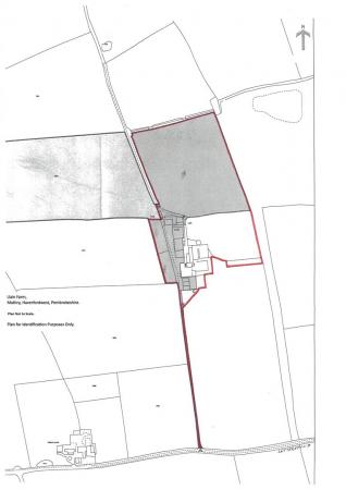
The Land - The Land in total extends to 18 Acres or thereabouts of which there is approximately 15 acres of clean, gently sloping Pasture Land which has been divided into several enclosures. The remaining 3 Acres or thereabouts comprises of the Homestead, Gardens and Grounds and the Land on which the Outbuildings stand, as well as the Access Lane.

The Pasture is Sheep Fenced and benefits from a Water supply from a Bore Hole.

The approximate boundaries of the Property are edged in red on the attached Plan to the Scale of 1/2500. The shaded area within the red boundary line was purchased initially, whilst the unshaded Land was purchased separately and is on a separate title.

Services - Mains Water (metered supply) and Electricity are connected. Septic Tank Drainage. uPVC Double Glazed Windows. 2 Composite Double Glazed Entrance Doors. Oil Central Heating. Roof and Wall Insulation. Telephone, subject to British Telecom Regulations. Broadband Connection.

Tenure - Freehold with Vacant Possession upon Completion.

Registered Holding - Llain Farm is a registered holding.

Rights Of Ways - Agricultural Access Rights of Ways exist in favour of the adjoining Land owner between points 'A', 'B', 'C', 'D' ,'E', 'F' and 'G' on the Plan.

Remarks - Llain is a delightfully situated 18 Acre holding which stands within 5 miles or so by road of the North Pembrokeshire Coastline at Abermawr and Abercastle. The Property is a substantial Detached 5/6 Bedroom Residence which has been totally refurbished and modernised to an extremely high standard in the last year or so. The Property is in excellent decorative order and benefits from Oil Central Heating, Roof and Wall Insulation and is uPVC Double Glazed. In addition, there is a substantial Stable Block with 5 stables and a Tack Room as well as an extensive range of Multipurpose Agricultural/Commercial Buildings with potential for agricultural machinery storage, vehicle storage or light industrial use (subject to any necessary consents). Residential holdings of this nature with an extensive range of Farm/Multipurpose Buildings are few and far between and the opportunity to purchase should not be missed.

The vendors have completely refurbished the house, added additional land, improved the yard and buildings to create a modern, practical and private holding, with stunning panoramic views of the sea and coastline of North Pembrokeshire.

Early inspection strongly advised.

Property Ref: 258964_34217512

Share:

Similar Properties

Penmynydd, Dinas Cross

4 Bedroom Not Specified | Offers in excess of £995,000

*A Delightfully situated 8 ? Acre Residential Smallholding which stands on the hillside adjacent to Dinas Mountain and b...

Maesteg, Mountain West, Newport

5 Bedroom Cottage | Guide Price £950,000

* A deceptively spacious Detached 2 storey Character Cottage Residence.* Well appointed 2/3 Reception, Kitchen/Breakfast...

Minafon, Pen-y-Bont, Newport

4 Bedroom Detached House | Guide Price £950,000

* An exceptional Detached 2 storey character Cottage Residence which has been renovated, extended and modernised through...

Residential Development Land, Newport

Residential Development | Offers Over £1,000,000

* Situated on the Eastern fringes of the popular Coastal Town of Newport, a valuable gently sloping Residential Developm...

Tan-y-Bryn, Cwm-Yr-Eglwys Road, Dinas Cross, Newport

8 Bedroom Detached House | Guide Price £1,100,000

* Undoubtedly one of the finest Coastal Properties to appear on the Open Market in recent years.* An attractive Detached...

JJ Morris (Fishguard)

21 West Street, Fishguard, SA65 9AL

01348 873836

How much is your home worth?

Use our short form to request a valuation of your property.

Request a Valuation

Mortgage Calculator

Amount Borrowed: £
Total Amount Repayable: £
Total Monthly Payment: £
©2025 The Guild of Property Professionals. All rights reserved. Terms and Conditions | Privacy Policy | Cookie Policy | Complaints Policy | Members Login
The Guild of Property Professionals Trading Address: 121 Park Lane, London W1K 7AG. GPEA Limited. Registered in England & Wales.  Company No: 02819824.  Registered Office Address: 2 St. Stephen's Court, St. Stephen's Road, Bournemouth, Dorset, England, BH2 6LA.  VAT Registration No: 576 8795 61
Book a Property Valuation Update Cookies Preferences