7.57 Acres Pasture and Mobile Stables at Carnhedryn, Solva, Haverfordwest

Guide Price
£87,500

Farm Land for sale in Haverfordwest

  • A valuable block of Pasture Land extending to 7.57 Acres or thereabouts,
  • Together with 3 no 12'0" x 12'0" Stables and a 12'0" x 8'0" Tack Room (on Skids).
  • The Land has frontage onto the Main A487 Fishguard to St Davids Road as well as the Council Maintained District Road leading from Carnhedryn towards Tretio, with field gate accesses onto both road...
  • Rarely do parcels of Land together with Stabling appear on the Open Market and the opportunity to purchase should not be missed.
  • Realistic Price Guide.

Fronting the Main A487 Fishguard to St Davids Road, a valuable block of Pasture Land extending to 7.57 Acres or thereabouts, together with 3 no 12'0" x 12'0" Stables and a 12'0" x 8'0" Tack Room (on Skids).

The Land has frontage onto the Main A487 Fishguard to St Davids Road as well as the Council Maintained District Road leading from Carnhedryn towards Tretio, with field gate accesses onto both roads.

Rarely do parcels of Land together with Stabling appear on the Open Market and the opportunity to purchase should not be missed. Realistic Price Guide.

Situation - The Land concerned is situated on the south western edge of the hamlet of Carnhedryn which is situated between the well known village of Croesgoch (2 miles north east) and the cathedral city of St Davids (3 ? miles south west).

Carnhedryn is a small hamlet which has a cluster of dwellings together with former Chapels and a Church which have both been converted to private dwellings.

Within a short drive is the well known village of Croesgoch which has the benefit of a Primary School, Chapel, Public House/Post Office, an Art Gallery, Repair Garage and an Agricultural Store.

St Davids being close by is renowned for its Cathedral and Bishops Palace and has the benefit of a good range of Shops, Secondary and Primary School, Churches, Chapels, Hotels, Restaurants, Public Houses, Cafes, Takeaways, Art Galleries, a Memorial/Community Hall, Ice Cream Parlour, a Supermarket, Memorial Hall and a Petrol Filling Station/Hotel/Store.

The other well known Harbour and Fishing Village of Solva is within 3 ? miles or so and some 15 miles or so south east is the County and Market Town of Haverfordwest.

Haverfordwest being close by has the benefit of an excellent Shopping Centre together with an extensive range of amenities and facilities including Comprehensive and Primary Schools, Churches, Chapels, Banks, Building Societies, Hotels, Restaurants, Public Houses, Cafes, Art Galleries, a Post Office, Library, Supermarkets, Petrol Filling Stations, Repair Garages, a Further Education College, The County Council Offices and The County Hospital at Withybush.

There are good road links along the Main A40 road from Haverfordwest to Carmarthen and the M4 to Cardiff and London as well as good rail links from both Fishguard and Haverfordwest to Carmarthen, Cardiff, London Paddington and the rest of the UK.

Directions - From Fishguard take the Main A487 road south west for some 9 miles passing through the village of Croesgoch and some 2 miles or so further on, proceed through the hamlet of Carnhedryn and on leaving the village, the Field concerned is situated on the right hand side of the road. A 'For Sale' board is erected adjacent to the field gate entrance.

Alternatively from Haverfordwest take the B4313 road north east for 15 miles and upon reaching the village of Croesgoch and the Main A487 Fishguard to St Davids Road, turn left. Continue on this road for 2 miles or so passing through the hamlet of Carnhedryn and the Land concerned is situated within a few hundred yards or so further on, on the right hand side of the road. A 'For Sale' board is erected on site.

N.B. There is a field gate access to the Land off the single track Council Maintained Tarmacadamed Road which links Carnhedryn with Tretio.

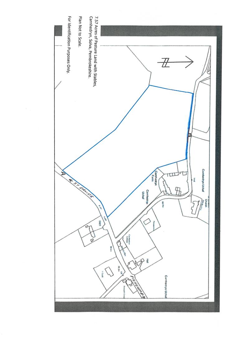
Description - The Land concerned has been over seeding annually with a Timothy and Fenescue and a Herbal Ley and extends to 7.57 Acres or thereabouts. The Land is currently divided into 3 Paddocks (one of which is a small turn out area with equine fencing) and is level lying with a westerly aspect and all sheep fenced. There are field gate accesses to the Land off the Main A487 road at or around point 'A' on the Plan and also off the Council Maintained Carnhedryn to Tretio road at point 'B' on the same plan.

The boundaries of the Land are edged in blue on the attached Plan which is NOT to Scale.

There is a Stable Block and Tack Room (which are both on Skids) at the northern end of the Land where there are:-

3 No Stables 12'0" X 12'0" - together with an adjoining:-

12'0" X 8'0" Tack Room -

Directly to the fore of the Stables and Tack Room are Mud Control Mats and there are also Mud Control Mats within the Stables themselves. The vendors are currently in the throes of having a Main Water Supply connected to a trough close to the Main A487 road boundary hedge.

Services - Mains Water will be connected to the Land (prior to the Completion of the Sale) to a trough close to the Main A487 boundary hedge.

Tenure - Freehold with Vacant Possession upon Completion.

Remarks - Rarely do parcels of Land with mobile Stabling appear on the Open Market and the opportunity to purchase should not be missed. The Land in total extends to 7.57 Acres which is all down to permanent Pasture and is currently divided into 3 Paddocks (including a small turn out area). There are 3 no 12'0" x 12'0" Stables and a 12'0" x 8'0" Tack Room (all mobile) at the northern end of the Land. Properties of this nature rarely appear on the Open Market and the opportunity to purchase should not be missed. Early inspection strongly advised.

N.B. The Stables and Tack Room are on skids and are therefore considered to be mobile.

Viewing:- Strictly by Appointment only.

Property Ref: 258964_34112751

Share:

Similar Properties

Plots 6, 7A, 7B & 8 Celtic Link Industrial Park, Dwrbach, Fishguad

Not Specified | From £75,000

4 Level lying Industrial Plots which stand on this conveniently located Industrial Park within three quarters of a mile...

4.84 Acres Agricultural Land, Little Newcastle, Haverfordwest

Farm Land | Guide Price £55,000

A valuable block of Pasture Land which extends to 4.84 Acres to include Half an Acre of Scrubland. Small blocks of Agric...

6.90 Acres of Pasture Land in 2 Lots, Square And Compass, Haverfordwest

Farm Land | From £50,000

* Fronting the Main A487 Fishguard to St Davids Road, 2 valuable Pasture Enclosures which extend to 6.90 Acres or therea...

Plot 1 Broyan Lane, Broyan Road, Penybryn, Cardigan

Plot | Guide Price £89,950

Situated on the edge of this popular village and fronting onto Broyan Lane some 2 ? miles or so south of Cardigan, a goo...

Building Plot Adj to 122, St Davids Road, Letterston

Plot | Guide Price £99,950

Fronting St Davids Road, a good sized, level lying Building Plot on which Detailed Planning Consent has been granted for...

20 Main Street, Fishguard

2 Bedroom Terraced House | Guide Price £99,950

*An attractive Listed Grade II Terraced Town House currently in need of some renovation work, modernisation and cosmeti...

JJ Morris (Fishguard)

21 West Street, Fishguard, SA65 9AL

01348 873836

How much is your home worth?

Use our short form to request a valuation of your property.

Request a Valuation

Mortgage Calculator

Amount Borrowed: £
Total Amount Repayable: £
Total Monthly Payment: £
©2026 The Guild of Property Professionals. All rights reserved. Terms and Conditions | Privacy Policy | Cookie Policy | Complaints Policy | Members Login
The Guild of Property Professionals Trading Address: 121 Park Lane, London W1K 7AG. GPEA Limited. Registered in England & Wales.  Company No: 02819824.  Registered Office Address: 2 St. Stephen's Court, St. Stephen's Road, Bournemouth, Dorset, England, BH2 6LA.  VAT Registration No: 576 8795 61
Book a Property Valuation Update Cookies Preferences