Leedstown, Spacious home with potential

Guide Price
£375,000

3 Bedroom Detached Bungalow for sale in Hayle

2 3 1
  • THREE BEDROOM PROPERTY WITH GREAT POTENTIAL
  • TWO RECEPTION LOUNGES OFFERING FLEXIBLE LIVING SPACE
  • KITCHEN WITH ADDITIONAL PORCH AREA
  • NO ONWARD CHAIN
  • GROUND FLOOR BEDROOM WITH WC AND SHOWER ROOM
  • FRONT AND REAR GARDENS
  • GARAGE WITH INSPECTION PIT AND ADDITIONAL STORAGE AREA
  • EPC- 56- D
  • COUNCIL TAX BAND- D
  • FREEHOLD TENURE

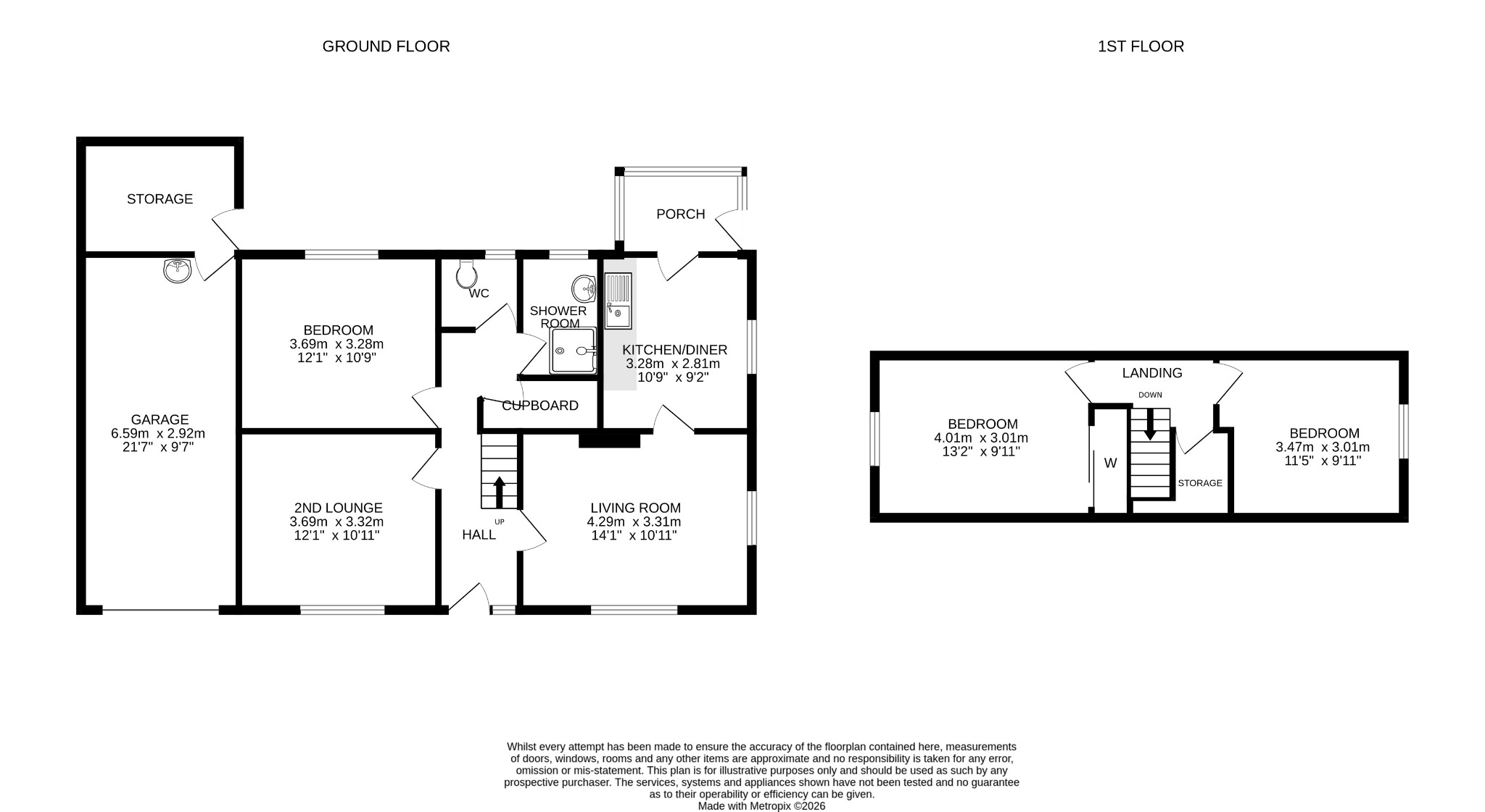
A three bedroom property offering generous accommodation and potential for improvement. The property is entered via an entrance hall which provides access to two reception lounges, offering flexible living space suitable for a variety of uses including family living and entertaining.The ground floor further benefits from a kitchen and porch area, along with a ground floor bedroom, WC and shower room, providing convenient and adaptable accommodation. To the first floor there are two additional bedrooms together with useful eaves storage space, which with the right permissions could be adapted to a toilet.Externally, the property enjoys gardens to both the front and rear, providing outdoor space with scope for landscaping or further enhancement. To the side of the property there is a garage fitted with an inspection pit, making it particularly suitable for vehicle maintenance, workshop use, or those requiring practical storage. Behind the garage there is an additional storage area offering further versatility.
Location –Situated in the centrally located and convenient village of Leedstown. To the North can be accessed the A30 as well as the major towns of Camborne and Redruth, to the East is the nearby market town of Helston widely regarded as the gateway to the Lizard Peninsula. A southerly direction will take you through nearby, Townshend, Marazion and Penzance, where your journey could end at lovely Land’s End. Whilst to the west lies Hayle, St Ives and the spectacular North Coast famed for it’s surf conditions. Leedstown offers a primary school and traditional public house, with nearby Townshend benefitting from an excellent and well stocked farm shop. There are a plethora of lovely rural walks in the area including nearby Crenver Grove with the property also being near to the historic Godolphin Estate with acres of land and a host of pretty walks and the site where the first episode of Poldark was filmed.
Accommodation – Entrance hall, lounge/dining room, kitchen, porch, second lounge, bedroom, WC, and shower room. Stairs leading upstairs to two bedrooms and a storage cupboard with access to eaves storage.
Garage – There is a single Garage with inspection pit and a further storage area to the rear.
Parking – There is parking for one car at the front of the property.
Outside – To the front the garden is laid to lawn with a flower border, there is access to the side of the property which goes around to the rear garden, which is laid to lawn with multiple shrubs.
Services – Mains Water and Electricity. Private Drainage and Oil heating.
Council Tax Band – D
What3Words – ///compacts.treetop.layers
Anti Money Laundering Regulations – Purchasers- It is a legal requirement that we receive verified ID from all buyers before a sale can be instructed. We will inform you of the process once your offer has been accepted.
Proof of Finances- Before agreeing a sale, we will require proof of your financial ability to purchase. We will inform you of what we require prior to agreeing a sale.
Broadband & Mobile Phone Coverage- To check the broadband coverage for this property please visit https://www.openreach.com/fibre-broadband. To check mobile phone coverageplease visit https://checker.ofcom.org.uk/

Important Information

  • This is a Freehold property.
  • This Council Tax band for this property is: D

Property Ref: 489682

Share:

Similar Properties

Connor Downs, Spacious family home

4 Bedroom Detached House | Guide Price £375,000

This spacious four bedroom home offers versatile living accommodation across two floors, with the ground floor comprisin...

Godolphin Cross, Modernised detached bungalow

3 Bedroom Detached Bungalow | Offers in excess of £375,000

Set within the ever popular village of Godolphin, this attractive three bedroom detached bungalow has been thoughtfully...

Porkellis, Cottage with large garden and countryside views

3 Bedroom Cottage | Offers in excess of £375,000

Nestled in the picturesque village of Porkellis, this charming three-bedroom semi-detached cottage presents a delightful...

Ashton, Modern detached home near to coast

3 Bedroom Detached House | Guide Price £385,000

A modern and spacious three bedroom detached property, with a fantastic open plan living room, that opens onto the garde...

Godolphin Cross, Bungalow with Plot

2 Bedroom Bungalow | Guide Price £395,000

This two bedroom bungalow, nestled at the end of a tranquil lane and surrounded by lush woodland. The setting offers a p...

St. Hilary, Versatile home with great opportunity

5 Bedroom Detached House | Guide Price £395,000

This generous five bedroom property offers a fantastic opportunity for anyone looking to create a home to their own tast...

The Mather Partnership (Helston)

Helston, Cornwall, TR13 8AA

01326 565016

How much is your home worth?

Use our short form to request a valuation of your property.

Request a Valuation

Mortgage Calculator

Amount Borrowed: £
Total Amount Repayable: £
Total Monthly Payment: £
©2026 The Guild of Property Professionals. All rights reserved. Terms and Conditions | Privacy Policy | Cookie Policy | Complaints Policy | Members Login
The Guild of Property Professionals Trading Address: 121 Park Lane, London W1K 7AG. GPEA Limited. Registered in England & Wales.  Company No: 02819824.  Registered Office Address: 2 St. Stephen's Court, St. Stephen's Road, Bournemouth, Dorset, England, BH2 6LA.  VAT Registration No: 576 8795 61
Book a Property Valuation Update Cookies Preferences