Swansbrook Lane, Horam

Guide Price
£750,000

3 Bedroom Detached House for sale in Heathfield

2 3 1

GUIDE PRICE: £750,000

• Detached three-bedroom family home extending to approximately 1,275 sq ft set on 0.62 acres.

• Situated in a semi-rural position on the fringes of Horam, with countryside surroundings

• Potential to extend subject to planning permission

• Spacious open-plan kitchen/dining room featuring an oil-fired Aga and garden outlook

• Two well-proportioned reception rooms including a family room with wood-burning stove and a dual-aspect lounge with garden access

• Three bedrooms, including two generous doubles and a versatile third bedroom with fitted storage

• Spacious family bathroom with walk-in shower and scope for reconfiguration

• Excellent potential for modernisation and improvement throughout

• Generous, private gardens predominantly laid to lawn with mature trees, planting and a large terrace

• Detached outbuilding and garage offering storage and further potential (STPP), with ample off-road parking

• Convenient access to Stonegate and Buxted stations for London commuting, with a range of well-regarded state and independent schools nearby

LOCATION: This property is situated on the rural fringes of Horam, a well-regarded East Sussex village offering a range of everyday amenities including local shops, cafés, medical facilities and a primary school. The nearby market town of Heathfield provides a broader selection of supermarkets, independent retailers and leisure facilities, whilst the surrounding countryside offers excellent walking, riding and outdoor pursuits.

For commuters, mainline rail services can be found at nearby Stonegate railway station and Buxted railway station, both providing regular services to London Bridge and London Charing Cross. Some of the nearest railway stations are Berwick and Polegate. Further services are available from Tunbridge Wells railway station, offering a wider range of connections. The A267 provides convenient road links to Tunbridge Wells, Eastbourne and the wider regional network.

The area is particularly well served for schooling, with a selection of highly regarded state and independent options. One of the most highly regarded options for Primary education is Chiddingly Primary School. Primary education is also available at Maynards Green Community Primary School and Horam Primary School, whilst secondary education can be found at Heathfield Community College. Independent schools in the area include Skippers Hill Manor Preparatory School, Mayfield School and Bede's Senior School, all of which are well regarded and within convenient driving distance.

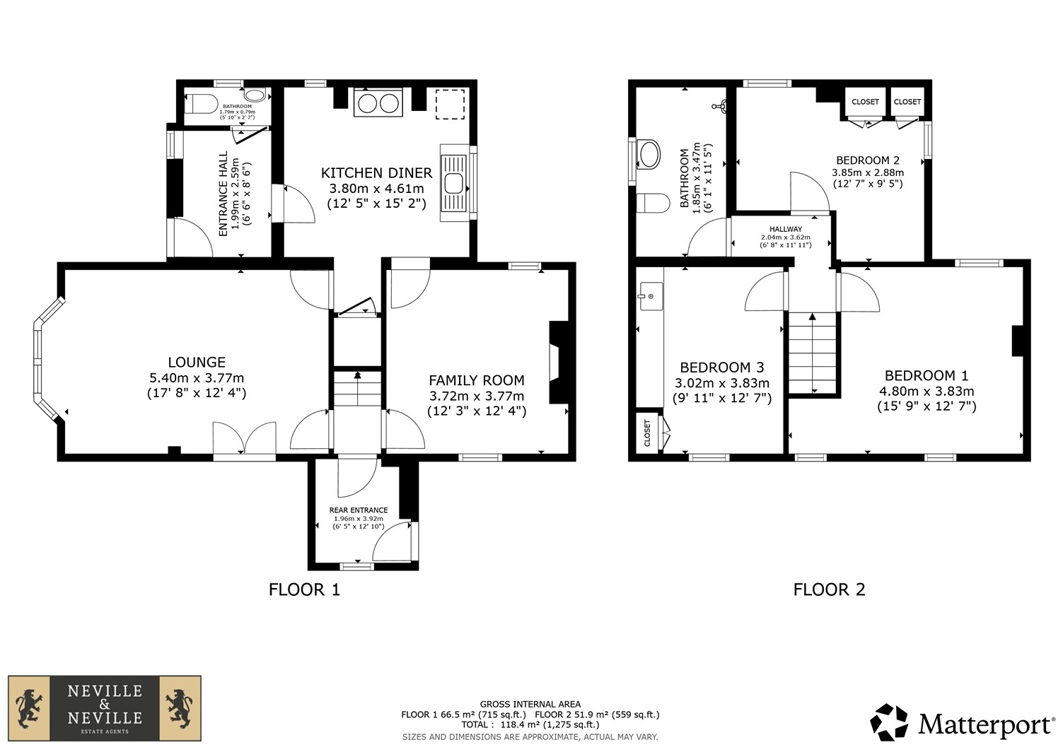
ENTRANCE HALL: A practical entrance hall providing a useful transition into the main accommodation. The space benefits from natural light via a window to the rear, creating a bright and welcoming feel upon arrival.

There is ample room for coats, shoes and everyday storage, with a traditional timber door adding character. A further internal door provides access through to the remainder of the property, while the layout offers scope for reconfiguration or enhancement if desired.

KITCHEN/DINING ROOM: A charming and characterful open-plan kitchen/dining room, enjoying a dual-aspect that allows for an abundance of natural light throughout the day. The space comfortably accommodates a central dining table, making it ideal for both everyday family living and entertaining.

The kitchen is fitted with a range of traditional wooden base units with work surfaces over, complemented by a large window overlooking the garden. A recessed chimney breast houses an oil-fired Aga, creating an attractive focal point and adding to the room’s period appeal. There is space for freestanding appliances, and a useful arrangement of additional cabinetry provides ample storage.

With its cottage-style doors, exposed shelving and warm timber finishes, the room offers a delightful blend of practicality and rustic charm, while also presenting an excellent opportunity for modernisation to suit individual tastes.

FAMILY ROOM: A well-proportioned and inviting family room, enjoying a pleasant outlook via a large window that allows for excellent natural light. The space is centred around an attractive brick fireplace with inset wood-burning stove, creating a warm and characterful focal point ideal for cosy evenings.

The room offers ample space for a range of seating arrangements, making it perfectly suited for both relaxation and entertaining. Neutral décor enhances the sense of light and space, while traditional elements add charm and personality.

Conveniently positioned with an open connection through to the kitchen/dining room, the layout lends itself well to modern family living, whilst still retaining a distinct and comfortable reception area.

LOUNGE: A generously proportioned and light-filled principal reception room, enjoying a pleasant dual aspect with a large bay window overlooking the garden and glazed doors providing direct access outside. The room offers an excellent sense of space, easily accommodating multiple seating areas and ideal for both formal entertaining and relaxed family living.

A feature fireplace with tiled surround and hearth forms a central focal point, while the expansive proportions of the room present superb versatility for a variety of layouts. The abundance of natural light enhances the warm and inviting atmosphere throughout.

Although now requiring modernisation, the room provides a fantastic opportunity to create an impressive and elegant living space tailored to individual tastes.

BEDROOM 1: A well-proportioned double bedroom, enjoying a dual-aspect with windows to two elevations that provide a good level of natural light and pleasant outlooks over the surrounding grounds.

The room offers ample space for a range of bedroom furnishings, including wardrobes and additional storage, and benefits from a practical layout that can be easily adapted to suit individual requirements.

BEDROOM 2: A well-proportioned bedroom, enjoying a pleasant outlook via a window that allows for good natural light. The room offers ample space for a single or small double bed, along with additional furniture such as wardrobes and storage.

The layout is practical and versatile, with a built-in cupboard providing useful storage. Positioned off the landing, the room is conveniently located within the accommodation and would be well suited as a guest bedroom, child’s room or home office.

BEDROOM 3: A generously sized double bedroom, enjoying a pleasant outlook via a large window that provides excellent natural light and views over the garden.

The room offers ample space for a range of bedroom furnishings and benefits from fitted storage, with built-in wardrobes and a run of cabinetry incorporating a sink unit, providing additional practicality and potential for reconfiguration.

FAMILY BATHROOM: A spacious family bathroom, benefiting from a large window that provides excellent natural light and pleasant outlooks over the surrounding grounds.

The suite currently comprises a walk-in shower with glass screen, pedestal wash hand basin and low-level WC. The generous proportions of the room offer scope for reconfiguration, with potential to introduce a bath or create a more contemporary layout if desired.

GARDEN/OUTSIDE AREA: The property is set within generous and well-established gardens, predominantly laid to lawn and offering a high degree of privacy, bordered by mature hedging, trees and shrubs.

To the rear, a substantial paved terrace adjoins the house, providing an ideal space for outdoor dining and entertaining, with direct access from the accommodation. The gardens extend beyond, creating a wide expanse of lawn interspersed with mature planting, specimen trees and areas of interest, including a greenhouse and garden structures.

A detached outbuilding provides useful storage or potential for a variety of uses, subject to any necessary consents, while a gravel driveway offers ample off-road parking and leads to a detached garage.

Overall, the grounds provide a delightful setting for the property, offering both space and versatility, ideal for family enjoyment and further landscaping potential.

AGENTS NOTE: Please note that these details have been prepared as a general guide and do not form part of a contract. We have not carried out a detailed survey, nor tested the services, appliances and specific fittings. Room sizes are approximate and should not be relied upon. Any verbal statements or information given about this property, again, should not be relied on and should not form part of a contract or agreement to purchase.

EPC: F with potential for C

Council Tax Band: F

Important Information

  • This is a Freehold property.
  • This Council Tax band for this property is: F
  • EPC Rating is F

Property Ref: FAN260021

Share:

Similar Properties

Amberstone, Hailsham

5 Bedroom Detached House | Guide Price £750,000

PLOT 1 GUIDE PRICE: £750,000• Zoned underfloor heating on all three floors• PLEASE NOTE: Both properties now have their...

Pound Lane, Laughton

5 Bedroom Semi-Detached House | Guide Price £750,000

GUIDE PRICE: £750,000• A 1,240 square foot 5 bedroom semi-detached residence set in the idyllic semi-rural location in t...

Five Ashes, Mayfield

4 Bedroom Detached House | Guide Price £750,000

GUIDE PRICE £750,000• Attractive detached 4-bedroom character home set within approx. 1.5 acres• CHAIN FREE• Equestrian...

Hurst Lane, Seddlescombe

3 Bedroom Detached Bungalow | Asking Price £759,950

MAIN SPECIFICATIONS : LARGE DETACHED CHALET BUNGALOW IN QUIET RURAL SETTING. GARDENS IN EXCESS OF HALF AN ACRE (TBV). DE...

With Circa 3.8 Acres, Burwash Common

3 Bedroom Detached House | Guide Price £769,000

GUIDE PRICE: £769,000 - 779,000• A detached 3 bedroomed single storey dwelling smallholding with circa 3.812 acres • Pot...

Field View, Gardner Street

3 Bedroom Detached Bungalow | Guide Price £770,000

GUIDE PRICE: £770,000• A luxury detached bespoke eco modern luxury chalet bungalow with generous sized gardens • Located...

Neville & Neville Estate Agents (Hailsham)

Cowbeech, Hailsham, East Sussex, BN27 4JL

01323 833 630

How much is your home worth?

Use our short form to request a valuation of your property.

Request a Valuation

Mortgage Calculator

Amount Borrowed: £
Total Amount Repayable: £
Total Monthly Payment: £
©2026 The Guild of Property Professionals. All rights reserved. Terms and Conditions | Privacy Policy | Cookie Policy | Complaints Policy | Members Login
The Guild of Property Professionals Trading Address: 121 Park Lane, London W1K 7AG. GPEA Limited. Registered in England & Wales.  Company No: 02819824.  Registered Office Address: 2 St. Stephen's Court, St. Stephen's Road, Bournemouth, Dorset, England, BH2 6LA.  VAT Registration No: 576 8795 61
Book a Property Valuation Update Cookies Preferences