Heavitree, Exeter

Guide Price
£350,000
SSTC
This property listing is now SSTC

3 Bedroom Terraced House for sale in Heavitree

1 3 1

Directions

From the City Centre, head along Heavitree Road, turning right onto Barrack Road, then left onto Magdalen Road. Take the first right into Baker Street and the property will be found on your right hand side.

Situation

Baker Street is a quiet road situated on the edge of St Leonards within walking distance of the Magdalen Road shops and the RD&E Hospital.

The property is within walking distance of the City Centre, which provides a number of excellent private and state schools together with Exeter University and sixth form college.

The city benefits from excellent sports and leisure facilities being situated on the river and offering a selection of theatres, cinemas, museum, cathedral, football, rugby and leisure centres.

Exeter St David's train station offers rail links to London Paddington and Exeter Airport is approximately five miles away.

Description

Situated in a popular Heavitree location, this elegant three bedroom period home offers a wonderful balance of character, space and modern finishes. With a wide range of local amenities on the doorstep within walking distance to the R,D&E and Magdalen Road shops.

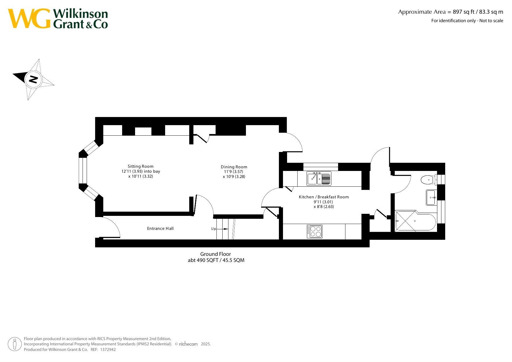
The accommodation is bright and welcoming throughout, arranged over two floors with open plan accommodation provides generous living space and flexibility. A useful entrance porch opens into a generous hallway. To the front, the bay fronted living room creates a cosy and inviting space, where a feature fireplace forms the focal point and natural light floods in through the large bay window. The room offers an ideal dining space for family gatherings or entertaining guests.

To the rear of the property, a beautifully presented kitchen has been thoughtfully designed to combine practicality with contemporary appeal. Offering ample storage, integrated appliances, and access to a handy utility area housing the washing machine and tumble dryer, it's a superb space for modern family life. Beyond, the stylish fully tiled bathroom includes a P-shaped bath with shower over, low-level WC, pedestal wash hand basin, and a contemporary heated towel rail.

The first floor offers three well-presented and proportioned bedrooms, each with its own character, the principal boasts twin aspect windows allowing for a light filled spacious and built in wardrobes.

Outside, the rear garden is attractively landscaped for low maintenance, fully laid to patio with a sunny aspect ideal for alfresco dining, entertaining, or simply relaxing. The garden is fully enclosed and benefits from rear pedestrian access via a service lane, along with a useful timber store offering additional overhead storage.

SERVICES:    The vendor has advised the following: Mains gas (serving the central heating boiler and hot water), mains electricity, water and drainage. Wood burner in the living room.
Telephone landline (digital) currently in contract with Sky. Broadband (fibre optic to property) currently in contract with Sky. approx. Download speed 394.85Mbps and Upload speed 64.6 Mbps.
Mobile signal: Several networks currently showing as available at the property.

AGENTS NOTE:    The property benefits from Residents Permit Parking in Zone P. The vendor advises that there is a ring doorbell at the front door.

50.720583 -3.509905

Important Information

  • This is a Freehold property.

Property Ref: SOU210435

Share:

Similar Properties

Dinneford Street, Thorverton, Exeter

2 Bedroom Bungalow | Guide Price £350,000

DETACHED two double bedroom BUNGALOW offering a fantastic opportunity to create your perfect home in the desirable villa...

Exeter, Devon

3 Bedroom Semi-Detached House | Guide Price £350,000

A spacious, semi-detached 1930's style FAMILY HOME, enjoying a PLEASANT CUL DE SAC location with excellent access to PUB...

Exeter, Devon

4 Bedroom Terraced House | Guide Price £350,000

Four bedroom terraced in an IDEAL LOCATION. Country feel from garden, nearby trees and parks. RESIDENTS PARKING. Great a...

Ide, Exeter

3 Bedroom Detached House | Guide Price £360,000

A charming THREE BEDROOM link detached house located in the centre of this SOUGHT AFTER VILLAGE just 3 miles from Exeter...

Haven Bank, Exeter

2 Bedroom Flat | Guide Price £370,000

HIGH QUALITY PENTHOUSE APARTMENT enjoying a WATERSIDE LOCATION. RARELY AVAILABLE with 27FT x 23FT KITCHEN/LIVING AREA. T...

Pinhoe, Exeter

3 Bedroom Bungalow | Guide Price £375,000

DETACHED 3 BEDROOM BUNGALOW in a quiet Pinhoe cul-de-sac, offering flexible accommodation, modern kitchen, CONSERVATORY,...

Wilkinson Grant & Co (Exeter)

1 Castle Street, Southernhay West, Exeter, Devon, EX4 3PT

01392 427500

How much is your home worth?

Use our short form to request a valuation of your property.

Request a Valuation

Mortgage Calculator

Amount Borrowed: £
Total Amount Repayable: £
Total Monthly Payment: £
©2026 The Guild of Property Professionals. All rights reserved. Terms and Conditions | Privacy Policy | Cookie Policy | Complaints Policy | Members Login
The Guild of Property Professionals Trading Address: 121 Park Lane, London W1K 7AG. GPEA Limited. Registered in England & Wales.  Company No: 02819824.  Registered Office Address: 2 St. Stephen's Court, St. Stephen's Road, Bournemouth, Dorset, England, BH2 6LA.  VAT Registration No: 576 8795 61
Book a Property Valuation Update Cookies Preferences