Wheal Vor, Cottage with approximately 6.2 acres

Guide Price
£599,950

3 Bedroom Cottage for sale in Helston

2 3 1
  • APPROX. 6.2 ACRES OF PARTIALLY LEVEL GRAZING LAND
  • EXCELLENT EQUESTRIAN & SMALLHOLDING POTENTIAL
  • CHARMING 3-BEDROOM COTTAGE READY TO PUT YOUR OWN STAMP ON
  • CHARACTERFUL ACCOMMODATION IN NEED OF MODERNISATION
  • RANGE OF USEFUL OUTBUILDINGS INCLUDING A STABLE BLOCK
  • TWO-STOREY OUTBUILDING
  • IDYLLIC RURAL SETTING WITH BEAUTIFUL CORNISH COUNTRYSIDE VIEWS
  • EPC- 42- E
  • COUNCIL TAX BAND- D
  • FREEHOLD TENURE

Set within approximately 6.2 acres of partially level grazing land, this charming rural property offers an excellent opportunity for those seeking an equestrian or smallholding lifestyle, the property is ready to put its own stamp on.
The three bedroom cottage provides comfortable and characterful accommodation yet ready for modernisation, comprising a galley style kitchen, separate dining room, cosy lounge, and a conservatory overlooking the garden. The layout offers a practical flow while retaining a warm and welcoming feel.
Externally, the property benefits from a garden area and a range of useful outbuildings. These include a stable block and a two storey outbuilding, offering excellent potential for storage, workshop space, or further development (subject to any necessary consents).
The 6.2 acres of grazing are partially level and well suited to equestrian use or small holder purposes, making this an ideal purchase for those looking to enjoy country living with land and facilities in place.
Location – Nestled within the heart of the beautiful Cornish countryside and close to the National Trusts Godolphin House Estate, is the picturesque rural hamlet of Wheal Vor, a thriving rural hamlet with an active community and village hall. Offering easy access to both the North and South coasts as well as the popular fishing village of Porthleven the larger village of Breage is just approximately 2 miles away providing a Public House, Post Office, Shop and a Primary School. There are many gorgeous walks on the doorstep including The Downs, Godolphin Hill and Tregonning Hill both with stunning panoramic views. The towns of Helston, Hayle and Penzance are within a 10 to 20 minute drive of the property. The South Cornish coastline at Praa Sands is approximately 10 minutes away by car.
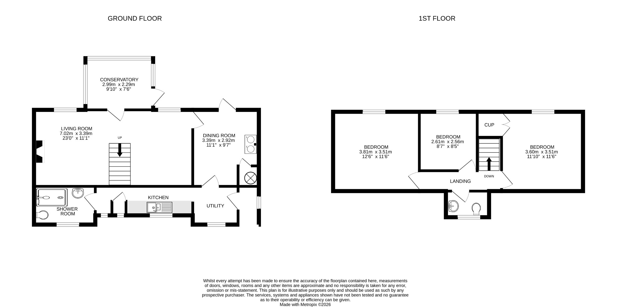
Accommodation– Entrance hall, galley kitchen, shower room, dining room, lounge/diner, and conservatory. To the first floor are three bedrooms.
Outbuildings – The property boasts an excellent range of outbuildings, including a stable block, a two-storey building, and cow ties.
Parking – Ample parking is available to the front of the property, with extensive hardstanding areas.
Land – The land surrounds the property and is thoughtfully divided into five well-proportioned paddocks, extending to approximately 6.2 acres of predominantly level grazing land. This versatile outdoor space is ideally suited to a smallholding lifestyle or equestrian use, offering excellent potential for a variety of rural pursuits.
Outside – The property also benefits from a beautifully positioned rear garden that enjoys sunshine throughout the day. Laid mainly to lawn and bordered by mature, well-established flower beds, it provides a private and attractive outdoor space ideal for relaxing or entertaining.
Services – Mains water and electricity, private drainage, oil-fired Aga, and electric heating.
Agents Note - Please note the photos were taken in 2023.
Council Tax Band – D
What3Words – ///slung.starlight.scramble
Anti Money Laundering Regulations – Purchasers- It is a legal requirement that we receive verified ID from all buyers before a sale can be instructed. We will inform you of the process once your offer has been accepted.
Proof of Finances- Before agreeing a sale, we will require proof of your financial ability to purchase. We will inform you of what we require prior to agreeing a sale.
Broadband & Mobile Phone Coverage- To check the broadband coverage for this property please visit https://www.openreach.com/fibre-broadband. To check mobile phone coverage please visit https://checker.ofcom.org.uk/

Important Information

  • This is a Freehold property.
  • This Council Tax band for this property is: D

Property Ref: 488228

Share:

Similar Properties

Stunning high spec new build, Ashton

4 Bedroom Detached House | Guide Price £599,950

An exceptional new build home, thoughtfully designed and beautifully finished, offering light filled, generously proport...

Detached Property with 2.6 Acres of Land, Stables, Piggery & Hay Store, Trevarth

3 Bedroom Barn Conversion | Guide Price £599,950

This well presented detached barn conversion is set within approximately 2.6 acres of land and enjoys lovely countryside...

Spacious family home, Helston

4 Bedroom Detached House | Guide Price £595,999

Enjoying stunning views across the Cober Valley and open countryside beyond, this spacious and well presented 4 bedroom...

St. Erth Praze, Flexible detached family home

4 Bedroom Detached House | Guide Price £600,000

Situated in the picturesque setting of Steppy Downs Road, St. Erth Praze, this incredibly spacious and flexible detached...

Large Modern Family Home, Leedstown

5 Bedroom Detached House | Offers in excess of £620,000

Step into luxury with this exceptional modern four/five bedroom detached house, boasting a flawless finish throughout. T...

Helston, Spacious property set within approximately 3 acres

4 Bedroom Detached House | Guide Price £625,000

This spacious property, set within approximately three acres, offers a rare opportunity to create a dream home in a peac...

The Mather Partnership (Helston)

Helston, Cornwall, TR13 8AA

01326 565016

How much is your home worth?

Use our short form to request a valuation of your property.

Request a Valuation

Mortgage Calculator

Amount Borrowed: £
Total Amount Repayable: £
Total Monthly Payment: £
©2026 The Guild of Property Professionals. All rights reserved. Terms and Conditions | Privacy Policy | Cookie Policy | Complaints Policy | Members Login
The Guild of Property Professionals Trading Address: 121 Park Lane, London W1K 7AG. GPEA Limited. Registered in England & Wales.  Company No: 02819824.  Registered Office Address: 2 St. Stephen's Court, St. Stephen's Road, Bournemouth, Dorset, England, BH2 6LA.  VAT Registration No: 576 8795 61
Book a Property Valuation Update Cookies Preferences