Cottage Near the Beach with Parking, Mullion Cove

Guide Price
£280,000
SSTC
This property listing is now SSTC

3 Bedroom Terraced House for sale in Helston

1 3 2
  • TERRACED COTTAGE SET OVER THREE FLOORS
  • THREE BEDROOMS
  • SEA VIEWS
  • OPEN PLAN LIVING AREA
  • OFF ROAD PARKING
  • NO ONWARD CHAIN
  • ENCLOSED GARDEN
  • CLOSE PROXIMITY TO MULLION COVE
  • EPC-F-26, COUNCIL TAX BAND-C
  • FREEHOLD TENURE

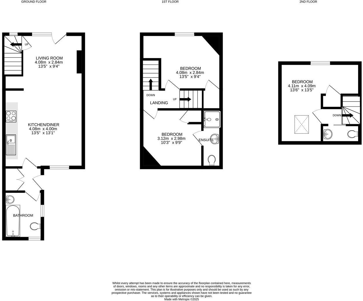
Perfectly positioned near the beach and within easy reach of the village centre, this delightful three bedroom cottage offers breathtaking sea views and an exciting opportunity to create your dream coastal retreat. Set over three floors, the home is designed to make the most of its picturesque surroundings. The ground floor welcomes you into an open plan kitchen, dining, and lounge area, creating a sociable and versatile living space aswell as a family bathroom. On the first floor, you’ll find two spacious double bedrooms, with one bedroom enhanced by an ensuite. The top floor is dedicated to a large double bedroom featuring built-in storage, sea views, and the added convenience of a separate toilet.
Outside, the enclosed rear garden is mainly laid to lawn, with mature shrubs providing a sense of privacy. To the front, off-road parking for two vehicles adds to the property’s practicality.
Guide Price- £280,000 -
Location - Situated in an area of outstanding natural beauty, this property provides an exceptional opportunity for someone to purchase a property just moments from the dramatic coastline of Mullion Cove and the South West Coast Path. Mullion Cove is a quaint fishing cove on the West Coast of the Lizard Peninsula in Cornwall with unrivaled access to stunning coastal walks, beautiful beaches and rural countryside. The village of Mullion which is the largest village on the Lizard Peninsula, is approximately one mile away and offers a good range of facilities including primary and secondary schools, a health centre and pharmacy as well as local public houses and shops. The market town of Helston is some eight miles distant and provides a more comprehensive range of shops and amenities and the main line rail link to London Paddington can be picked up from Penzance, Redurth or Truro.
Accommodation - Open Plan Living Room/Dining Room/KitchenFront PorchBathroomStairs to LandingBedroom ThreeBedroom Two with EnsuiteStairs to LandingBedroom One with Ensuite Toilet
Parking - Off road parking for two vehicles
Outside - This attractive south facing garden is predominantly laid to lawn, offering a spacious and versatile outdoor area ideal for relaxation or family activities. A well-positioned patio provides the perfect spot for outdoor dining or entertaining, while mature shrubs border the garden, creating a pleasant green backdrop and a high degree of privacy.
Services - Main electricity, water. Private drainage.
Agents Note - Our client has informed us that the property enjoys pedestrian and vehicular access over the private lane.
Rights Of Way - Our client has informed us that the neighbouring properties have pedestrian right of way across the bottom of the garden.
Council Tax Band- C -
What3words - ///masterful.happier.lecturers
Anti Money Laundering Regulations – Purchasers - It is a legal requirement that we receive verified ID from all buyers before a sale can be instructed. We will inform you of the process once your offer has been accepted.
Proof Of Finances - Before agreeing a sale, we will require proof of your financial ability to purchase. We will inform you of what we require prior to agreeing a sale.
Broadband & Mobile Phone Coverage - To check the broadband coverage for this property please visit check mobile phone coverage please visit

Important Information

  • This is a Freehold property.
  • This Council Tax band for this property is: C

Property Ref: 485575

Share:

Similar Properties

Family home for local buyers, Godolphin Cross

3 Bedroom Semi-Detached House | Guide Price £280,000

Tucked away in a peaceful position within a highly sought after village, this three/four bedroom semi-detached home offe...

Cottage with Sea Views, Mullion Cove

3 Bedroom Terraced House | Guide Price £280,000

Set over three levels to maximise both space and breathtaking sea views, this delightful three bedroom terraced cottage...

Helston, Bungalow with no chain

3 Bedroom Detached Bungalow | Guide Price £280,000

Situated in a highly sought after location, this three bedroom bungalow offers comfortable and versatile living in a con...

Wonderfully presented home, Praze

2 Bedroom Terraced House | Guide Price £285,000

Situated in the charming and picturesque village of Praze, this wonderfully presented terraced house house offers a deli...

Family home with countryside views, Helston

3 Bedroom Semi-Detached House | Guide Price £285,000

Tucked away in a quiet cul-de-sac enjoying lovely countryside views, this three bedroom semi detached home offers comfor...

Helston, Stylish three bedroom home

3 Bedroom Semi-Detached House | Guide Price £290,000

Set within a sought after residential area, this stylish three bedroom semi detached home has been tastefully modernised...

The Mather Partnership (Helston)

Helston, Cornwall, TR13 8AA

01326 565016

How much is your home worth?

Use our short form to request a valuation of your property.

Request a Valuation

Mortgage Calculator

Amount Borrowed: £
Total Amount Repayable: £
Total Monthly Payment: £
©2026 The Guild of Property Professionals. All rights reserved. Terms and Conditions | Privacy Policy | Cookie Policy | Complaints Policy | Members Login
The Guild of Property Professionals Trading Address: 121 Park Lane, London W1K 7AG. GPEA Limited. Registered in England & Wales.  Company No: 02819824.  Registered Office Address: 2 St. Stephen's Court, St. Stephen's Road, Bournemouth, Dorset, England, BH2 6LA.  VAT Registration No: 576 8795 61
Book a Property Valuation Update Cookies Preferences