Link detached family home with great potential, Porthleven

Guide Price
£310,000
SSTC
This property listing is now SSTC

2 Bedroom Link Detached House for sale in Helston

2 2 2
  • TWO BEDROOM LINK-DETACHED HOUSE
  • GARAGE
  • PARKING FOR ONE VEHILCE
  • GOOD SIZE GARDEN
  • NEAR BY AMENITIES
  • WALKING DISTANCE TO HARBOUR AND BEACH
  • NO ONWARD CHAIN
  • FREEHOLD TENURE
  • COUNCIL TAX BAND- C
  • EPC-31-F

MOTIVATED VENDORS - OPEN TO OFFERS. Situated in a sought after residential area of Porthleven and being sold with no onward chain, this delightful link-detached family home presents an exciting opportunity for those looking to create their dream residence. Boasting two spacious reception rooms, this property offers ample space for family gatherings and entertaining guests. With two well-proportioned bedrooms and two bathrooms, it is perfectly suited for a small family or those seeking a peaceful retreat. One of the standout features of this property is the stunning sea and countryside views, which can be enjoyed from various vantage points within the home. The good-sized gardens offer a wonderful space for outdoor activities, gardening, or simply relaxing in the fresh air. Although the property requires some updating, it offers incredible potential and is also being sold with the added benefit of no onward chain. With parking available for two vehicles, convenience is assured. This home is brimming with potential, making it an ideal choice for those looking to invest in a property that they can truly make their own.
Guide Price - £310,000 -
Location - Porthleven is a vibrant village offering an array of quality restaurants and cafes as well as day to day facilities to include a supermarket, primary school and doctors surgery. With a gorgeous traditional working harbour and beach this is a super and much sought after location.
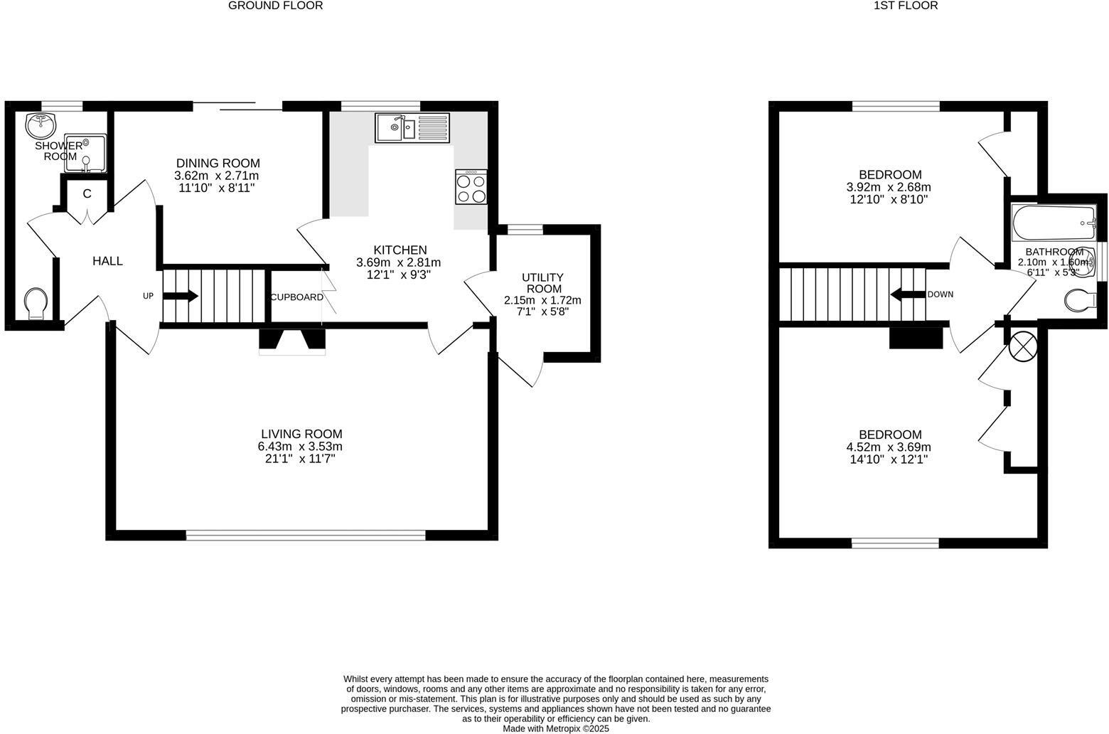
Accommodation - Entrance hallLiving roomDining roomKitchenUtility roomShower roomBedroomBedroomBathroom
Garage & Parking - The property benefits from a detached garage with a manual door, equipped with power and light. Parking for one vehicle in front of the garage.
Outside - The property benefits from occupying a good size plot with spacious gardens that wrap around the property. Generous patio areas with mature shrubs and bushes. Raised landscaped garden with steps leading up to the road.
Services - Mains water, drainage and electricity. Freehold tenure.
Council Tax - Band C -
Anti Money Laundering Regulations – Purchasers - It is a legal requirement that we receive verified ID from all buyers before a sale can be instructed. We will inform you of the process once your offer has been accepted.
Proof Of Finances - Before agreeing a sale, we will require proof of your financial ability to purchase. We will inform you of what we require prior to agreeing a sale.
Broadband & Mobile Phone Coverage - To check the broadband coverage for this property please visit check mobile phone coverage please visit
What3words - ///relate.motel.trickling

Important Information

  • This is a Freehold property.
  • This Council Tax band for this property is: C

Property Ref: 485947

Share:

Similar Properties

Helston, Cornwall, TR13

3 Bedroom Semi-Detached House | Guide Price £310,000

This modern three bedroom semi detached home is situated on a popular and sought after estate, offering contemporary liv...

Two bed flat close to the harbourside, St. Ives

2 Bedroom Flat | Guide Price £310,000

Located in the heart of St Ives, this spacious Grade II listed two-bedroom flat is just a short stroll from the vibrant...

Tucked away home close to the town, Helston

3 Bedroom Town House | Offers in excess of £300,000

Step inside this captivating Grade II listed Georgian home, tucked away in a peaceful mews just off elegant Cross Street...

Ground floor apartment in the village of Porthleven

2 Bedroom Flat | Guide Price £315,000

Nestled in the charming area of Methleigh Bottom, Porthleven, this stunning ground floor apartment presents an exception...

Spacious family home with parking and garden, Camborne

4 Bedroom Detached House | Guide Price £315,000

Nestled on the charming Mount Pleasant Road in Camborne, this delightful detached home offers a perfect blend of comfort...

Detached bungalow with great potential, Helston

3 Bedroom Detached Bungalow | Guide Price £315,000

Nestled in the sought-after location of Trenethick Close, this detached three-bedroom bungalow presents a fantastic oppo...

The Mather Partnership (Helston)

Helston, Cornwall, TR13 8AA

01326 565016

How much is your home worth?

Use our short form to request a valuation of your property.

Request a Valuation

Mortgage Calculator

Amount Borrowed: £
Total Amount Repayable: £
Total Monthly Payment: £
©2026 The Guild of Property Professionals. All rights reserved. Terms and Conditions | Privacy Policy | Cookie Policy | Complaints Policy | Members Login
The Guild of Property Professionals Trading Address: 121 Park Lane, London W1K 7AG. GPEA Limited. Registered in England & Wales.  Company No: 02819824.  Registered Office Address: 2 St. Stephen's Court, St. Stephen's Road, Bournemouth, Dorset, England, BH2 6LA.  VAT Registration No: 576 8795 61
Book a Property Valuation Update Cookies Preferences