Helston, Stone fronted detached home

Guide Price
£495,000

4 Bedroom Detached House for sale in Helston

1 4 2
  • STONE-FRONTED FOUR BEDROOM DETACHED HOME
  • SPACIOUS LOUNGE/DINER
  • KITCHEN/DINER WITH COSY GAS RAYBURN RANGER
  • GROUND FLOOR BEDROOM WITH EN SUITE
  • LOW-MAINTENANCE GARDEN WITH RESIN & DECKED AREA
  • LARGE WORKSHOP/BARN
  • CLOSE TO TOWN CENTRE
  • NO ONWARD CHAIN
  • COUNCIL TAX BAND- D, EPC- 42- E,
  • FREEHOLD TENURE

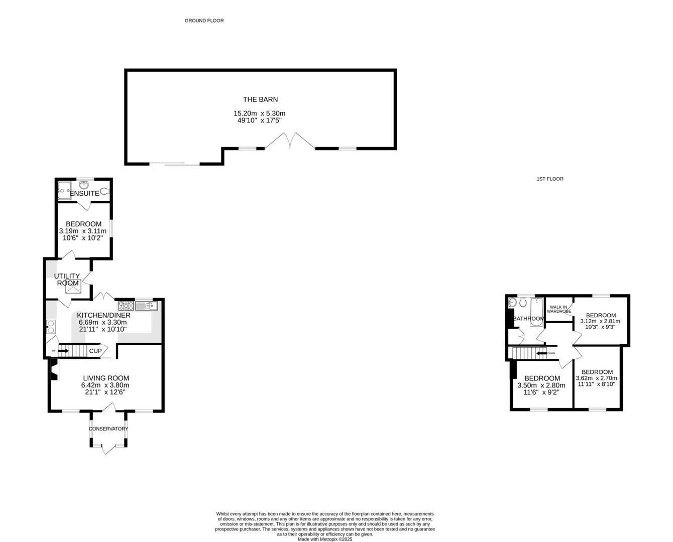
This attractive stone fronted four bedroom detached home offers spacious and flexible accommodation, ideally located within close proximity of the town centre and its many amenities. The generous lounge/diner provides a welcoming space for relaxing or entertaining, while the kitchen diner creates a bright and inviting setting to enjoy time with friends and family which has an added feature of a cosy gas Rayburn Ranger . A separate utility room adds practicality and leads through to a ground floor bedroom with an en suite shower room, perfect for a dependent relative, guests, or as an income opportunity. Upstairs, there are three well proportioned bedrooms and a family bathroom, providing comfortable accommodation for the whole family. Outside, the low maintenance garden has been finished with resin and a decked area, offering an attractive and easy to care for space. A very useful workshop/barn provides excellent storage and offers huge potential for hobbies, a studio, or even a home office.

Guide Price £495,000 -

Location - Helston and the surrounding nearby areas boast many Primary Schools with the nearest Secondary Schools being in Helston and Mullion. The town has a leisure centre with a swimming pool and large gym and many amenity areas including the boating lake and the beautiful National Trust Penrose Woods. The property is a short drive from the stunning Lizard Peninsula and within a 10 minute drive of the thriving harbour and coastline at Porthleven. The city of Truro and the towns of Falmouth, Penzance and Hayle are all within a 20 to 30 minute drive.

Helston is famed for it's historic Flora Day celebrations on 8 May when the town is bedecked with greenery, bluebells and gorse and throughout the day dancers weave in and out of shops, houses and gardens following the Helston Town Band playing the famous Floral Dance and ushering in the Summer, this property is perfectly situated for Flora Day being on the route for the early morning dance and just moments from the town centre.

Accommodation - Conservatory
Living Room
Kitchen/Diner
Utility Room
Bedroom One with Ensuite
Stairs to Landing
Bedroom Two with Walk in Wardrobe
Bedroom Three
Bedroom Four

Outside - Outside, there is an enclosed decked seating area.

Parking - Off road parking for several vehicles.

The Barn/Workshop/Garage - A large workshop with lots of potential which can be used in a number of different ways aswell as a pit perfect for car lovers.

Agents Note - Our client has informed us that the neighbouring property has pedestrian access over the driveway to their property.

Services - Mains water, drainage and electricity. Gas heating.

Council Tax Band- D -

What3words - ///solutions.suitably.serenade

Anti Money Laundering Regulations - Purchasers - It is a legal requirement that we receive verified ID from all buyers before a sale can be instructed. We will inform you of the process once your offer has been accepted.

Proof Of Finances - Before agreeing a sale, we will require proof of your financial ability to purchase. We will inform you of what we require prior to agreeing a sale.

Property Ref: 23459_34261023

Share:

Similar Properties

Godolphin Cross, Bungalow with Large Gardens

3 Bedroom Bungalow | Guide Price £495,000

This three bedroom detached bungalow is an exciting opportunity for renovators and those looking for a project. With an...

Home with coastal views, Porthleven

3 Bedroom Terraced House | Guide Price £495,000

Set in an elevated location, this well maintained property is ideal for those seeking a coastal lifestyle. The upside do...

Cottage With Large Garden, Breage

3 Bedroom Detached House | Guide Price £495,000

This delightful Grade II listed property offers a perfect blend of historic character and modern living. Featuring three...

Spacious detached bungalow with annexe, Leedstown

3 Bedroom Detached Bungalow | Guide Price £499,950

Situated on the outskirts of the popular village of Leedstown, this spacious detached bungalow offers versatile accommod...

Reawla, Detached bungalow with planning

3 Bedroom Bungalow | Guide Price £499,995

Detached three bedroom bungalow with large garden, barn & development potential - ReawlaSet in the heart of the sought-a...

Higher Condurrow, Bungalow set with approx 2.5 acres

2 Bedroom Detached Bungalow | Guide Price £500,000

A fantastic opportunity to acquire this truly stunning detached bungalow, set within beautiful gardens and enjoying impr...

The Mather Partnership (Helston)

Helston, Cornwall, TR13 8AA

01326 565016

How much is your home worth?

Use our short form to request a valuation of your property.

Request a Valuation

Mortgage Calculator

Amount Borrowed: £
Total Amount Repayable: £
Total Monthly Payment: £
©2026 The Guild of Property Professionals. All rights reserved. Terms and Conditions | Privacy Policy | Cookie Policy | Complaints Policy | Members Login
The Guild of Property Professionals Trading Address: 121 Park Lane, London W1K 7AG. GPEA Limited. Registered in England & Wales.  Company No: 02819824.  Registered Office Address: 2 St. Stephen's Court, St. Stephen's Road, Bournemouth, Dorset, England, BH2 6LA.  VAT Registration No: 576 8795 61
Book a Property Valuation Update Cookies Preferences