Cottage with no onward chain, Helston

Guide Price
£295,000
SSTC
This property listing is now SSTC

3 Bedroom Cottage for sale in Helston

2 3 1
  • GRADE II LISTED DOUBLE FRONTED COTTAGE
  • THREE BEDROOM TERRACED COTTAGE
  • TWO RECEPTION ROOMS
  • PRETTY SECLUDED GARDEN TO REAR
  • MUCH SOUGHT AFTER LOCATION CLOSE TO THE TOWN CENTRE
  • EPC- 62- D
  • COUNCIL TAX BAND- C
  • FREEHOLD TENURE
  • NO ONWARD CHAIN

This charming Grade II listed, double-fronted cottage offers generously proportioned three-bedroom accommodation, beautifully presented throughout to a high standard. The home features two inviting reception rooms and is rich in character, including a traditional Inglenook fireplace with a log burner in the sitting room. Both the kitchen and bathroom have been recently refitted, blending modern comfort with period charm.

To the rear, a private garden enjoys a sunny aspect and includes a practical workshop and storage space. Tucked away in the heart of the historic town, the property offers a peaceful setting while remaining within easy reach of the town centre, Parc Eglos Primary School, and St Michael's Church. A delightful home that's sure to appeal to a wide range of buyers.

Guide Price - £295,000 -

Location - Helston is famed for its historic Flora Day celebrations on 8th May when the town is bedecked with greenery, bluebells and gorse and throughout the day dancers weave in and out of shops, houses and gardens following the Helston Town Band playing the famous Floral Dance and ushering in the Summer, this property is part of the historic 'old town' and is situated on the route of the morning and evening dance and the Hal an Tow, perfectly placed to enjoy the festivities and just a few moments walk from the town centre. Originally constructed for workers of the Penrose Estate Penrose road comprises primarily of 'workers cottages' with two larger properties built for the foremen, one of which is this property. During the landscaping of the gardens the seller discovered a canon ball buried in the garden which is now on display at Helston Museum.
The modern town and surrounding area boast many Primary Schools. The nearest secondary schools are in Helston and Mullion. Helston also enjoys a leisure centre with a swimming pool and large gym and many amenity areas including the Coronation Boating Lake and the beautiful National Trust Penrose Estate offering a host of woodland walks. Helston is widely regarded as the gateway to the stunning Lizard Peninsula and is also within a 10 minute drive of the thriving harbour and coastline at Porthleven which offers an array of shops and good quality restaurants as well as world class surf. The city of Truro and the towns of Falmouth, Penzance and Hayle are all within a 20 to 30 minute drive.

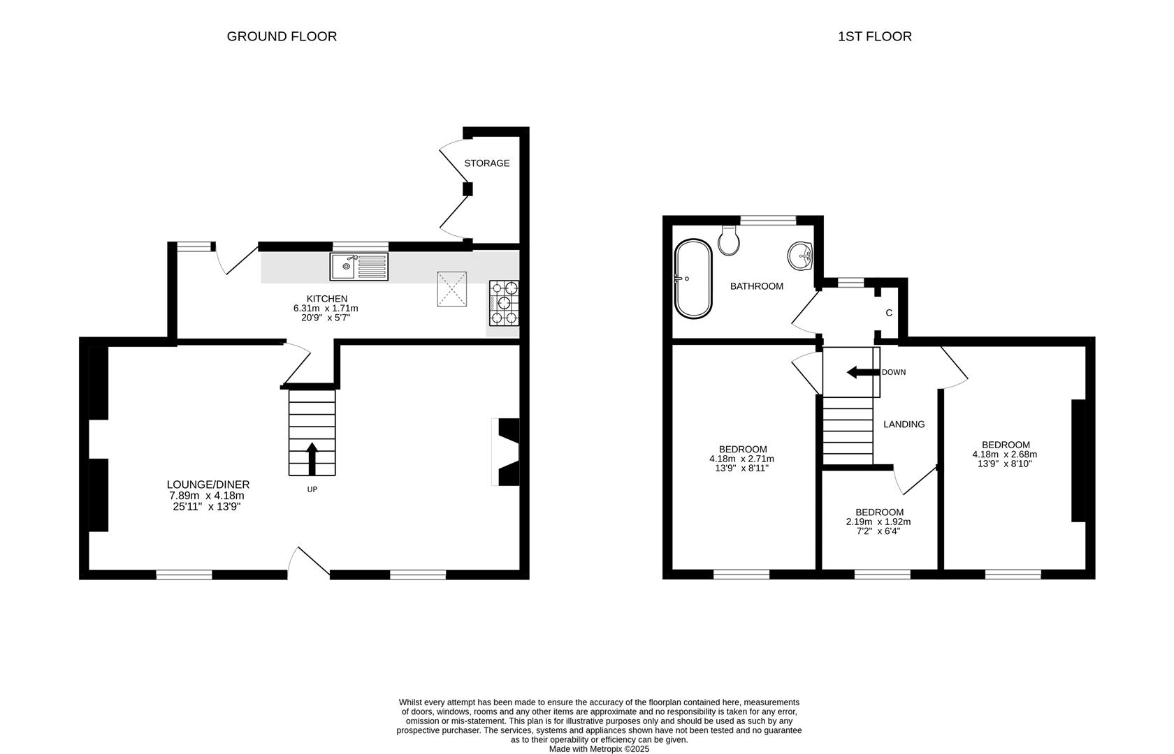
Accommodation - Lounge/Diner
Kitchen
Bedroom 1
Bedroom 2
Bedroom 3
Family Bathroom

Outside - To the front the property is approached via granite steps leading to the front door with a pretty cobbled seating area to either side. There are mature trees and shrubs and from the seating areas can be enjoyed attractive townscape and rural views and stunning sunsets. The main gardens lie to the rear of the property, they are a particular feature being secluded and enjoying a sunny aspect and in summer are a riot of colour. There is a pretty patio seating area with steps rising either side of this to the lawned gardens with established beds and borders. There is also a useful outbuilding which the present owner utilises as a workshop area in addition to a log store and garden store at the top of the garden.

Services - Mains gas, electricity, water and drainage.

Flying Freehold - Please be aware that the property is the subject of a flying freehold.

Council Tax Band- C -

What3words - ///following.stray.pursue

Anti Money Laundering Regulations - Purchasers - It is a legal requirement that we receive verified ID from all buyers before a sale can be instructed. We will inform you of the process once your offer has been accepted.

Proof Of Finances - Before agreeing a sale, we will require proof of your financial ability to purchase. We will inform you of what we require prior to agreeing a sale.

Property Ref: 23459_34168108

Share:

Similar Properties

Three bedroom home, Hayle

3 Bedroom Terraced House | Guide Price £295,000

Nestled in the picturesque town of Hayle, this delightful home offers a perfect blend of comfort and convenience. While...

White Cross, Cury, Helston

2 Bedroom Cottage | Guide Price £290,000

A fabulous opportunity to acquire this gorgeous traditional Cornish cottage. Having been well maintained by the present...

Wonderfully presented home, Praze

2 Bedroom Terraced House | Guide Price £290,000

Situated in the charming and picturesque village of Praze, this wonderfully presented terraced house house offers a deli...

Cottage in countryside setting, Lowertown

2 Bedroom Cottage | £297,700

Tucked away in a peaceful countryside setting, this charming two-bedroom semi-detached cottage offers a wonderful blend...

Countryside location, Sithney Green

2 Bedroom Barn Conversion | Guide Price £299,950

A stunning two bedroom character barn conversion, with timeless charm as well as modern elegance. Located in a peaceful...

Home with large garden, Breage

1 Bedroom Semi-Detached House | Guide Price £299,950

Located in a highly sought-after area, this charming one bedroom property, currently used as a successful holiday let, i...

The Mather Partnership (Helston)

Helston, Cornwall, TR13 8AA

01326 565016

How much is your home worth?

Use our short form to request a valuation of your property.

Request a Valuation

Mortgage Calculator

Amount Borrowed: £
Total Amount Repayable: £
Total Monthly Payment: £
©2025 The Guild of Property Professionals. All rights reserved. Terms and Conditions | Privacy Policy | Cookie Policy | Complaints Policy | Members Login
The Guild of Property Professionals Trading Address: 121 Park Lane, London W1K 7AG. GPEA Limited. Registered in England & Wales.  Company No: 02819824.  Registered Office Address: 2 St. Stephen's Court, St. Stephen's Road, Bournemouth, Dorset, England, BH2 6LA.  VAT Registration No: 576 8795 61
Book a Property Valuation Update Cookies Preferences