Hillcrest, Helston

Guide Price
£550,000

5 Bedroom Detached House for sale in Helston

1 5 2
  • DETACHED, FIVE BEDROOM DORMER BUNGALOW
  • POPULAR RESIDENTIAL AREA OF HILLCREST
  • CONVENIENTLY POSITIONED FOR SCHOOLS
  • EN-SUITE MASTER BEDROOM
  • PARKING AND GARAGE
  • GARDENS AND DECKING AREA
  • ARRANGED OVER THREE LEVELS
  • FREEHOLD
  • COUNCIL TAX E
  • EPC B-82

An opportunity to purchase a detached, five bedroom dormer bungalow in the Cornish market town of Helston.

Situated in the popular residential area of Hillcrest in the Cornish market town of Helston is this large, five bedroom dormer bungalow. The residence which benefits from air source heat pump central heating, double glazing and solar panels, boasts many refinements of modern living from a stylish fitted kitchen to an ensuite master bedroom. Views can be enjoyed over the town, across to open countryside in the distance and the property is particularly conveniently positioned for access to both Helston Community College and Parc Eglos primary school.

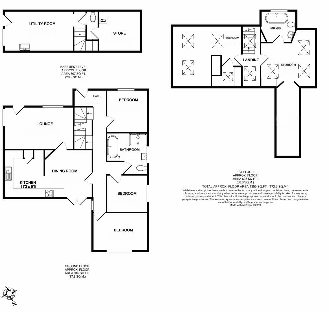
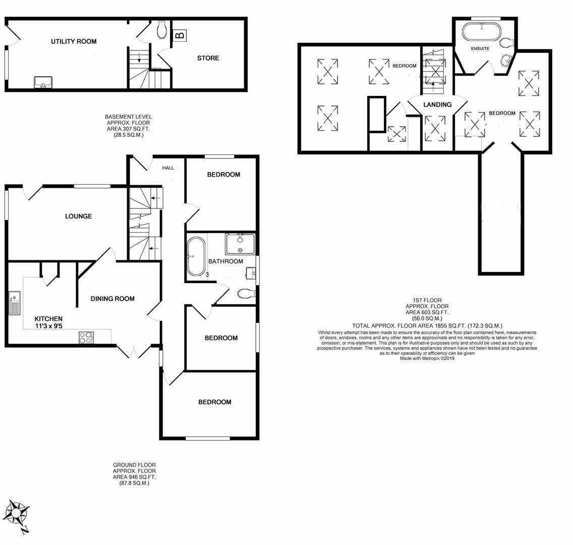
In brief, the accommodation which is arranged over three levels comprises of a hall, lounge, kitchen/diner and completing the ground floor a bathroom. On the first floor is a further two bedrooms the master of which benefits from an ensuite bathroom. On the lower ground floor is a utility room which is sometimes used as an occasional bedroom with independent access. There is also a W.C. and access to a good size store.

To the outside of the residence, the property is cradled by its gardens which are mainly laid to lawn and have well established plants and shrubs. There is driveway parking and a driveway leads to a garage. To the rear of the property is a pleasant decked area.

Helston itself is a bustling market town that stands as a gateway to The Lizard Peninsula which is designated as an area of outstanding natural beauty with many beautiful beaches, coves and cliff top walks. The town has amenities that include, national stores, supermarkets, doctor surgeries, churches and also many clubs and societies. There are a number of well regarded primary schools, a comprehensive school with sixth form college and a leisure centre with indoor heated pool.

The Accommodation Comprises (Dimensions Approx) -

Steps Up And Door To -

Hall - With doors to various rooms, stairs down to the lower ground floor and stairs up to the first floor.

Kitchen/Diner - 6.17m x 3.43m (irregular shaped room) (20'3 x 11'3 - With French doors opening onto the rear garden. KITCHEN AREA comprising of working top surfaces incorporating a sink unit with drainer, mixer tap over and cupboards and drawers under. There are built-in appliances incorporating an oven with hob and hood over and a dishwasher. There is also space for a washing machine in the dining area.

Lounge - 4.95m x 3.05m (16'3 x 10') - A dual aspect room with outlook to the front and side, enjoying views over the town and open countryside in the distance.

Bathroom - A wet room style bathroom comprising of a bath with mixer tap over, pedestal wash hand basin with mixer tap over and close coupled w.c. There is a shower area with tiled floor with both flexible and rain shower heads over, tiled walls and an obscured window to the side.

Bedroom Three - 3.89m x 2.74m (12'9" x 9') - With outlook to the rear garden.

Bedroom Four - 3.05m x 2.90m (10' x 9'6") - With outlook to the front and over the town.

Bedroom Five - 2.82m x 2.67m (9'3" x 8'9") - With outlook to the side.

Stairs And Landing - Stairs extend to the first floor landing with doors to two bedrooms.

Master Bedroom - 3.81m x 4.11m (narrowing to 3.20m) (12'6 x 13'6 (n - Having skylights and having access to good size eaves storage areas. Some areas of the room have limited headroom and there is a door to

En Suite - Comprising of a free standing bath, close coupled w.c. and a pedestal a wash hand basin. There is access to eaves storage and a port hole style window with outlook over the town.

Bedroom Two - 4.88m x 4.34m (narrowing to 2.67m) (16' x 14'3" (n - Having skylights and door to a built-in cupboard which we are advised has plumbing for an ensuite if someone wishes to put that in in the future.

Lower Ground Floor -

Lower Hall - With door to the W.C. and door to

Utility Room - 4.88m x 2.90m (16' x 9'6") - This room is currently utilised as an occasional bedroom and has its own independent access to the outside. Viewers should be advised that the ceiling height in this room is 5'9".

W.C. - Comprising of a close couple W.C., wall mounted wash basin with mixer tap over and access to a large storage room.

Outside - The property is cradled by its gardens with large lawned areas and well established plants and shrubs. There is driveway parking and the driveway leads to a garage. To the rear of the property is a pleasant decked area which would seem ideal for alfresco dining and entertaining.

Directions - What three words - palaces.grasp. wheels.

Services - Mains water, electricity and drainage.

Agents Note - There is extant planning permission for a single storey extension to the rear of the property. Details of this can be viewing on the online planning register under reference number PA17/01546.

Mobile And Broadband - To check the broadband coverage for this property please visit -
https://www.openreach.com/fibre-broadband
To check the mobile phone coverage please visit -
https://checker.ofcom.org.uk/

Council Tax - Council Tax Band E.

Anti-Money Laundering - We are required by law to ask all purchasers for verified ID prior to instructing a sale

Proof Of Finance - Purchasers - Prior to agreeing a sale, we will require proof of financial ability to purchase which will include an agreement in principle for a mortgage and/or proof of cash funds.

Viewing - To view this property, or any other property we are offering for sale, please call the number on the reverse of these details.

Date Details Prepared. - 21st October 2025.

Property Ref: 453323_34261310

Share:

Similar Properties

Angrouse Lane, Mullion

3 Bedroom Detached Bungalow | Guide Price £550,000

Meadowbank is a striking, individual modern bungalow of generous proportions, which is favourably located along the high...

Laflouder Fields, Mullion

4 Bedroom Detached Bungalow | Guide Price £550,000

An opportunity to purchase a detached, four bedroom dormer bungalow in the Cornish village of Mullion.Situated in the po...

Releath, Camborne

4 Bedroom Country House | Guide Price £550,000

An opportunity to purchase a detached, four/five bedroom character property in a delightful rural setting with meadow, g...

Parc Halligey, Coverack

4 Bedroom Detached House | Guide Price £575,000

** PARC HALLIGEY FESTIVE OPEN HOUSE** JOIN US ON SATURDAY 29 NOVEMBER, 10AM - 12 NOON FOR A WARM AND WELCOMING FESTIVE O...

Mawgan, Helston

4 Bedroom Detached House | Guide Price £575,000

A modern four bedroom detached property set in lovely grounds and gardens in the highly regarded village of Mawgan-in-Me...

Burras, Wendron, Helston

4 Bedroom Detached House | Guide Price £595,000

A truly delightful four bedroom detached rural barn conversion standing within beautifully landscaped gardens and ground...

Christophers Estate Agents Porthleven (Porthleven)

Fore St, Porthleven, Cornwall, TR13 9HJ

01326 573737

How much is your home worth?

Use our short form to request a valuation of your property.

Request a Valuation

Mortgage Calculator

Amount Borrowed: £
Total Amount Repayable: £
Total Monthly Payment: £
©2025 The Guild of Property Professionals. All rights reserved. Terms and Conditions | Privacy Policy | Cookie Policy | Complaints Policy | Members Login
The Guild of Property Professionals Trading Address: 121 Park Lane, London W1K 7AG. GPEA Limited. Registered in England & Wales.  Company No: 02819824.  Registered Office Address: 2 St. Stephen's Court, St. Stephen's Road, Bournemouth, Dorset, England, BH2 6LA.  VAT Registration No: 576 8795 61
Book a Property Valuation Update Cookies Preferences