London Road, Henfield

Guide Price
£175,000

2 Bedroom Detached House for sale in Henfield

1 2 1
  • BUILDING PLOT
  • PLANNING REF DC/21/2711
  • PERMISSION GRANTED

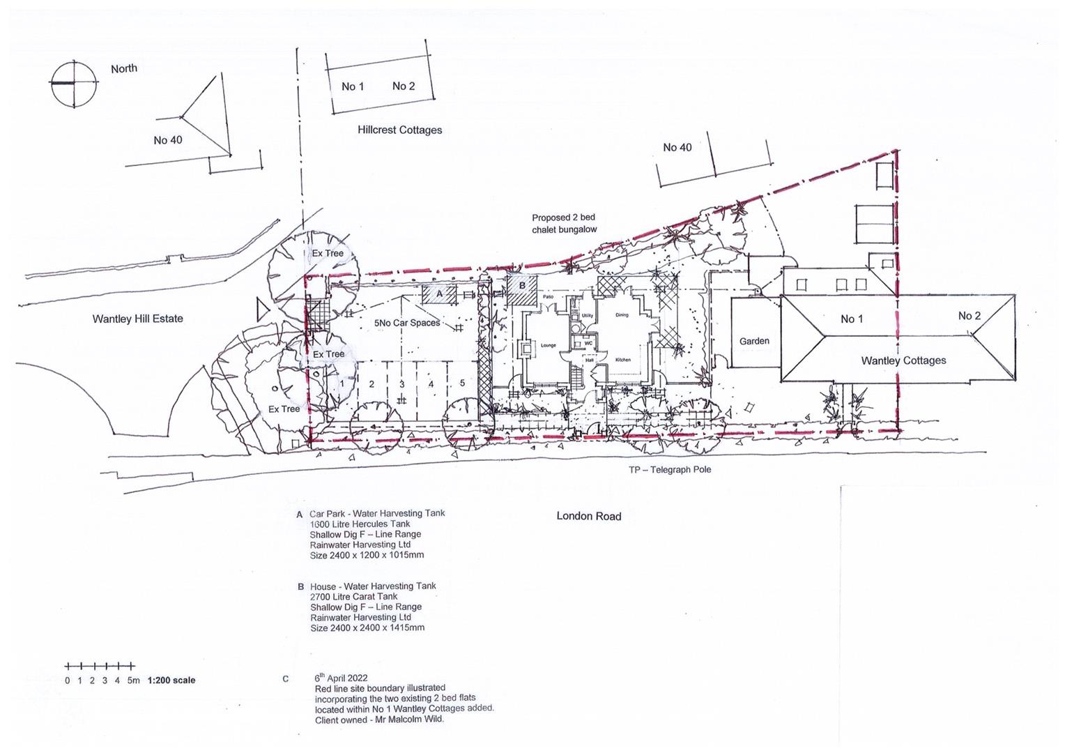
A UNIQUE OPPORTUNITY to Acquire a BUILDING PLOT WITH PLANNING PERMISSION to Build a TWO BEDROOM DETACHED DWELLING, on the North Side of Henfield Village Close to Local Amenities and Country Walks.

Situation - Henfield village offers local amenities including shopping facilities, village hall, library, health centre, churches, primary school and sports centre. A bus service passes through the village to the town centres of Horsham and Brighton offering more comprehensive shopping and leisure facilities. The nearest mainline stations are at Hassocks, Burgess Hill, Horsham, Haywards Heath and Shoreham-by-Sea. Crawley, Gatwick Airport and London are accessible via the A23/M23.

Description - Planning permission has been granted by Horsham District Council (Planning Ref DC/21/2711) for a two bed detached dwelling. The accommodation is arranged over two floors comprising, entrance, entrance hall, cloakroom, sitting room with chimney, open plan kitchen/dining room and utility room. First floor two bedrooms and family bathroom. There is also a possibility of creating a third bedroom subject to planning permission.

Outside there are two allocated parking spaces and front, side and rear garden.

The property has to have installed two water harvesting tanks and service connections which would be liable to be installed by the incoming purchaser.

Agents Note - All viewings will be by appointment through Stevens Estate Agents.

Agents Note - The CIL payment to Horsham District Council will be paid by the purchaser on the start of development.

Property Misdescription Act 1991 - Although every effort has been taken in the production of these particulars, prospective purchasers should note:
1. All measurements are approximate. 2. Services to the property, appliances and fittings included in the sale are believed to be in working order (although they may have not been checked). 3. Prospective purchasers are advised to arrange their own tests and/or survey before proceeding with the purchase. 4. The agent has not checked the deeds to verify the boundaries. Intending purchasers should satisfy themselves via their solicitor as to the actual boundaries of the property.

Property Ref: 8633_32379126

Share:

Similar Properties

Henfield Road, Cowfold

1 Bedroom Retirement Property | Guide Price £105,000

A Well Presented ONE BEDROOM SECOND FLOOR, AGE RESTRICTED APARTMENT Situated in the Heart of Cowfold Village Close to LO...

Brighton Road, Shermanbury

4 Bedroom Barn Conversion | £2,500pcm

Stevens Lettings & Management are delighted to offer a truly exclusive opportunity to rent this superb converted detache...

Henfield Road, Small Dole, Bn5

3 Bedroom Detached House | £1,995pcm

A Bright & Spacious Three Bedroom Detached Property in The Heart of Small Dole Village. The property benefits from a pri...

Cagefoot Lane, Henfield

1 Bedroom Retirement Property | Guide Price £190,000

*GUIDE PRICE £190,000 - £200,000* A Well Presented ONE BEDROOM GROUND FLOOR RETIREMENT FLAT in Rayner Court in the BEAUT...

Weavers Lane, Henfield

1 Bedroom Flat | Guide Price £199,950

A WELL PRESENTED FIRST FLOOR ONE BEDROOM APARTMENT in the Heart of Henfield Village. The Property Benefits from an ALLOC...

Springhills, Barrow Hill, Henfield

1 Bedroom Retirement Property | Guide Price £265,000

A ONE BEDROOM GROUND FLOOR APARTMENT Situated in a Small Community on the South Side of Henfield Village Close to LOCAL...

Stevens Estates (Henfield) (Henfield)

1 Bishops Croft, High St, Henfield, West Sussex, BN5 9DA

01273 492141

How much is your home worth?

Use our short form to request a valuation of your property.

Request a Valuation

Mortgage Calculator

Amount Borrowed: £
Total Amount Repayable: £
Total Monthly Payment: £
©2025 The Guild of Property Professionals. All rights reserved. Terms and Conditions | Privacy Policy | Cookie Policy | Complaints Policy | Members Login
The Guild of Property Professionals Trading Address: 121 Park Lane, London W1K 7AG. GPEA Limited. Registered in England & Wales.  Company No: 02819824.  Registered Office Address: 2 St. Stephen's Court, St. Stephen's Road, Bournemouth, Dorset, England, BH2 6LA.  VAT Registration No: 576 8795 61
Book a Property Valuation Update Cookies Preferences