Olchon House Farm, Longtown

Guide Price
£425,000

8 Bedroom Barn for sale in Hereford

8 4
  • P251501/PA4
  • To give two detached four-bed homes
  • Tranquil rural setting
  • Village with amenities nearby
  • Outstanding mountain views
  • Circa 2 acres

Barn for conversion

This unconverted barn carries planning permission for conversion into two detached properties, each of which would boast four bedrooms. The two-acre plot is tucked away in the Olchon Valley, Herefordshire's best-kept secret. This scenic and diverse valley is enveloped by the Black Mountains of South Wales and therefore boasts stunning views and rich wildlife.

Location
Longtown, the nearest village, is a few minutes' drive from the barn. It is appointed with a family-run country inn, an award-winning independent village shop and post office, a village hall, an art studio, and a primary school that is graded 'Good' by Ofsted. There is also a 12th-century castle, which gives the village a striking skyline. The Offa's Dyke footpath - a walking trail that spans 177 miles along the English-Welsh border and passes through diverse landscapes - runs close to Longtown and therefore the hike is easily accessible.
A little further afield - around six miles away - there is another idyllic village; Ewyas Harold, which is contiguous with the neighbouring village of Pontrilas, and this carries even more amenities, including a post office, a GP surgery, a dentist's surgery, a veterinary's surgery, a reputable primary school, a fish and chip shop, a butcher's shop, several public houses, and various places of worship.
More comprehensive facilities can be found in the cathedral city of Hereford, or the market towns of Ross-on-Wye, Abergavenny, and Monmouth.

The proposal at a glance
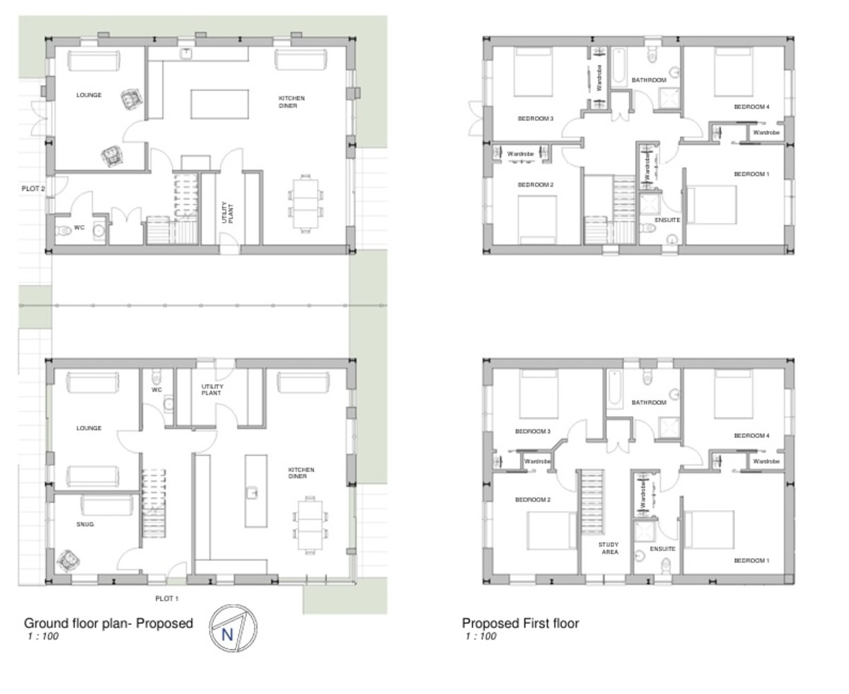
Herefordshire Council granted planning permission on July 7, 2025 (reference P251501/PA4). The existing building - a five-bay steel-frame barn with a pitched roof - has permission to be converted into two properties. The central bay would be removed, therefore creating two detached homes.
Once completed, each home would be over 200 square metres in size, and the total plot size is circa two acres.
The completed properties would be set over two storeys. Both would have four bedrooms, and each master bedroom would also have an en-suite shower room. There would also be an open-plan dining kitchen, two reception rooms, a family bathroom, a cloakroom, and a utility/plant room.
In terms of parking arrangements, there is a concrete hardstanding, which would give a total of six parking bays.
Owing to the valley location, the grounds gradually slope downhill to the Olchon Brook, a tributary of the Monnow, offering a phenomenally beautiful landscape to explore.

General
Services
In the location, mains electricity and water are available. There is also a telephone line in the vicinity. However, there is no mains gas supply or public drainage; therefore, a septic tank or domestic treatment plant will be required, and the heating source is likely to be via an air source heat pump or LPG.

Directions
Beginning at Longtown Village Hall, turn left out of the car park and pass the castle and the primary school. Keep on following this road for around three-quarters of a mile, then turn left towards Brass Knoll. Continue along this road, and when you reach the sign for Lower House Farm, instead take the downhill left-hand fork in the road. Continue for around 450 metres, then take the right-hand turning. Continue on this lane for around just shy of half a mile, and the barn will be on the right-hand side.
What3Words: amended.buns.proclaims

Distances
Longtown 1.5 miles • Abergavenny 12 miles • 
Hay on Wye 12 miles • Hereford 20 miles • Monmouth 22 miles • Ross-on-Wye 27 miles •
Agent's note: The acreage would need to be verified by your solicitor.

 

Property Ref: 101453002763

Share:

Similar Properties

Ross-on-Wye, Edge of countryside location

4 Bedroom Detached House | Offers Over £425,000

A beautifully bright detached home with views over Chase Wood, an ancient Iron Age hillfort, on the edge of a charming m...

Sawpitts Lane, Symonds Yat

3 Bedroom Cottage | Offers Over £425,000

Enchanting woodland envelops this charming stone cottage. The three-bedroom home is set within the heart of the Wye Vall...

Herberts Hill, Llangaron

3 Bedroom Semi-Detached House | Offers Over £425,000

Far-reaching rural views surround this deceptively spacious three-bedroom semi-detached home. Three elegant reception ro...

Llangrove

4 Bedroom Link Detached House | Guide Price £435,000

Nestled within a welcoming village, this versatile four-bedroom home is laid out over two storeys. The chain-free, link-...

Sellack, Detached House, Country Setting

3 Bedroom Detached House | Offers Over £450,000

Views of uninterrupted countryside stretch in every direction from this charming detached Edwardian country home, where...

Little Birch Road, Hereford

3 Bedroom Cottage | Guide Price £450,000

Far-reaching views over the rolling south Herefordshire countryside are gloriously displayed from this three-bedroom cot...

Hamilton Stiller (Ross on Wye)

Ross on Wye, Herefordshire, HR9 7DY

01989 563 525

How much is your home worth?

Use our short form to request a valuation of your property.

Request a Valuation

Mortgage Calculator

Amount Borrowed: £
Total Amount Repayable: £
Total Monthly Payment: £
©2026 The Guild of Property Professionals. All rights reserved. Terms and Conditions | Privacy Policy | Cookie Policy | Complaints Policy | Members Login
The Guild of Property Professionals Trading Address: 121 Park Lane, London W1K 7AG. GPEA Limited. Registered in England & Wales.  Company No: 02819824.  Registered Office Address: 2 St. Stephen's Court, St. Stephen's Road, Bournemouth, Dorset, England, BH2 6LA.  VAT Registration No: 576 8795 61
Book a Property Valuation Update Cookies Preferences