The Orchard, Clyro, Hereford, HR3

£229,950
SSTC
This property listing is now SSTC

2 Bedroom End of Terrace House for sale in Hereford

1 2 1
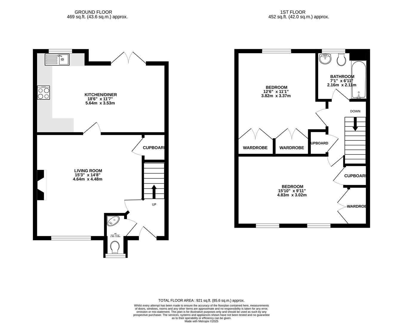
  • two double bedrooms both with built in wardrobes
  • living room
  • kitchen/diner with patio doors opening onto the garden
  • allocated parking space
  • low maintenance garden with rear access
  • bathroom
  • no chain
  • ideal starter home or investment
  • popular village location

This property is an ideal first time buy or investment property with no onward chain. On the ground floor there is an entrance hall, convenient cloakroom, living room with wood burning stove and kitchen/diner which has a tiled floor, base and wall cupboards, built in oven, hob, fridge/freezer and plumbing for a washing machine and dishwasher. Patio doors open onto the garden. Upstairs there are two generous bedrooms both of which benefit from built in wardrobes. Completing the first floor is the bathroom. Outside the rear garden is low maintenance and paved with rear access. The property also benefits from a parking space.

The property is situated in the popular village of Clyro which has a service station/general store, primary school and a church. Hay-on-Wye, is approx. 3 miles away which is a delightful border market town, famous for its annual Literary Festival. The town offers an excellent range of services and facilities including dentists, doctors' surgery, cinema, chemist, library, post office, a wealth of second-hand book and antique shops, a wide range of public houses, restaurants and cafes and a primary school. Hay-on-Wye is situated within the most beautiful countryside, being in the Brecon Beacons National Park, which offers a wide range of leisure and recreational activities. The nearest motorway links are found at Newport for the M4 or Ross-on-Wye for the M50 motorways.

Council Tax: We have been informed that this property has been placed under council tax band ‘D’.

Services: Mains electricity, water and drainage. Oil fired central heating. Please note we have not tested the appliances, central heating or services.

Please Note: There is a fee of £10.00pa payable to the management company.

Important Information

  • This is a Freehold property.

Property Ref: 28704369

Share:

Similar Properties

Old Road, Bwlch, Brecon, LD3

3 Bedroom Cottage | £229,500

A charming, three bed, terraced cottage, nestled in the heart of a popular village and benefitting from a great garage/w...

John Street, Brecon, LD3

3 Bedroom Terraced House | £225,000

A three bed, mid-terrace house situated in a popular residential area within easy access of the town centre. An ideal fa...

Honddu Court, Brecon, LD3

3 Bedroom Terraced House | £225,000

A modern, three bed town house within walking distance of the town centre. Ready to move straight in to it has an easily...

Coedwaungar, Sennybridge, Brecon, LD3

3 Bedroom Semi-Detached House | £230,000

**NO CHAIN** A great family home in a popular village location, ticking all the boxes!

Honddu Court, Brecon, LD3

3 Bedroom Terraced House | £230,000

Situated in a great spot, within easy access of the town centre is this attractive, three bed family home benefitting fr...

Lion Yard, Brecon, LD3

Office | £235,000

A well maintained commercial property currently split into two ground floor offices/shop with office space on the first...

James Dean The Estate Agents Brecon (Brecon)

Brecon, Powys, LD3 9AD

01874 624 757

How much is your home worth?

Use our short form to request a valuation of your property.

Request a Valuation

Mortgage Calculator

Amount Borrowed: £
Total Amount Repayable: £
Total Monthly Payment: £
©2026 The Guild of Property Professionals. All rights reserved. Terms and Conditions | Privacy Policy | Cookie Policy | Complaints Policy | Members Login
The Guild of Property Professionals Trading Address: 121 Park Lane, London W1K 7AG. GPEA Limited. Registered in England & Wales.  Company No: 02819824.  Registered Office Address: 2 St. Stephen's Court, St. Stephen's Road, Bournemouth, Dorset, England, BH2 6LA.  VAT Registration No: 576 8795 61
Book a Property Valuation Update Cookies Preferences