Mortimer Street, Herne Bay

£139,995
Under Offer
This property listing is now Under Offer

2 Bedroom Apartment for sale in Herne Bay

2 1
  • **Watch Our Narrated Video Walkthrough Tour**
  • First Floor Flat Moments From The Seafront
  • Two Good Size Bedrooms
  • Large Bright & Airy Lounge
  • No Forward Chain & Vacant Possession
  • Perfect First Time Buy Or Investment
  • Modern Kitchen & Bathroom
  • Gas Central Heating & Double Glazing
  • Central Herne Bay Location
  • Internal Viewing Is Highly Advised

**WATCH OUR NARRATED VIDEO WALK-THROUGH TOUR**
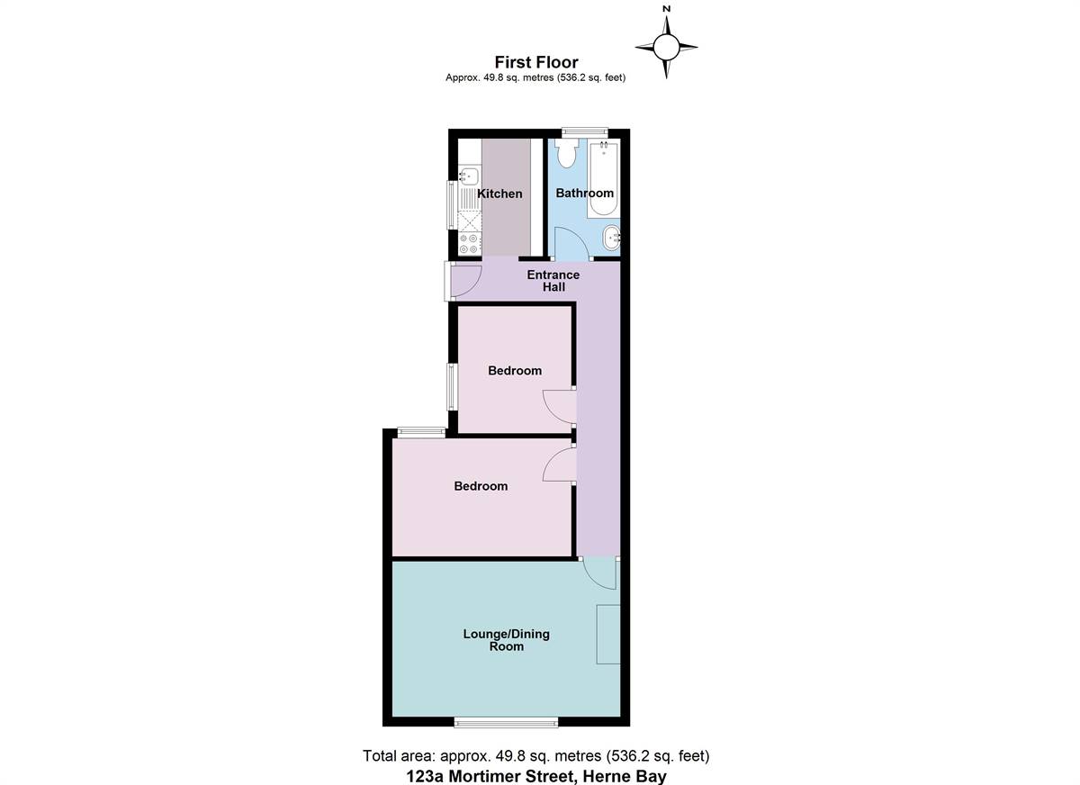
TWO DOUBLE BEDROOMS...NO FORWARD CHAIN... Kent Estate Agencies are pleased to present this excellent first time buy or buy to let investment in Mortimer Street, Herne Bay. This property is located on the first floor and offers two double bedrooms, bathroom, lounge and kitchen. The flat is well presented throughout and is offered with no forward chain and vacant possession, offering an easy option for those looking for a "turn key" opportunity.
The property will benefit from a new and updated lease for which further information can be found on our property details.
Call the exclusive sole agents Kent estate Agencies today to book your viewing.

Location:
Mortimer Street is a prime central location within Herne Bay town centre. The seafront with stunning walks along 'The Downs' is just a short walk away with popular cycle paths leading as far as Birchington in one direction and Whitstable in the other. Herne Bay town centre is just moments away where you will find a good range shopping, restaurants leisure amenities including rowing, sailing and yacht clubs along with a swimming pool and cinema. The harbour town of Whitstable is only 5.5 miles distant which enjoys a variety of shopping, educational and leisure amenities including sailing, water sports and bird watching, as well as the seafood restaurants for which it has become renowned. The Cathedral city of Canterbury is 8.5 miles away with its theatre and cultural amenities, as well as benefiting from excellent public and state schools. The City also boasts the facilities of a major shopping centre enjoying a range of mainstream retail outlets as well as many individual shops. Excellent transport links are nearby with Herne Bay mainline train station being 1.5 miles away providing direct links to London Victoria in approximately 88 minutes and London St Pancras in approximately 86 minutes. Easy access to the A299 is less than a mile away providing road links to London via the M2.

Approved Property Details   


Lounge   15' 8 x 10' 10 (4.78m x 3.31m)
Window to front. Radiator. TV point. Power points.

Kitchen   7' 11 x 5' 8 (2.42m x 1.73m)
The kitchen is planned with a matching range of wall and base units arranged on two walls with inset stainless steel sink unit. Work surfaces. Partially tiled walls. Electric cooker points. Plumbing for washing machine. Wall mounted combination gas boiler supplying hot water and central heating. Window to front. Power points. Lino flooring.

Bedroom One   12' 4 x 8' 1 (3.76m x 2.47m)
Window to rear. Radiator. Power points.

Bedroom Two   8' 7 x 7' 9 (2.62m x 2.37m)
Window to rear. Radiator. Power points.

Bathroom   
Suite in white comprising panelled bath with shower unit over and rail to side, pedestal wash hand basin, and low level WC. Radiator. Partially tiled walls. Frosted window to side. Lino flooring. Extractor fan.

Main Services
The following mains services are connected to the property electricity, water, gas, drainage and a telephone line. All services will be subject to the appropriate companies transfer conditions.

Heating
Central heating is provided by a gas fired boiler situated in the kitchen and hot water radiators as indicated in these particulars.

Windows
The windows are generally of UPVC double glazed sealed units.

Tenure
The property is to be sold Leasehold with vacant possession.The current lease runs for 99 years from 24 June 1992. The vendor has made us aware that they are currently extending the lease and details will follow shortly.

Council Tax
We are advised by the Valuation Office that the property is currently within Council Tax Band A. The amount payable under tax band A for the year 2025/2026 is £1,535.50.

Viewing
Please ring us to make an appointment. We are open from 9am to 6pm Monday to Friday, 9am to 5pm Saturdays and by appointment only on Sundays.

Agent Notes
Kent Estate Agencies gives notice for themselves and for the sellers of the property, whose agents they are that any floor plans, plans or mapping and measurements are approximate quoted in metric with imperial equivalents. All are for general guidance only and whilst every attempt has been made to ensure accuracy, they must not be relied on. The measurements are provided in accordance with the R.I.C.S. Code of Measuring Practice 6th edition.
We have not carried out a structural survey and the services, appliances and specific fittings have not been tested and therefore no guarantee can be given that they are in working order. Photographs are reproduced for general information and it must not be inferred that any item shown is included with the property. Prospective purchasers or lessees should seek their own professional advice. Kent Estate Agencies retain the copyright in all advertising material used to market this property.
No person in the employment of Kent Estate Agencies has any authority to make any representation or warranty whatever in relation to this property. Purchase prices, rents or other prices quoted are correct at the date of publication and, unless otherwise stated, exclusive of VAT.
For a free valuation of your property contact the number on this brochure. Printed ???..2024

Important Information

  • This is a Leasehold property.

Property Ref: 57383_EE6187

Share:

Similar Properties

Douglas Road, Herne Bay

2 Bedroom Apartment | £135,000

NO CHAIN... A great blank canvas for those looking for a project with this spacious first floor flat. Although in need o...

Kings Road, Herne Bay

1 Bedroom Retirement Property | £115,000

**WATCH OUR NARRATED VIDEO WALK-THROUGH TOUR**This brilliant ground floor one bedroom independent living apartment is si...

58 Mickleburgh Hill, Herne Bay

1 Bedroom Apartment | £145,000

**WATCH OUR NARRATED VIDEO WALKTHROUGH TOUR**NO FORWARD CHAIN... MODERNISED THROUGHOUT...Kent Estate Agencies present th...

Richmond Street, Herne Bay

1 Bedroom Retirement Property | £149,995

NO FORWARD CHAIN... BALCONY APARTMENT OVERLOOKING THE PARK... Situated within the highly desirable 'Richmond Court' deve...

Carlton Hill, Herne Bay

1 Bedroom Apartment | Offers in excess of £150,000

NO CHAIN - A purpose built one bedroom first floor flat with its own parking, south-west facing garden and share of the...

Kent Estate Agencies (Herne Bay)

99 Mortimer Street, Herne Bay, Kent, CT6 5ER

01227 213499

How much is your home worth?

Use our short form to request a valuation of your property.

Request a Valuation

Mortgage Calculator

Amount Borrowed: £
Total Amount Repayable: £
Total Monthly Payment: £
©2025 The Guild of Property Professionals. All rights reserved. Terms and Conditions | Privacy Policy | Cookie Policy | Complaints Policy | Members Login
The Guild of Property Professionals Trading Address: 121 Park Lane, London W1K 7AG. GPEA Limited. Registered in England & Wales.  Company No: 02819824.  Registered Office Address: 2 St. Stephen's Court, St. Stephen's Road, Bournemouth, Dorset, England, BH2 6LA.  VAT Registration No: 576 8795 61
Book a Property Valuation Update Cookies Preferences