Newlands Avenue, Radlett, Hertfordshire, WD7

£4,000,000

6 Bedroom Detached House for sale in Hertfordshire

4 6 2

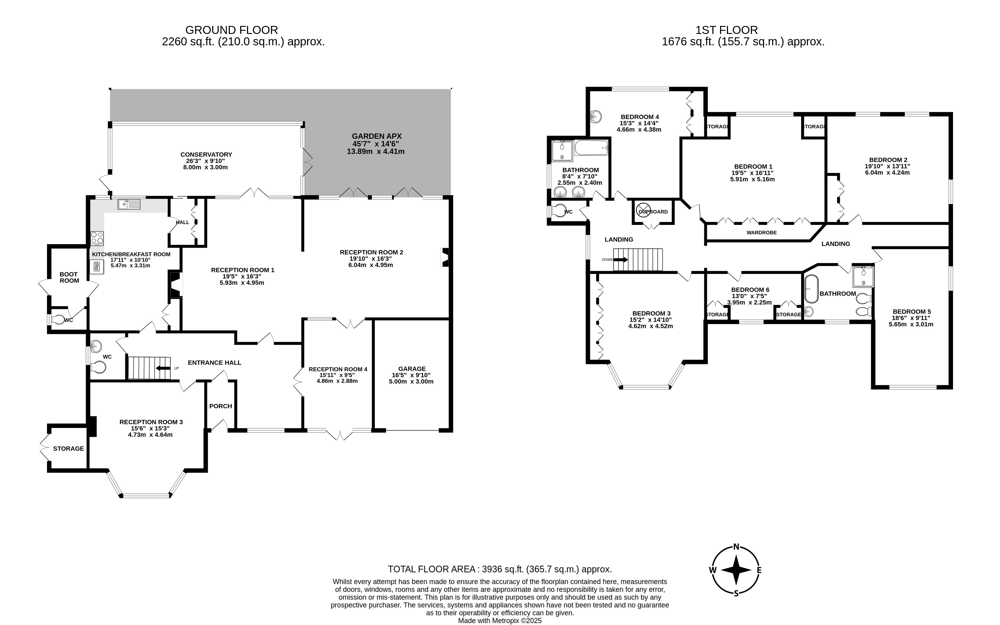
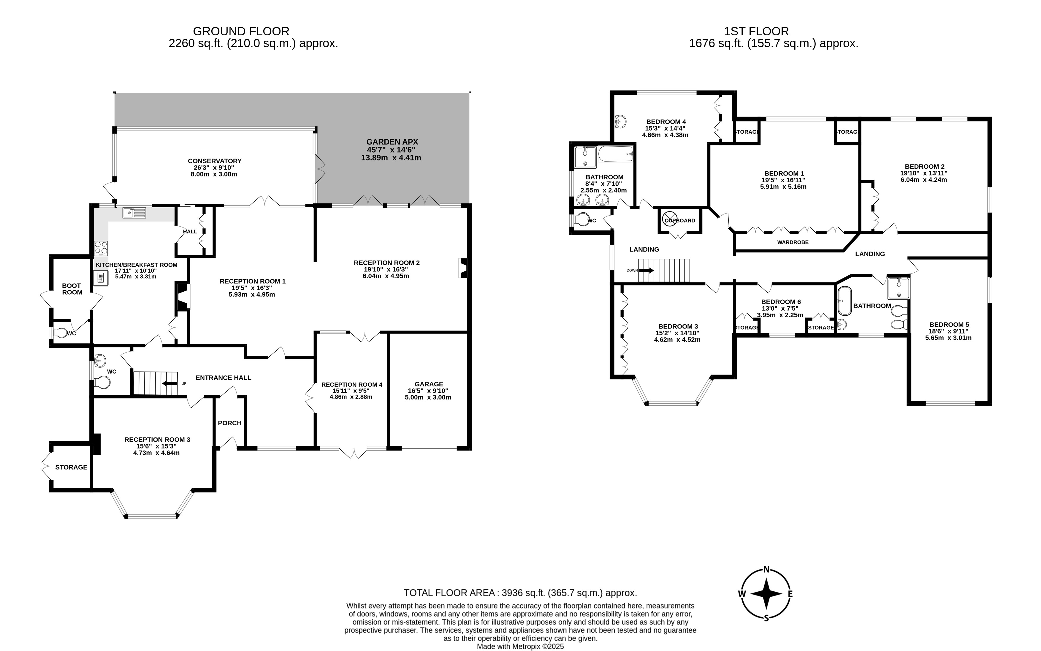
Situated on the highly desirable Newlands Avenue in Radlett, this impressive detached family home offers substantial accommodation of just under 4,000 sq.ft. arranged over two floors. The property is set within a wonderful plot measuring approximately 0.43 acres, with generous frontage and a depth extending to around 174 ft, providing both privacy and scope for further enhancement if desired.The ground floor is particularly versatile, with four reception rooms offering excellent space for formal entertaining, family living and home working. A spacious kitchen/breakfast room, adjoining boot room and conservatory create a natural flow for day-to-day living, while the welcoming entrance hall and two guest cloakrooms add to the practicality of the layout. The first floor provides six bedrooms, including an impressive principal suite, complemented by two well-appointed family bathrooms and extensive storage throughout.The gardens are a true feature of this home, offering mature boundaries, sweeping lawn and excellent proportions, making it ideal for families who enjoy outdoor living. With a plot extending to over 0.4 acres, the property combines generous internal accommodation with equally impressive outside space.Located on one of Radlett’s most sought-after residential roads, Newlands Avenue, the property benefits from a tranquil setting while being within easy reach of Radlett’s village centre, excellent schools and mainline station with direct links to central London. This is a rare opportunity to acquire a home of such scale and potential on a substantial plot in a prime Radlett location.

Please note, these CGI visuals are taken from previously approved planning permission for the property and are provided to illustrate the type of development that could be built on the plot

Important Information

  • This is a Freehold property.

Property Ref: 603603_LUM250269

Share:

Similar Properties

Viburnum Gate, Radlett, Hertfordshire, WD7

6 Bedroom Detached House | £3,250,000

Nestled within the prestigious Viburnum Gate, an exclusive gated development of just four luxury homes, this exceptional...

Aldenham Avenue, Radlett, Hertfordshire, WD7

5 Bedroom Detached House | Offers in region of £3,000,000

A remarkable detached family residence featuring five double bedrooms and five bathrooms, conveniently situated within w...

Newlands Avenue, Radlett, Hertfordshire, WD7

5 Bedroom Detached House | Guide Price £3,000,000

Nestled in one of Radlett's most prestigious streets, this exceptional detached residence offers an ideal setting for fa...

The Leys, Loom Lane, Radlett, Hertfordshire, WD7

7 Bedroom Detached House | £5,500,000

This impressive detached family home is situated on a spacious plot of nearly 1 acre. It offers ancillary accommodation...

Newlands Avenue, Radlett, Hertfordshire, WD7

7 Bedroom Detached House | Guide Price £7,000,000

Situated behind private gates on one of Radlett's most coveted roads, this remarkable family home is a true masterpiece...

Theobald Street, Radlett, Hertfordshire, WD7

6 Bedroom Detached House | Guide Price £9,950,000

***Chain Free***   Nestled in the desirable village of Radlett, this exceptional home spans just under 8,000 sq. ft. and...

Lumley Estates (Radlett)

72 Watling Street, Radlett, Hertfordshire, WD7 7NP

01923 853366

How much is your home worth?

Use our short form to request a valuation of your property.

Request a Valuation

Mortgage Calculator

Amount Borrowed: £
Total Amount Repayable: £
Total Monthly Payment: £
©2026 The Guild of Property Professionals. All rights reserved. Terms and Conditions | Privacy Policy | Cookie Policy | Complaints Policy | Members Login
The Guild of Property Professionals Trading Address: 121 Park Lane, London W1K 7AG. GPEA Limited. Registered in England & Wales.  Company No: 02819824.  Registered Office Address: 2 St. Stephen's Court, St. Stephen's Road, Bournemouth, Dorset, England, BH2 6LA.  VAT Registration No: 576 8795 61
Book a Property Valuation Update Cookies Preferences