Park Road, Radlett, Hertfordshire, WD7

£1,000,000

3 Bedroom Link Detached House for sale in Hertfordshire

3 3 1

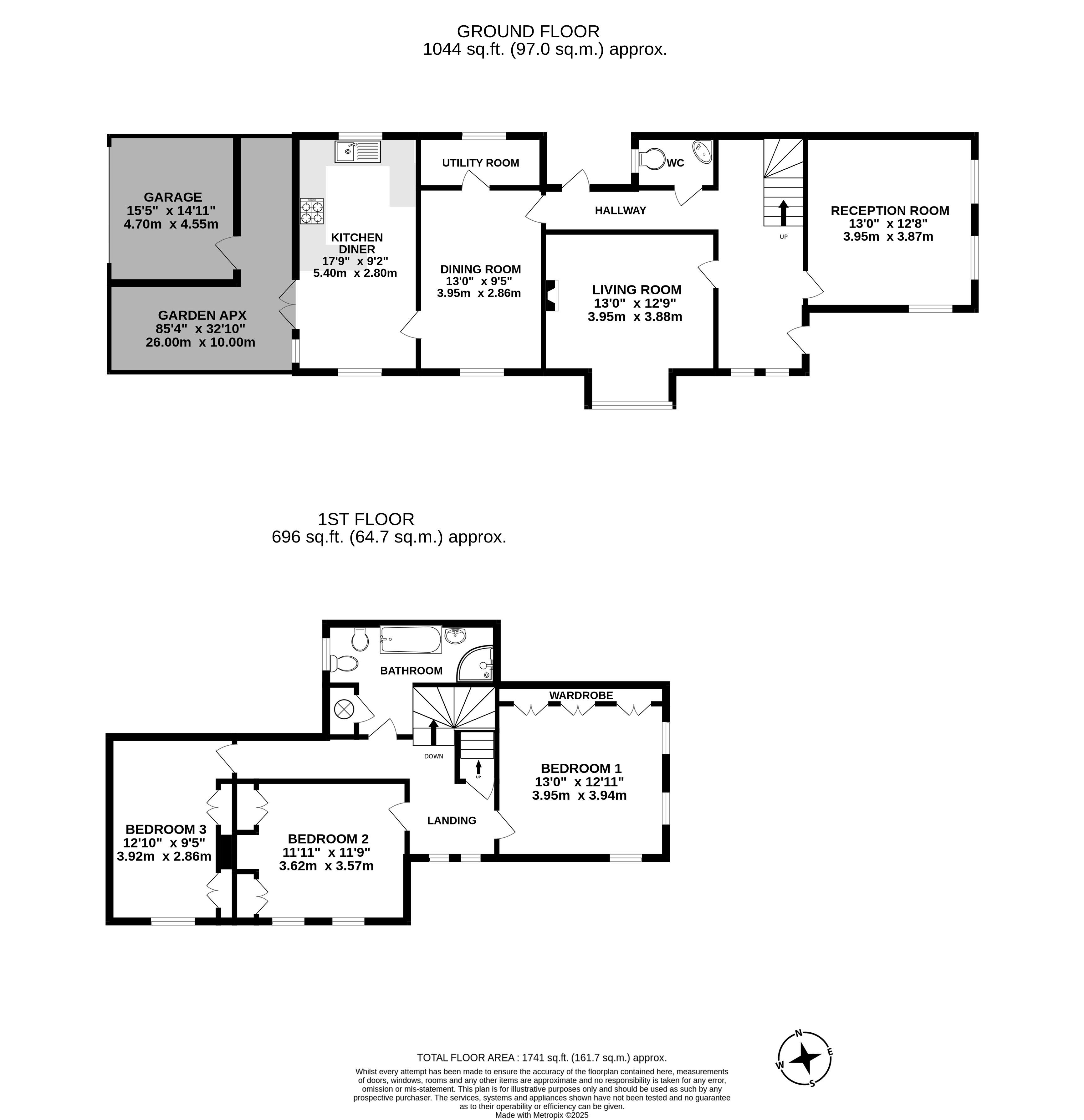
This elegant late Victorian link-detached home, dating back to 1894, blends timeless period character with modern family living. The property offers approximately 1,741 sq. ft. of well-balanced accommodation arranged over two floors, complemented by a private garden and garage.The ground floor welcomes you with a spacious hallway leading to a series of charming reception areas. The generous living room and adjoining reception room both feature large bay windows, creating bright, inviting spaces ideal for entertaining or relaxing. A separate dining room flows into a well-appointed kitchen diner, offering ample room for family meals and access to the utility room and garden beyond. There is also a convenient guest WC on this level.Upstairs, the first floor provides three comfortable double bedrooms, each with character and style. The principal bedroom benefits from a built-in wardrobe and lovely proportions, while the family bathroom is well laid out and light-filled.Outside, the property enjoys a mature rear garden extending to approximately 85 feet, offering plenty of space for outdoor dining and play. The home also benefits from a private garage and off-street parking.Located on Park Road, this charming residence is ideally positioned within easy reach of Radlett's vibrant high street, excellent transport links to London, and a selection of well-regarded local schools.A rare opportunity to acquire a piece of Radlett's history this beautiful late Victorian home offers period elegance, generous living space, and a superb location.

Important Information

  • This is a Freehold property.

Property Ref: 603603_LUM200210

Share:

Similar Properties

Watling Street, Radlett, Hertfordshire, WD7

4 Bedroom Semi-Detached House | Guide Price £980,000

This charming and spacious family home offers a rare opportunity to secure a substantial property with exceptional poten...

Hambleden Place, Gills Hill, Radlett, Hertfordshire, WD7

2 Bedroom Apartment | Guide Price £925,000

Set in a prestigious gated development, this exceptional two-bedroom penthouse apartment is ideally positioned in the ce...

Sycamore Square, Shenley, Radlett, Hertfordshire, WD7

4 Bedroom Detached House | £925,000

Tucked away in the sought-after Sycamore Square, WD7 9FN, this beautifully presented four-bedroom family home offers a p...

Bucknalls Lane, Watford, Hertfordshire, WD25

3 Bedroom Detached House | Offers Over £1,150,000

Situated on a generous 0.26-acre plot in the heart of Garston, this three-bedroom detached residence offers a unique ble...

Page Street, London, NW7

5 Bedroom Semi-Detached House | Offers Over £1,150,000

Situated on the sought-after Page Street in Mill Hill, this recently modernised five-bedroom semi-detached home offers a...

Cowley Hill, Borehamwood, Hertfordshire, WD6

4 Bedroom Semi-Detached House | £1,195,000

Located on the sought-after Cowley Hill, this beautifully presented and substantially extended three-bedroom semi-detach...

Lumley Estates (Radlett)

72 Watling Street, Radlett, Hertfordshire, WD7 7NP

01923 853366

How much is your home worth?

Use our short form to request a valuation of your property.

Request a Valuation

Mortgage Calculator

Amount Borrowed: £
Total Amount Repayable: £
Total Monthly Payment: £
©2025 The Guild of Property Professionals. All rights reserved. Terms and Conditions | Privacy Policy | Cookie Policy | Complaints Policy | Members Login
The Guild of Property Professionals Trading Address: 121 Park Lane, London W1K 7AG. GPEA Limited. Registered in England & Wales.  Company No: 02819824.  Registered Office Address: 2 St. Stephen's Court, St. Stephen's Road, Bournemouth, Dorset, England, BH2 6LA.  VAT Registration No: 576 8795 61
Book a Property Valuation Update Cookies Preferences