Station Road, Radlett, Hertfordshire, WD7

£580,000
SSTC
This property listing is now SSTC

2 Bedroom Terraced House for sale in Hertfordshire

1 2 2

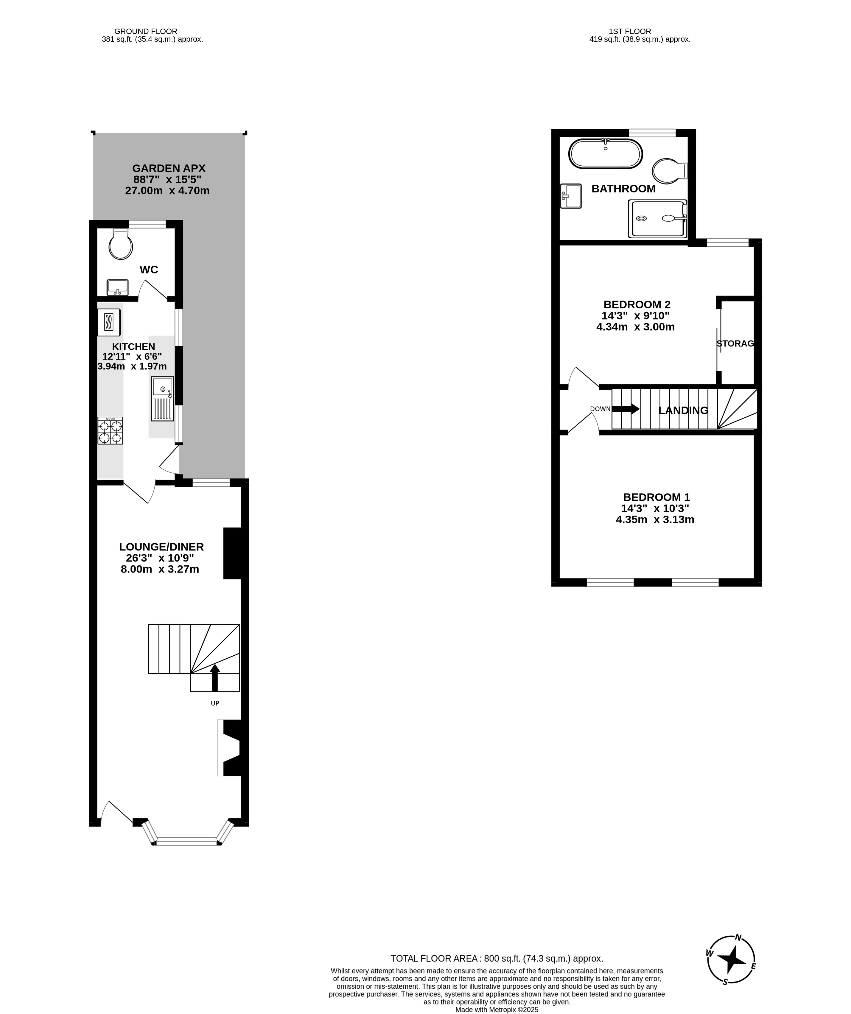
This delightful two-bedroom cottage combines character charm with bright, spacious interiors, perfectly positioned just a short stroll from Radlett’s Mainline Station, as well as the vibrant selection of shops and restaurants the village has to offer.

Upon entering, you’re welcomed into a generous 26ft open-plan lounge and dining area, filled with natural light and featuring a cosy TV snug at the far end – ideal for relaxing or entertaining. The ground floor also boasts a sleek, fully fitted modern kitchen with direct access to the rear garden, while a practical WC/utility room adds convenience to everyday living.

Upstairs, the home offers two well-proportioned double bedrooms, complemented by a stylish family bathroom complete with both bath and separate shower.

Outside, the sunny rear garden is a private oasis, featuring a spacious patio area perfect for al fresco dining and a well-maintained lawn – ideal for enjoying those warmer days. This charming cottage truly offers the best of both comfort and location.

Important Information

  • This is a Freehold property.

Property Ref: 603603_LUM250106

Share:

Similar Properties

Roundbush Lane, Round Bush, Aldenham, Watford, WD25

2 Bedroom Semi-Detached House | £575,000

Amberley Cottage is a charming and thoughtfully laid-out two-bedroom home offering approximately 786 sq. ft. of living s...

Watling Mansions, Watling Street, Radlett, Hertfordshire, WD7

2 Bedroom Apartment | £550,000

A rare opportunity to purchase this exceptional two double bedroom apartment situated in the very popular Watling Mansio...

Falloden Way, London, NW11

2 Bedroom Terraced House | Offers Over £500,000

** CHAIN FREE SALE ** Lumley Estates are proud to present the recently modernised 2-bedroom property in the exclusive lo...

Hale Grove Gardens, London, NW7

1 Bedroom Apartment | £595,000

**SHARE OF FREEHOLD** Lumley Estates are proud to present this stunning penthouse apartment set in the ever desirable lo...

Station Road, Radlett, Hertfordshire, WD7

2 Bedroom End of Terrace House | Guide Price £600,000

A stunning two-bedroom, period end terrace and recently refurbished property just minutes from the heart of Radlett. Thi...

Grenfell Court, Wise Lane, London, NW7

3 Bedroom End of Terrace House | Offers Over £600,000

Situated on the ever-popular Wise Lane in Mill Hill, this beautifully presented end-terrace home offers versatile accomm...

Lumley Estates (Radlett)

72 Watling Street, Radlett, Hertfordshire, WD7 7NP

01923 853366

How much is your home worth?

Use our short form to request a valuation of your property.

Request a Valuation

Mortgage Calculator

Amount Borrowed: £
Total Amount Repayable: £
Total Monthly Payment: £
©2025 The Guild of Property Professionals. All rights reserved. Terms and Conditions | Privacy Policy | Cookie Policy | Complaints Policy | Members Login
The Guild of Property Professionals Trading Address: 121 Park Lane, London W1K 7AG. GPEA Limited. Registered in England & Wales.  Company No: 02819824.  Registered Office Address: 2 St. Stephen's Court, St. Stephen's Road, Bournemouth, Dorset, England, BH2 6LA.  VAT Registration No: 576 8795 61
Book a Property Valuation Update Cookies Preferences