Beechwood Mansions, 253 Amersham Road, HP15

£400,000

2 Bedroom Flat for sale in High Wycombe

2 2 2
  • Exclusive, First Floor, Duplex Apartment Within A Gated Development - Share Of Freehold
  • Electric Security Gates - Garage - Parking - Communal Garden
  • Two Bedrooms - Family Bathroom - Ensuite
  • Large Living/Dining Room - Fitted Kitchen - Private Roof Terrace
  • Double Glazing - Underfloor Heating

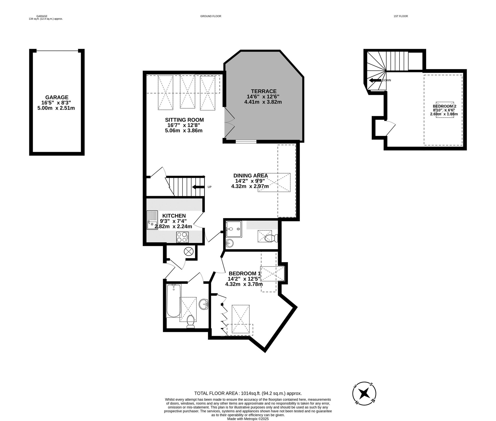
A well appointed, second floor, duplex apartment, situated in a gated development and located in the popular village of Hazlemere, close to shops and local amenities. This modern apartment offers contemporary living with the added bonus of a lovely private roof terrace that overlooks the garden, as well as a single garage and parking. The well kept, communal hall area is neat and tidy with stairs leading to the second floor where you enter the apartment's entrance hall. There is a large open plan living/dining area that has French doors leading to the roof terrace. The two bedrooms are on separate floors with the principal enjoying the benefit of an ensuite shower room and fitted wardrobes. The second bedroom is accessed by a small set of stairs. The kitchen is fitted with shaker style wall and base units and integrated appliances. The main bathroom is fitted with a three piece suite comprising a low level W.C., wash hand basin and bath. The apartment is heated with an underfloor heating system that is serviced by a gas boiler and there is double glazing installed throughout. This is a must see apartment that would be an ideal first time buyer purchase or downsizer or even an investment purchase.

Important Information

  • This is a Freehold property.
  • The annual service charges for this property is £2160
  • This Council Tax band for this property is: E
  • EPC Rating is C

Property Ref: a052fd21-da96-4889-8f97-099493e368ec

Share:

Similar Properties

Ramsay View, Hazlemere, HP15

2 Bedroom End of Terrace House | £385,000

A two bedroom, end of terrace house situated on the ever popular Manor Farm Development with a garage and parking. No On...

Centre Walk, Hazlemere, HP15

2 Bedroom End of Terrace House | £379,950

A charming and well presented 2 bed end terrace house in quiet location with garage and parking, close to schools, trans...

Beaumont Way, Hazlemere, HP15

2 Bedroom Not Specified | £375,000

A lovely, modern apartment, exclusively for the over 60's with two bedrooms, two bathrooms and a private patio - all wit...

Beechwood Mansions, 253 Amersham Road, HP15

3 Bedroom Flat | £425,000

Beechwood Mansions is a set of six apartments built in 2006 and is located within a prestigious and exclusive gated deve...

Columbine Road, Widmer End, HP15

2 Bedroom Terraced House | £429,000

An extended, terrace house in Widmer End that has been updated and benefits from a single garage and no onward chain.

Lower Lodge Lane, Hazlemere, HP15

3 Bedroom Semi-Detached House | Offers in excess of £450,000

Requiring modernisation and improvement with potential to extend (STPP) due to large plot. Excellent opportunity!

Wye Partnership (Hazlemere)

3 Market Parade, Hazlemere, Buckinghamshire, HP15 7LQ

01494 711284

How much is your home worth?

Use our short form to request a valuation of your property.

Request a Valuation

Mortgage Calculator

Amount Borrowed: £
Total Amount Repayable: £
Total Monthly Payment: £
©2026 The Guild of Property Professionals. All rights reserved. Terms and Conditions | Privacy Policy | Cookie Policy | Complaints Policy | Members Login
The Guild of Property Professionals Trading Address: 121 Park Lane, London W1K 7AG. GPEA Limited. Registered in England & Wales.  Company No: 02819824.  Registered Office Address: 2 St. Stephen's Court, St. Stephen's Road, Bournemouth, Dorset, England, BH2 6LA.  VAT Registration No: 576 8795 61
Book a Property Valuation Update Cookies Preferences