Brent Street, Brent Knoll

Guide Price
£150,000

Not Specified for sale in Highbridge

2 1
  • Mid 19th Century Chapel
  • For sale by Informal Tender
  • Set in the heart of a desirable village
  • Overlooking fields opposite
  • Potential to convert to residential or other uses
  • Offers by midday 21st January
  • Viewings by appointment only

Description



Constructed in c.1840 as a Bible Christian Chapel, this attractive chapel is situated within the heart of the excellent community-oriented village of Brent Knoll. The property is notably not listed, built with rendered rubble stone walls and stone dressings under a pantile roof plus a striking Georgian style porch. There is a delightful outlook overlooking a field opposite which is privately owned and the owner permits use for the community.


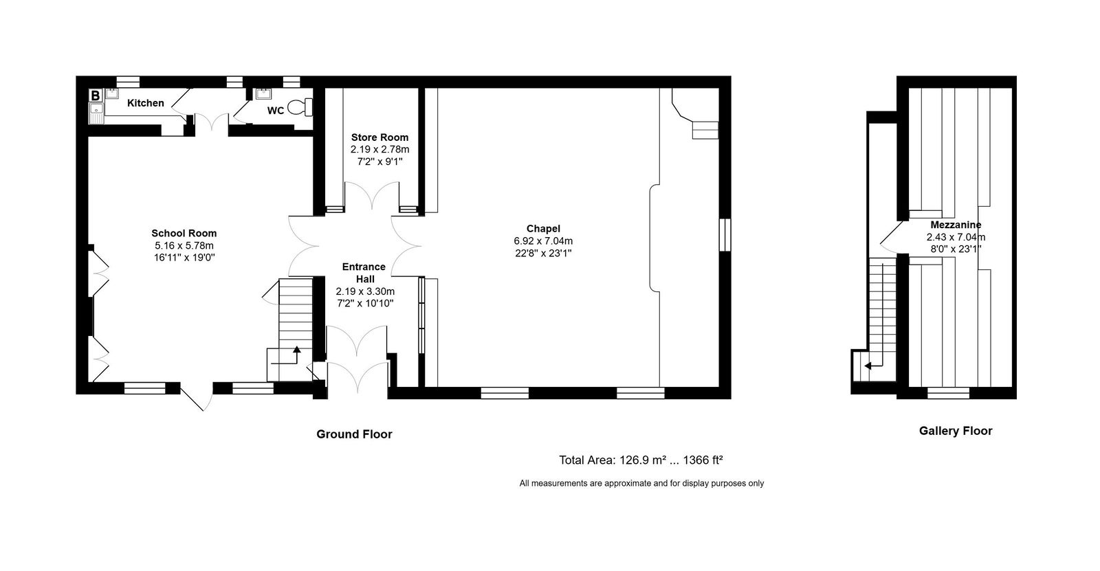
The interior principally comprises the chapel and an attached former schoolroom, both boasting superb double-height ceilings and tall windows bringing in ample natural light. The whole extends to around 1,366 sq.ft. including a balconied gallery within the chapel. There is a central entrance hall with room off, and a kitchen and WC area to the rear. There is plenty of off-street parking to the front which is the total extent of the curtilage.


The chapel offers fantastic potential to be converted into a residential dwelling or other uses such as offices, studio, or maybe a nursery.



Situation



Brent Knoll is one of Somerset's most desirable villages located within the north of the county with a countryside aspect while benefitting the convenience of excellent road networks nearby. The village has a wonderful sense of community with a community shop, primary school, and pub. There is an active village hall and church as well as clubs including tennis, and playing fields. The village lies at the foot of the knoll it is named after, which is an outlier of the Mendhip hills, where far-reaching panoramic views can be enjoyed. The village is also only a few miles from the Bristol channel and the seaside towns of Burnham-on-Sea and Weston-super-Mare. The M5 is accessible within only a few minutes drive providing fast networks to the south Bridgewater, Taunton and Exeter, and the north with Bristol, Bath and the M4 to Wales. The nearest train station Highbridge & Burnham has frequent city services including Bristol. 



Additional Information


Although presently a long leasehold title (thought to be 999 years), it has been suggested that it might be possible for this to be converted to freehold if desired. Mains water, electricity, drainage and gas are connected. Heating is providing by gas boiler and radiators. 

Joint Agents with Christophers Chartered Surveyors 01460 281881. 


VIEWINGS


Viewings are BY APPOINTMENT ONLY on the following dates. Please book your appointment time with James Pyle & Co on 01666 840886 and a time will be allocated for your visit. 


  1. Tuesday 16th December

  2. Saturday 10th January



Method of Sale -INFORMAL TENDER


The property is for sale by 'Informal Tender' in order for the church to secure a suitable purchaser.  This process allows a marketing period for potential buyers to consider their options before submitting their offer.  At the end of the marketing period, bidding will be closed and once an offer is accepted, matters will placed in hands of the respective solicitors, subject to contract in the usual way. 
 
Best offers in writing are invited to be submitted to the agents, James Pyle & Co by Midday on Wednesday 21st January.
Offers should be in writing and provide full narrative of intended uses.  
Offers may be unconditional or conditional (e.g subject to planning consent) although the former are to be preferred unless there is a significant variation in bid. 
All offers should clearly indicate the buyers name, address and appropriate contact details. 
All conditional offers should clearly state the nature of any condition (e.g subject to contract, survey)
Any queries on the above, should be directed to the agents.

Important Information

  • This is a Leasehold property.

Property Ref: 2775_1244241

Share:

Similar Properties

Codrington, South Gloucestershire

Not Specified | Guide Price £50,000

For Sale by Informal Tender (Close of bids 28th January 2026).  A former Baptist Chapel situated in a rural location on...

High Street, Sherston

Land | £15,000pa

Situated in the Old School builiding in Sherston and currently used as a hairdressers, this large office space is approx...

High Street, Sherston

Land | £7,250pa

A lovely office of approximately 347 sq ft with storage area, situated in the Old School builiding in Sherston. There ar...

Point Road, Avening

3 Bedroom Cottage | Offers Over £180,000

For Sale By Online Auction THURSDAY 4th DECEMBER 2025 GUIDE PRICE £180,000+. Semi-detached character cottage presents th...

Sherwood Road, Tetbury

2 Bedroom Terraced House | £260,000

A fantastic starter home! Located in a popular area on the edge of Tetbury just a 5 minute level walk from the town cent...

Barley Close, Malmesbury

3 Bedroom Terraced House | £292,500

Positioned close to the High Street with views over the River Avon water meadows, a recently refurbished modern terraced...

James Pyle & Co (Sherston)

Swan Barton, Sherston, Wiltshire, SN16 0LJ

01666 840886

How much is your home worth?

Use our short form to request a valuation of your property.

Request a Valuation

Mortgage Calculator

Amount Borrowed: £
Total Amount Repayable: £
Total Monthly Payment: £
©2025 The Guild of Property Professionals. All rights reserved. Terms and Conditions | Privacy Policy | Cookie Policy | Complaints Policy | Members Login
The Guild of Property Professionals Trading Address: 121 Park Lane, London W1K 7AG. GPEA Limited. Registered in England & Wales.  Company No: 02819824.  Registered Office Address: 2 St. Stephen's Court, St. Stephen's Road, Bournemouth, Dorset, England, BH2 6LA.  VAT Registration No: 576 8795 61
Book a Property Valuation Update Cookies Preferences