High Street, Hillesley

Offers Over
£400,000
SSTC
This property listing is now SSTC

4 Bedroom Semi-Detached House for sale in Hillesley

1 4 2
  • No onward chain
  • Picturesque Cotswold village setting
  • Bathroom and shower room
  • Kitchen/dining room
  • Living room with fireplace
  • 4 bedrooms
  • Private off-street parking
  • Front and rear gardens
  • Character features
  • Semi-detached period stone cottage

Description

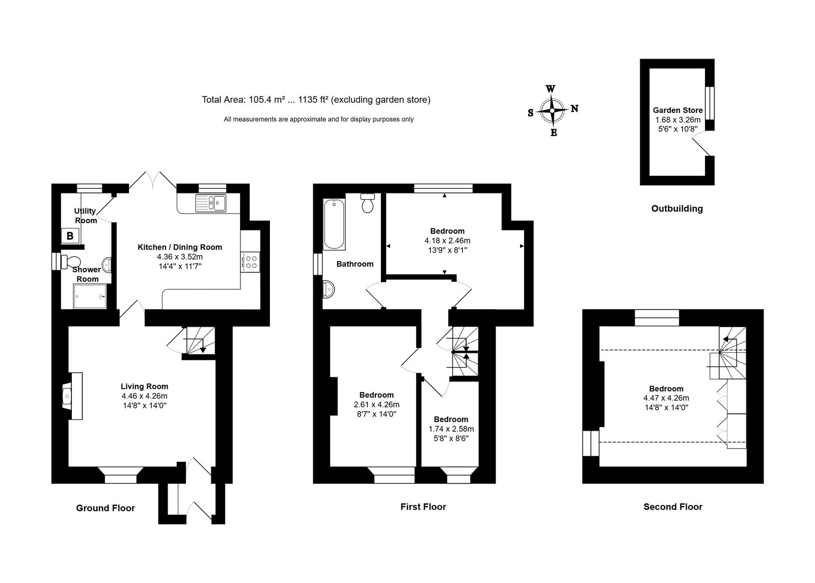
This charming semi-detached natural stone period cottage is situated within the picturesque village of Hillesley which is a lovely community set amongst the Cotswold Area of Outstanding Natural Beauty. The cottage is available with no onward chain boasting both front and rear gardens plus private parking. Believed to have originally formed as one property constructed in the 1800s, the cottage still today has lots of character and charm while the light and bright accommodation has good proportions.

On the ground floor, a porch with a stable door opens to the front reception room which features a stone fireplace and woodburning stove inset plus a delightful window seat looking over the front garden. The kitchen/dining room is at the rear with double patio doors connecting to the garden behind. The kitchen with a range of timber units and has a utility room off the side with a convenient downstairs shower room. On the first floor there are two double bedrooms and a single bedroom alongside the family bathroom. On the top floor there is a magnificent bedroom with exposed beams. The cottage has superb views over the surrounding countryside reaching as far as the Welsh hills.

There is a private driveway at the front of the cottage which offers off-street parking for two cars. Screened by silver birches, the front garden is laid mostly to lawn while the rear garden has been landscaped with a patio terrace. Within the rear garden there is an outbuilding which has power connected and could be converted into a home office.

Situation
Hillesley is a delightful unspoilt village on the edge of the Cotswold Escarpment and Badminton Estate, nestled within rolling Gloucestershire countryside close to the Cotswold Way. The village's amenities include a primary school, St Giles church, an active village hall and the community run Fleece Inn which was voted as CAMRA's county pub of the year in 2018. There are sporting activities within the village such as a playing field hosting cricket teams and a tennis court. The neighbouring village of Hawkesbury Upton also offers a range of facilities including a primary school, pub, a village shop, post office and village hall. Less than 3 miles away is the large market town of Wotton-under-Edge a typical Cotswold market town made prosperous from the former woollen industry and today provides good local amenities for everyday needs, including schools for all ages and the highly regarded Katharine Lady Berkeley secondary school, local shops, pubs, restaurants and services including doctors' and dental surgeries. There are popular sports and social clubs, a local swimming pool and the Wotton Electric Picture House. Both the M4 and M5 Motorway are within 15 minutes' drive away, putting Bristol (20 miles) and Gloucester (19 miles) within easy reach. The nearest railway station is Yate, only 20 minutes away, and has regular mainline services.
Additional Information
The property is Freehold with oil-fired central heating, mains drainage, water and electricity. The property is located within the Cotswold Area of Outstanding Natural Beauty. Ultrafast broadband is available. Information taken from the Ofcom mobile and broadband checker, please see the website for more information and mobile phone coverage. Stroud District Council Tax Band D.

Important Information

  • This is a Freehold property.
  • This Council Tax band for this property is: D

Property Ref: 1368475

Share:

Similar Properties

Noble Street, Sherston

Barn Conversion | Guide Price £400,000

A rare and unique opportunity to purchase an old Cotswold stone barn, situated in the heart of the thriving village of S...

The Den, Sherston

4 Bedroom End of Terrace House | Offers Over £400,000

FOR SALE BY AUCTION 6th May 2026 -  Enjoying enviable countryside views and situated literally on the edge of this highl...

Hunloke Way, Malmesbury

3 Bedroom End of Terrace House | Guide Price £390,000

Enjoying peace and tranquillity, this well-presented 3 bedroom homes boasts a sunny waterside position overlooking the R...

The Chipping, Tetbury

3 Bedroom Terraced House | £425,000

This characterful Grade II listed cottage is positioned on Tetbury's picturesque cobbled Chipping steps overlooking the...

West Street, Tetbury

2 Bedroom Cottage | £430,000

This charming Cotswold stone period cottage is set within a fantastic position close to the Tetbury's town centre and ma...

The Street, Crudwell

3 Bedroom Detached House | Offers Over £430,000

Set within an outstanding 0.32 acre plot with a fantastic 230ft garden, this pretty double-fronted period cottage requir...

James Pyle & Co (Sherston)

Swan Barton, Sherston, Wiltshire, SN16 0LJ

01666 840886

How much is your home worth?

Use our short form to request a valuation of your property.

Request a Valuation

Mortgage Calculator

Amount Borrowed: £
Total Amount Repayable: £
Total Monthly Payment: £
©2026 The Guild of Property Professionals. All rights reserved. Terms and Conditions | Privacy Policy | Cookie Policy | Complaints Policy | Members Login
The Guild of Property Professionals Trading Address: 121 Park Lane, London W1K 7AG. GPEA Limited. Registered in England & Wales.  Company No: 02819824.  Registered Office Address: 2 St. Stephen's Court, St. Stephen's Road, Bournemouth, Dorset, England, BH2 6LA.  VAT Registration No: 576 8795 61
Book a Property Valuation Update Cookies Preferences