23 Church Court

Offers in region of
£275,000
SSTC
This property listing is now SSTC

2 Bedroom Apartment for sale in Holywood

1 2 2

This exceptionally presented ground floor apartment offers stylish and comfortable accommodation finished to a high standard throughout, complemented by a tasteful and neutral colour palette. Situated in a highly convenient location just a short walk from Holywood town centre, the property provides excellent access to local shops, schools, transport links, and easy commuting to Belfast.

The apartment opens via a welcoming reception porch into a bright open-plan kitchen, dining, and living area. The living and dining space features oak flooring and a bay window overlooking Church Road, while a side aspect provides views over a private patio with mature planting and stone wall. The bespoke kitchen is fitted with modern units and integrated appliances, creating a functional and contemporary space.

The accommodation comprises two well-proportioned bedrooms, including a principal bedroom with an en-suite shower room. A modern family bathroom completes the layout. Externally, the apartment benefits from a private patio and allocated car parking, with resident and visitor parking available under the management scheme.

.Exceptionally presented ground floor apartment
.Neutral and tasteful décor throughout
.Reception porch with ceramic tiled flooring
.Open-plan kitchen, dining, and living space with oak flooring
.Bay window with mature outlook to Church Road
.Side aspect to private patio with mature planting and stone wall
.Modern bespoke kitchen with integrated appliances
.Two bedrooms; principal with en-suite shower room
.Modern family bathroom
.Allocated car parking with resident and visitor management scheme

Entrance -

Front Door - Hardwood front door to Church Road with double glazed top light.

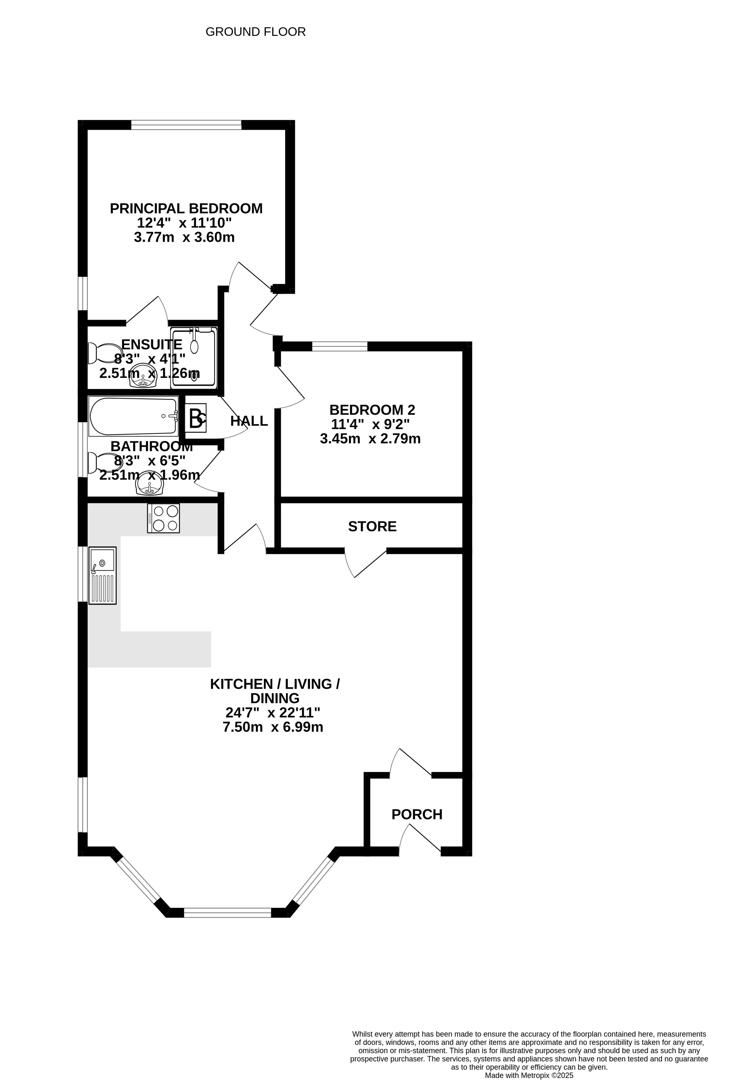
Ground Floor -

Reception Porch - With ceramic tiled floor, inner door to open plan kitchen/dining/living space.

Open Plan Kitchen/Dining/Living Space - 7.49m x 6.99m (24'7 x 22'11) - With oak wooden flooring throughout living and dining space, measurement into bay window with mature outlook to Church Road and outside to side to original stone wall and patio, open to bespoke fitted newly installed bespoke fitted kitchen with corian type worktop and upstand, stainless steel inset sink unit, chrome mixer taps, integrated four ring induction hob with stainless steel oven below, stainless steel and glass extractor hood above, outlook to side patio, original wall and mature planting, built-in glazed display cabinets, integrated fridge, integrated freezer, integrated washing machine, ceramic tiled floor, recessed low voltage spotlighting, walk-in store room/pantry with built-in shelving and excellent storage.

Hallway - With oak laminate wooden flooring and door to car parking.

Bedroom One - 3.76m x 3.61m (12'4 x 11'10) - Oak laminate wooden flooring, dual aspect windows, mature outlook to rear and mature planting and stone wall to side.

En Suite Shower Room - 2.51m x 1.24m (8'3 x 4'1) - White suite comprising low flush WC, pedestal wash hand basin, built-in fully tiled shower cubicle with chrome thermostatically controlled shower unit, extractor fan, recessed spotlighting.

Bedroom Two - 3.45m x 2.79m (11'4 x 9'2) - Oak laminate wooden flooring, mature outlook to Church Court parking, linen press with built-in shelving, excellent storage and Baxi gas fired boiler.

Bathroom - 2.51m x 1.96m (8'3 x 6'5) - With modern white suite comprising low flush WC, vanity unit with chrome mixer taps, panelled bath, built-in thermostatically controlled shower unit, shower screen, chrome mixer taps, fully tiled splashback, recessed spotlighting, ceramic tiled floor.

Outside -

Parking - Resident and visitor parking.

Management Fees - Approximately £1,300 per year

Holywood, named Best Place to Live in Northern Ireland 2023 by the Sunday Times, is located conveniently close to Belfast on the coast of North Down. Holywood is known for its beautiful beaches, trendy cafés and for being a foodie heaven! Holywood is home to many leading secondary and primary schools.

Property Ref: 44459_34253231

Share:

Similar Properties

5 Kintyre Avenue

3 Bedroom Bungalow | Guide Price £275,000

Positioned in this desirable residential address, this chain-free detached three-bedroom bungalow offers an excellent op...

290B Comber Road

3 Bedroom Semi-Detached House | Offers in region of £270,000

Built just five years ago, 290B Comber Road presents an excellent opportunity to acquire a stylish and well-designed sem...

5 Craigantlet Cottages

3 Bedroom End of Terrace House | Offers in region of £245,000

This exceptionally well-maintained cottage-style terrace property occupies a superb position within the ever-popular are...

38 Kinnegar Road

3 Bedroom Semi-Detached House | Offers in region of £299,950

Set in the heart of the sought-after Kinnegar area of Holywood, 38 Kinnegar Road offers an excellent opportunity to acqu...

2 Meadowview Avenue

3 Bedroom Detached House | Offers in region of £300,000

2 Meadowview Avenue, Dundonald is a modern detached three-bedroom home that perfectly balances contemporary living with...

16 Southwell Road

House | Offers in region of £300,000

16 Southwell Road is a distinguished period home, set in an established area of Bangor. Southwell Road is renowned for i...

John Minnis Estate Agents (Holywood)

Holywood, County Down, BT18 9AD

028 9042 8888

How much is your home worth?

Use our short form to request a valuation of your property.

Request a Valuation

Mortgage Calculator

Amount Borrowed: £
Total Amount Repayable: £
Total Monthly Payment: £
©2026 The Guild of Property Professionals. All rights reserved. Terms and Conditions | Privacy Policy | Cookie Policy | Complaints Policy | Members Login
The Guild of Property Professionals Trading Address: 121 Park Lane, London W1K 7AG. GPEA Limited. Registered in England & Wales.  Company No: 02819824.  Registered Office Address: 2 St. Stephen's Court, St. Stephen's Road, Bournemouth, Dorset, England, BH2 6LA.  VAT Registration No: 576 8795 61
Book a Property Valuation Update Cookies Preferences