The Four Horseshoes, Long Sutton, Hook, Hampshire

Guide Price
£695,000

4 Bedroom Pub for sale in Hook

3 4 4
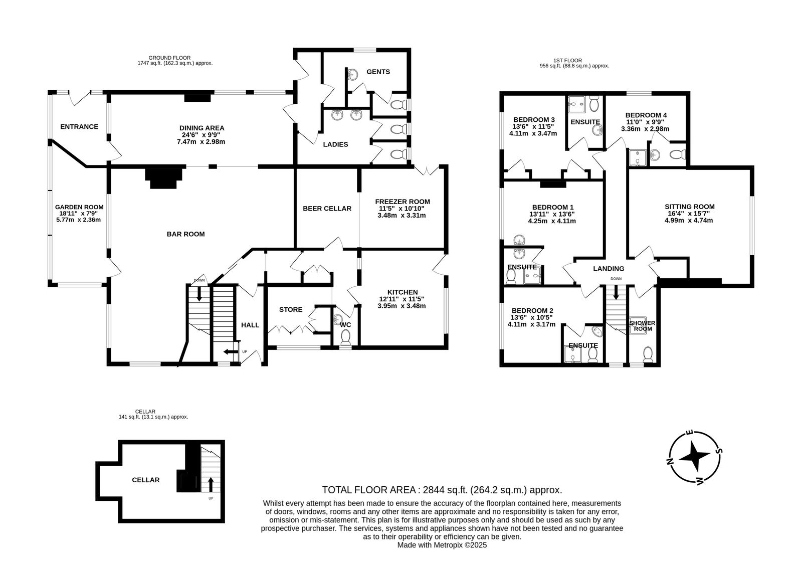
  • Public House and Inn with Total floor Area Approx 2,900 sq ft
  • En-suite B & B Rooms plus Landlord Accommodation
  • Private grounds extending to just under 1 acre.
  • Edge of Village setting with fine views
  • Council Tax for Landlord's Accommodation is Band C
  • Business Rates do not apply to the balance of the building.
  • No Onward Chain

The Four Horseshoes is a freehold public house and inn set in a delightful location on the edge of the charming village of Long Sutton. The property lends itself to a number of alternative uses as well as its current use as a pub. 

An exciting opportunity to acquire a traditional public house with excellent potential for redevelopment (STP), situated in the highly sought-after village of Long Sutton. Enjoying a lovely rural aspect, this characterful property sits in a desirable location surrounded by countryside charm while remaining close to village amenities.

The building offers generous internal space with scope for a range of future uses—whether conversion to residential accommodation, creation of holiday lets, or continued hospitality use, subject to planning permissions. Externally, the property benefits from ample outdoor space, providing further potential for extension, landscaping, or alternative development ideas.

This is a rare chance to secure a substantial village property with huge scope, set within a peaceful and picturesque environment.

The property is positioned on the eastern edge of the picturesque Hampshire village of Long Sutton, known for its array of period properties. Nestled within rolling Hampshire countryside, there is an excellent network of footpaths to explore and dog walking. Within the village there is a popular primary school, a village hall, and All Saints Church, as well as Lord Wandsworth College, which is located close to the property. The pretty market towns of Odiham (3.5 miles), Farnham (7 miles) and Basingstoke (11.5 miles) offer a more extensive range of day-to-day shopping and recreational facilities.

Mainline stations are at Winchfield and Hook, both 5 miles away, offering good services to London Waterloo (from 49 minutes). The M3 (J5, 5 miles) provides fast access to the national motorway network and the south coast. In addition to Long Sutton C. of E. Primary and Lord Wandsworth College, there is a further choice of local village primary schools and secondary schools including Robert May’s in Odiham, Eggar’s School in Alton, Edgeborough in Frensham Heights and Wellesley Prep in Stratfield Turgis.

Property history: The Four Horse Shoes would appear to have been thatched originally. Local photographs, of around 100 years ago, suggest it was re roofed then when it was a tied house to Mays brewery in Basingstoke. Internally the building has many exposed beams to the bar/dining area, which are indicative of an age dating from around 1750. Trading successfully, for the last 25 years, as a Freehold Public house, the pub caters for 40 covers and continues to enjoy a busy Sunday lunch and occasional evening trade. The property is popular with a number of clubs/associations as a meeting point with customers benefitting from a large private off-road car park opposite. 

 

SERVICES

We understand that mains water, gas and electricity are connected. Private Drainage.

BUSINESS RATES & COUNCIL TAX

The property benefits from small business rate relief, so no business rates are currently payable.
The Council Tax for Landlord's Accommodation is Band C

 

 

Important Information

  • This is a Freehold property.

Property Ref: 1249961

Share:

Similar Properties

Sweet Woodruff Cottage, Avington Park Lane, Easton, Winchester

3 Bedroom Semi-Detached House | £695,000

A charming cottage on a small development built to an exacting standard by Antler Homes in 2003. The property offers the...

Larkfield, Goscombe Lane, Gundleton, Alresford

4 Bedroom Detached House | £695,000

Spacious 4 bedroom detached family home with versatile living accommodation, detached triple garage, 0.25 acre plot, sit...

Brook Cottage, Old Alresford, Alresford, SO24 9DH

3 Bedroom Bungalow | £650,000

Situated in the highly desirable village of Old Alresford, this detached bungalow enjoys a prime position overlooking th...

Moulin, Petersfield Road, Ropley, Alresford

3 Bedroom Bungalow | Guide Price £699,950

A spacious and well-presented bungalow set on a 1/3 acre plot, with a secluded south-facing rear garden, excellent parki...

Tichborne Down, Alresford

4 Bedroom Bungalow | £700,000

A substantial detached bungalow offering an impressive breadth of versatile accommodation, positioned on the southern ed...

Windermere Gardens, Alresford

4 Bedroom Detached House | £725,000

A spacious four bedroom extended detached family home with an attractive, secluded wrap around garden, parking and a gar...

Hellards Estate Agents (Alresford)

11 Broad Street, Alresford, Hampshire, SO24 9AR

01962 736333

How much is your home worth?

Use our short form to request a valuation of your property.

Request a Valuation

Mortgage Calculator

Amount Borrowed: £
Total Amount Repayable: £
Total Monthly Payment: £
©2026 The Guild of Property Professionals. All rights reserved. Terms and Conditions | Privacy Policy | Cookie Policy | Complaints Policy | Members Login
The Guild of Property Professionals Trading Address: 121 Park Lane, London W1K 7AG. GPEA Limited. Registered in England & Wales.  Company No: 02819824.  Registered Office Address: 2 St. Stephen's Court, St. Stephen's Road, Bournemouth, Dorset, England, BH2 6LA.  VAT Registration No: 576 8795 61
Book a Property Valuation Update Cookies Preferences