Morton Road, Horsell, Surrey, GU21

Guide Price
£1,100,000
SSTC
This property listing is now SSTC

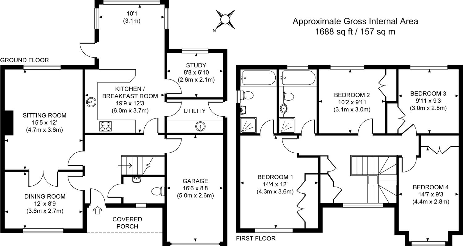
4 Bedroom Detached House for sale in Horsell

3 4 2

This attractive four bedroom detached house is beautifully appointed throughout, having been newly built in 2009 by a renowned local builder and finished to a high standard.

One of only three executive style properties tucked away in a small cul de sac in the popular Horsell village yet still within easy reach and walking distance of Woking and it's mainline station. Particular features include the spacious open plan kitchen/breakfast room and bathrooms.

The kitchen is fully fitted with granite worksurfaces and a range of appliances including a stainless steel range cooker. Both the en-suite and family bathrooms have a separate shower and bath with fully tiled floor, walls and granite vanity surfaces.

The sitting room has an open fireplace with a stone surround and gas point. Flooring is included with Travertine limestone through the entrance hall, cloakroom and kitchen/breakfast room. Heating is from a state of the art gas condensing boiler to radiators with thermostatic valves plus additional solar panels for the hot water.

Further benefits include a block paved driveway leading to the integral garage and a good size well landscaped rear garden.

Important Information

  • This is a Freehold property.

Property Ref: 58092_HOR120015

Share:

Similar Properties

Horsell, Surrey, GU21

6 Bedroom Detached House | Offers in excess of £1,100,000

Tucked away in an exclusive cul-de-sac in the heart of Horsell Village, this beautifully presented six-bedroom detached...

Horsell, Surrey, GU21

5 Bedroom Detached House | Guide Price £1,100,000

An elegant and substantial neo-Georgian residence positioned within a quiet cul-de-sac, moments from the natural beauty...

Horsell, Woking, Surrey, GU21

4 Bedroom Detached House | Guide Price £1,050,000

Tucked away in one of Horsell's most sought-after residential roads, this impressive four-bedroom detached family home o...

Horsell, Woking, Surrey, GU21

4 Bedroom Detached House | Guide Price £1,150,000

Situated in one of Horsell's most sought-after and peaceful roads, Perran Brae presents a rare opportunity to acquire a...

Horsell, Woking, Surrey, GU21

5 Bedroom Detached House | Guide Price £1,175,000

A delightful detached family home, located in a quiet corner of this popular cul-de-sac, close to Woking town centre and...

Horsell, Surrey, GU21

5 Bedroom Detached House | Guide Price £1,200,000

Drey House is an impressive and deceptively spacious four/five-bedroom detached chalet bungalow, perfectly positioned on...

Seymours (Horsell)

Horsell, Surrey, GU21 4SY

01483 755222

How much is your home worth?

Use our short form to request a valuation of your property.

Request a Valuation

Mortgage Calculator

Amount Borrowed: £
Total Amount Repayable: £
Total Monthly Payment: £
©2026 The Guild of Property Professionals. All rights reserved. Terms and Conditions | Privacy Policy | Cookie Policy | Complaints Policy | Members Login
The Guild of Property Professionals Trading Address: 121 Park Lane, London W1K 7AG. GPEA Limited. Registered in England & Wales.  Company No: 02819824.  Registered Office Address: 2 St. Stephen's Court, St. Stephen's Road, Bournemouth, Dorset, England, BH2 6LA.  VAT Registration No: 576 8795 61
Book a Property Valuation Update Cookies Preferences