Elgar Way, Horsham, West Sussex

Offers Over
£550,000

3 Bedroom Detached House for sale in Horsham

1 3 2
  • SOUGHT AFTER FOREST WALK LOCATION
  • DETACHED THREE BEDROOM FAMILY HOME
  • NO ONWARD CHAIN
  • MAIN BEDROOM WITH DRESSING AREA
  • EN SUITE SHOWER ROOM
  • SEPARATE LOUNGE AND DINING ROOM
  • KITCHEN WITH ADJACENT UTILITY AREA
  • GROUND FLOOR CLOAKROOM
  • INTEGRAL GARAGE AND DRIVEWAY
  • LANDSCAPED REAR GARDEN

LOCATION
Set within the highly regarded Forest Walk development, this home enjoys a peaceful residential setting with woodland walks just moments away, perfect for families, dog walkers and anyone who enjoys the outdoors. The area is well served by local shops, schools and recreational spaces, creating a strong community feel. Excellent road links via the A264 and A23 provide convenient access to surrounding towns and the south coast, while Horsham town centre offers a vibrant mix of shopping, dining and leisure facilities. With a mainline station providing direct services to London and the coast, this location balances tranquillity with connectivity.

PROPERTY
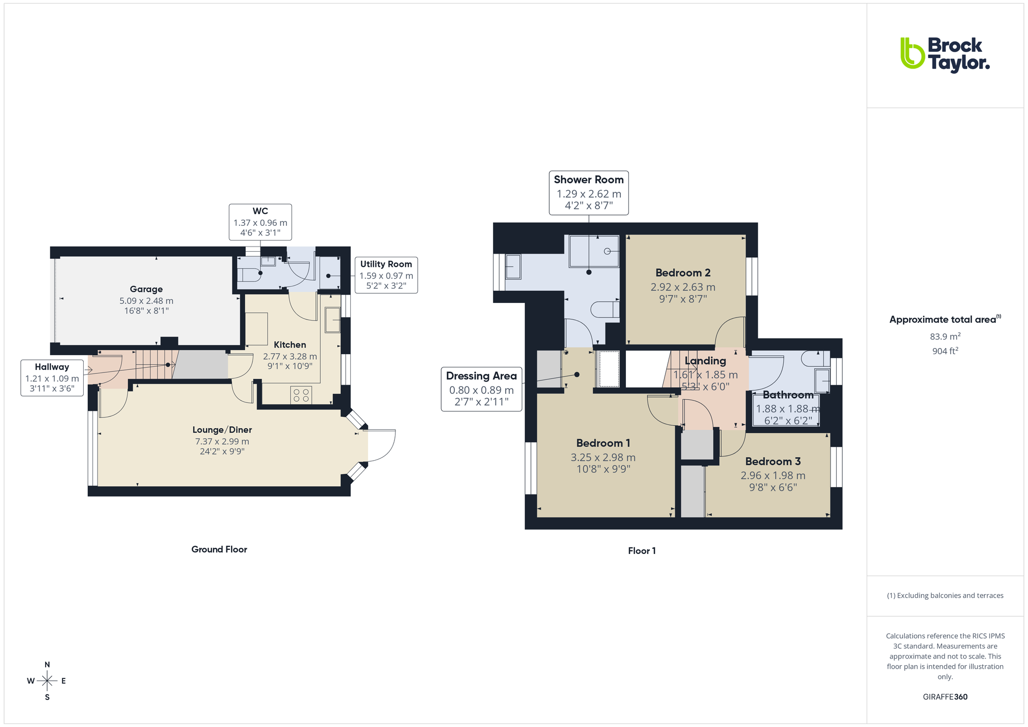
This attractive three bedroom detached family home is beautifully presented and offered for sale with no onward chain, making it an ideal move for buyers seeking a smooth purchase. The property offers well balanced accommodation throughout, designed for comfortable modern living.

The ground floor features a welcoming entrance hall leading to a bright and spacious lounge/diner, providing a versatile open-plan space ideal for both everyday family life and entertaining. The kitchen is thoughtfully arranged with good storage and workspace, and benefits from an adjacent utility area to keep laundry and appliances neatly tucked away. A convenient cloakroom completes the downstairs layout.

Upstairs, the principal bedroom enjoys the luxury of a dressing area and a private en suite shower room, creating a calm and practical retreat. Two further bedrooms are well proportioned and served by a family bathroom.

Overall, this is a home that feels light, functional and inviting, with a layout that suits both growing families and downsizers wanting space without compromise. Its presentation allows a buyer to move straight in and enjoy.

OUTSIDE & PARKING
To the front, the property benefits from a private driveway leading to an integral garage, providing off road parking and additional storage. The rear garden has been thoughtfully landscaped and is mainly laid to lawn with established flowers and shrubs adding colour and privacy. It offers a pleasant space for children to play, summer dining or simply relaxing outdoors. The garden strikes a lovely balance between being attractive and manageable, appealing to those who want outdoor space without heavy upkeep. Overall, the outside space complements the home perfectly and enhances its family friendly appeal.

Important Information

  • This is a Freehold property.
  • This Council Tax band for this property is: E

Property Ref: JRP959559

Share:

Similar Properties

Hillmead, Horsham, West Sussex

3 Bedroom Bungalow | £550,000

A bright three‑bedroom house in a handy Horsham location, close to town, station and strong local schools, offering a pr...

Copper Beech, Holly Close, Horsham, West Sussex

3 Bedroom Detached Bungalow | Offers Over £550,000

THREE-BEDROOM BUNGALOW set in a PRIVATE HORSHAM CLOSE, offering a LARGE GARDEN, garage and car port, with excellent pote...

Durrants Drive, Faygate, Horsham, West Sussex

3 Bedroom Retirement Property | Offers in region of £550,000

A beautifully presented THREE-BEDROOM RETIREMENT COTTAGE set within the prestigious Durrants Village, offering generous...

Edinburgh Close, Southwater, Horsham, West Sussex

5 Bedroom Detached House | Offers in region of £580,000

A spacious FIVE-BEDROOM DETACHED FAMILY HOME set in a quiet cul-de-sac, offering versatile accommodation ideal for multi...

Little Cross, Church Street, Warnham, Horsham, West Sussex

3 Bedroom Semi-Detached House | £600,000

This THREE DOUBLE BEDROOM home has a LARGE KITCHEN DINING AREA, OPEN PLAN LIVING ROOM, courtyard GARDEN SPACE, GARAGE an...

Barleycroft, Cowfold, Horsham, West Sussex

3 Bedroom Chalet | Offers in excess of £600,000

A well presented three bedroom chalet bungalow positioned in a quiet cul-de-sac in Cowfold. Offering spacious and versat...

Brock Taylor (Horsham)

Horsham, Sussex, RH12 1HL

01403 272 022

How much is your home worth?

Use our short form to request a valuation of your property.

Request a Valuation

Mortgage Calculator

Amount Borrowed: £
Total Amount Repayable: £
Total Monthly Payment: £
©2026 The Guild of Property Professionals. All rights reserved. Terms and Conditions | Privacy Policy | Cookie Policy | Complaints Policy | Members Login
The Guild of Property Professionals Trading Address: 121 Park Lane, London W1K 7AG. GPEA Limited. Registered in England & Wales.  Company No: 02819824.  Registered Office Address: 2 St. Stephen's Court, St. Stephen's Road, Bournemouth, Dorset, England, BH2 6LA.  VAT Registration No: 576 8795 61
Book a Property Valuation Update Cookies Preferences