Cross Street, Hoxne, IP21

£465,000

4 Bedroom Detached House for sale in Hoxne

4

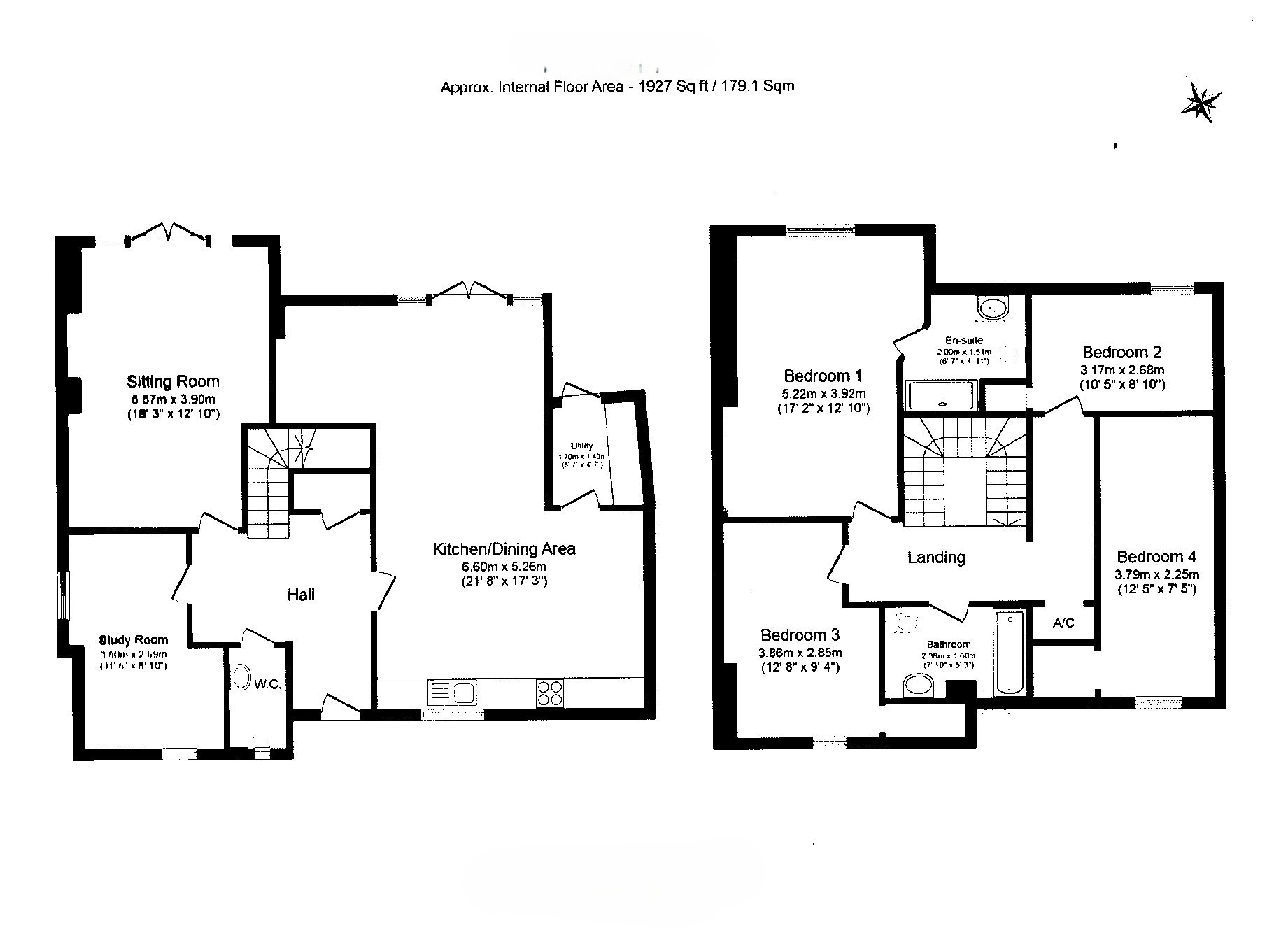
An individual detached 4 bedroom house designed with cottage influences and much character. The well planned interior includes a study, utility room and en suite shower room to the master bedroom in addition to a roomy, social family kitchen dining space. There will be NO ONWARD CHAIN.

This individual house was designed and built to the owners requirements and much thought and detail went into the design and execution. Cottage style external elements make for a pretty frontage and internally the combination of rooms work well together and vary from many of the more standard detached houses. A welcoming hall serves as a hub to the ground floor spaces which include a large social kitchen dining space, lounge, study and cloakroom. The kitchen also features a utility room at the rear. Upstairs, four bedrooms include a large master bedroom with en suite along with three well balanced additional rooms. As you would expect, windows are double glazed and within timber frames but unlike many similar properties, Cherry Tree House is lucky in having underflooring throughout both ground and first floors. Furthermore, for a relatively new house there is a notable amount of built-in storage upstairs.    The house is currently Let with the tenancy expected to come to an end in April 2026 after which there will be no onward chain.

Important Information

  • This is a Freehold property.

Property Ref: EYE260008

Share:

Similar Properties

Hoxne Road, Denham, Eye, IP21

3 Bedroom Detached Bungalow | £435,000

An individual detached bungalow with huge potential to create a stunning 21st Century, energy efficient, single storey h...

Church Street, Eye, Suffolk, IP23

3 Bedroom End of Terrace House | £425,000

This town house is not what it might look like! A number of surprises lie behind the door not least its size and depth a...

The Street, Occold, IP23

4 Bedroom Detached House | £395,000

*** REDUCED TO SELL *** A cracking period village cottage with extensive, flexible living space. 3 or 4 Bedrooms plus St...

Church Street, Eye, IP23

3 Bedroom End of Terrace House | £495,000

REDUCED TO SELL! NO ONWARD CHAIN. An eye catching period town cottage, Listed Grade II and with two car parking spaces t...

The Rookery, Eye, IP23

5 Bedroom Link Detached House | £499,000

One of the larger, almost detached townhouses within Eye, offering up to 5 bedrooms along with 3 reception rooms and goo...

Crossing Road, Palgrave, IP22

3 Bedroom Detached House | £500,000

This apparent barn conversion is in fact a bespoke 2 or 3 bedroom Scandia-Hus dwelling. Scandia-Hus are renowned for the...

Harrison Edge Estate Agents (Eye)

Eye, Suffolk, IP23 7AN

01379871563

How much is your home worth?

Use our short form to request a valuation of your property.

Request a Valuation

Mortgage Calculator

Amount Borrowed: £
Total Amount Repayable: £
Total Monthly Payment: £
©2026 The Guild of Property Professionals. All rights reserved. Terms and Conditions | Privacy Policy | Cookie Policy | Complaints Policy | Members Login
The Guild of Property Professionals Trading Address: 121 Park Lane, London W1K 7AG. GPEA Limited. Registered in England & Wales.  Company No: 02819824.  Registered Office Address: 2 St. Stephen's Court, St. Stephen's Road, Bournemouth, Dorset, England, BH2 6LA.  VAT Registration No: 576 8795 61
Book a Property Valuation Update Cookies Preferences