Lynton Road, Hythe, Kent

Guide Price
£360,000
SSTC
This property listing is now SSTC

3 Bedroom End of Terrace House for sale in Hythe

3 1
  • End-Terraced
  • Three Bedroom
  • Loft Room
  • Double glazing throughout
  • Sun room/utility area
  • No onward chain

A charming three bedroom end-terraced home with additional loft room, conveniently located close to Hythe town centre. The property comprises an entrance hall, living room, dining room, kitchen, cloakroom and sun room with utility area to the ground floor, with three bedrooms and a family bathroom to the first floor, and a versatile loft room above enjoying views towards Hythe town and St Leonard’s Church. Benefits include exposed wooden floorboards, feature cast iron fireplaces, double glazing throughout and gas fired central heating. Externally, the property enjoys a low maintenance rear garden with shed. Offering character, charm and excellent potential as well as the added benefit of no onward chain, this property is well worth viewing.

Situated within level walking distance of the town centre and seafront, the seafront offering an unspoilt promenade for pleasant walks, the town centre offering a selection of independent shops, together with Waitrose and Sainsbury's stores. The library, Oakland's health centre and dentists' surgeries are all also located within the general town centre area, and the historic Royal Military Canal runs through the centre of the town. The M20 Motorway, Channel Tunnel Terminal and Port of Dover are also easily accessed by car; high speed rail services are available from the Folkestone railway stations, giving access to London St Pancras in just over fifty minutes.

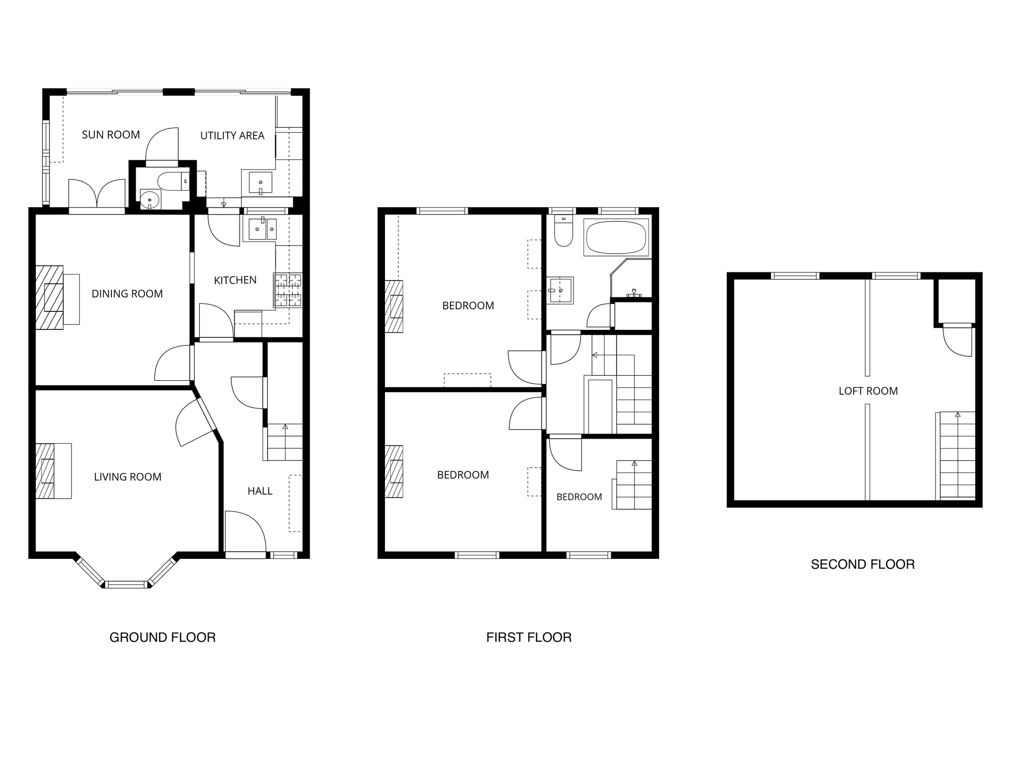
GROUND FLOOR

ENTRANCE HALL
with composite double glazed front door with frosted window to side, radiator, understairs storage cupboard

LIVING ROOM
13'3" x 13'10"
with exposed floorboards, uPVC double glazed bay window, radiator, log burner (currently not in working order) with tiled hearth and wooden surround

DINING ROOM
11'1" x 12'4"
with exposed floorboards, radiator, hatch to kitchen, feature fireplace with tiled hearth and brick surround, glazed doors to sun room

KITCHEN
7'10" x 8'11"
with tiled flooring, a selection of high and low level kitchen cabinets, laminate worktops, localised tiling, glazed door leading to sun room with glazed window to side, one and a half bowl stainless steel sinks, space for under-counter fridge, four ring gas hob with extractor fan over, integrated double oven

SUN ROOM/UTILITY AREA
18'4" x 8'1"
with exposed floorboards, utility area with low and high level cupboards, ceramic sink with taps over, space and plumbing for washing machine, space for tall fridge freezer, localised tiling, glazed sliding doors to rear garden

CLOAKROOM
with tile effect vinyl flooring, WC, localised tiling, hand basin with mixer taps over

FIRST FLOOR

LANDING
with radiator

BEDROOM
11'4" x 11'7"
with uPVC double glazed window overlooking front, radiator, feature cast iron fireplace

BEDROOM
11'4" x 12'6"
with uPVC double glazed window overlooking rear, radiator, built in wardrobe, feature cast iron fireplace

BATHROOM
with tiled flooring, airing cupboard with hot water cylinder and shelving over, WC, uPVC double glazed frosted window, roll top bath with hand shower attachment, shower cubicle, localised tiling, hand basin with taps over, towel radiator

BEDROOM
7'8" x 8'2"
With radiator, uPVC double glazed windows to front, storage cupboard, stairs leading to

SECOND FLOOR

LOFT ROOM
17'5" x 16'0"
with wood effect laminate flooring, Velux windows overlooking Hythe Town and St Leonard’s Church, eaves storage cupboards, cupboard housing water tank, radiator

OUTSIDE
To the rear, the property enjoys a low maintenance rear garden which is laid to lawn with a brick block paving & raised decked seating area with the rest of the garden being borders with planting with the added benefit of a shed. Side access brings you to the front where there is a low maintenance pebbled front garden with path leading to the front door and a selection of planting.

Important Information

  • This is a Freehold property.
  • This Council Tax band for this property is: C

Property Ref: LDW856857

Share:

Similar Properties

Brook Close, Hythe, Kent

2 Bedroom Detached Bungalow | Guide Price £350,000

Situated on a generous corner plot, this charming two-bedroom detached chalet bungalow offers versatile accommodation th...

Apartment 1, Cautley House, Hythe, Kent

2 Bedroom Apartment | Guide Price £340,000

Apartment 1 is a beautifully designed first-floor, two-bedroom residence that seamlessly blends style and comfort. Step...

Apartment 7, Cautley House, Hythe, Kent

2 Bedroom Apartment | Guide Price £330,000

Apartment 7 is a beautifully appointed second-floor, two-bedroom residence that offers a perfect blend of contemporary s...

Lynton Road, Hythe, Kent

3 Bedroom Terraced House | Guide Price £375,000

A well presented three bedroom terraced home located within level walking distance of both Hythe Town & the beach. The p...

Apartment 2, Cautley House, Hythe, Kent

2 Bedroom Apartment | Guide Price £375,000

Apartment 2 is a beautifully appointed first-floor, two-bedroom residence that offers a perfect blend of contemporary st...

11 The Residence, South Road, Hythe, Kent

2 Bedroom Apartment | Guide Price £375,000

Apartment 11 is a ground floor apartment comprising of an open plan living room/kitchen/diner, double bedroom with en-su...

Rogans (Hythe)

Osborne House, 3/5 Portland Road, Hythe, Kent, CT21 6EG

01303 267421

How much is your home worth?

Use our short form to request a valuation of your property.

Request a Valuation

Mortgage Calculator

Amount Borrowed: £
Total Amount Repayable: £
Total Monthly Payment: £
©2026 The Guild of Property Professionals. All rights reserved. Terms and Conditions | Privacy Policy | Cookie Policy | Complaints Policy | Members Login
The Guild of Property Professionals Trading Address: 121 Park Lane, London W1K 7AG. GPEA Limited. Registered in England & Wales.  Company No: 02819824.  Registered Office Address: 2 St. Stephen's Court, St. Stephen's Road, Bournemouth, Dorset, England, BH2 6LA.  VAT Registration No: 576 8795 61
Book a Property Valuation Update Cookies Preferences