St Leonards Road, Hythe, Kent

Offers in excess of
£599,995

4 Bedroom Detached House for sale in Hythe

4 1
  • Substantial detached family home
  • Four bedrooms & study
  • Partial refurbishment which needs finishing
  • Stones throw from the beach
  • Large rear garden
  • No onward chain

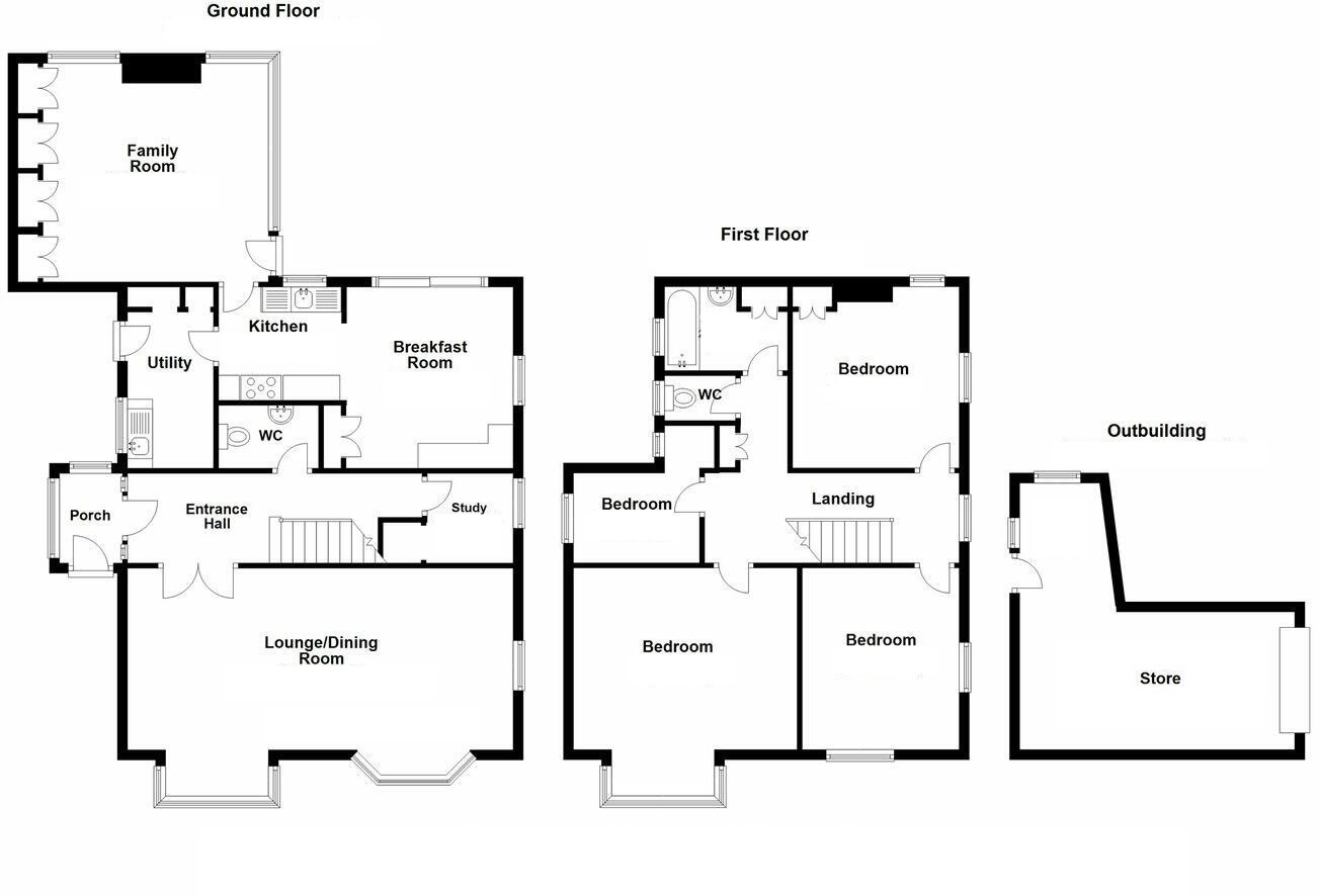
This substantial four-bedroom period home occupies a surprisingly large plot and is conveniently located within a short stroll of the seafront and within level walking distance of the high street. Renovation works have started on the property but is an unfinished project allowing the purchaser to finish off works to their own taste. The ground floor accommodation comprises a large living/dining room, a study, cloakroom, kitchen/diner and a separate utility room, single-storey rear extension family room with an open fireplace. Upstairs, there are four bedrooms, three of which are doubles, along with a bathroom and a separate cloakroom. To the rear, there is a large garden with access from the patio to a detached store room. With the added benefit of no onward chain, an early viewing is highly recommended to fully appreciate the potential of this family home.

Situated in a central location within level walking distance of the seafront promenade, the Royal Military Canal and Hythe town centre, this property enjoys excellent accessibility. The town centre offers a good range of independent shops, along with Waitrose and Sainsbury’s. Local amenities include doctors’ surgeries, a dentist and a library. Primary schools are located close by, while secondary education is available in nearby Saltwood, with boys’ and girls’ grammar schools in Folkestone. The M20 motorway, Channel Tunnel Terminal and the Port of Dover are all easily accessed by car. High-speed rail services run from Folkestone West, approximately a 15-minute drive away, with journeys to London St Pancras taking just under an hour. The area is also well served by golf courses, including Hythe Imperial, Sene Valley and Etchinghill.

GROUND FLOOR

ENTRANCE PORCH
6'0" x 4'0"

RECEPTION HALL
18'11" x 5'10"

LOUNGE/DINING ROOM
25'3" x 12'0"

KITCHEN
8'0" x 7'5"

BREAKFAST ROOM
11'10" x 10'10"

UTILITY ROOM
12'5" x 5'11"

FAMILY ROOM
16'5" x 14'4"

STUDY
8'7" x 5'10"

WC

FIRST FLOOR

LANDING

BEDROOM
11'11" x 10'11"

BEDROOM
12'11" x 11'10"

BEDROOM
15'0" x 11'10"

BEDROOM
8'3" x 5'11"

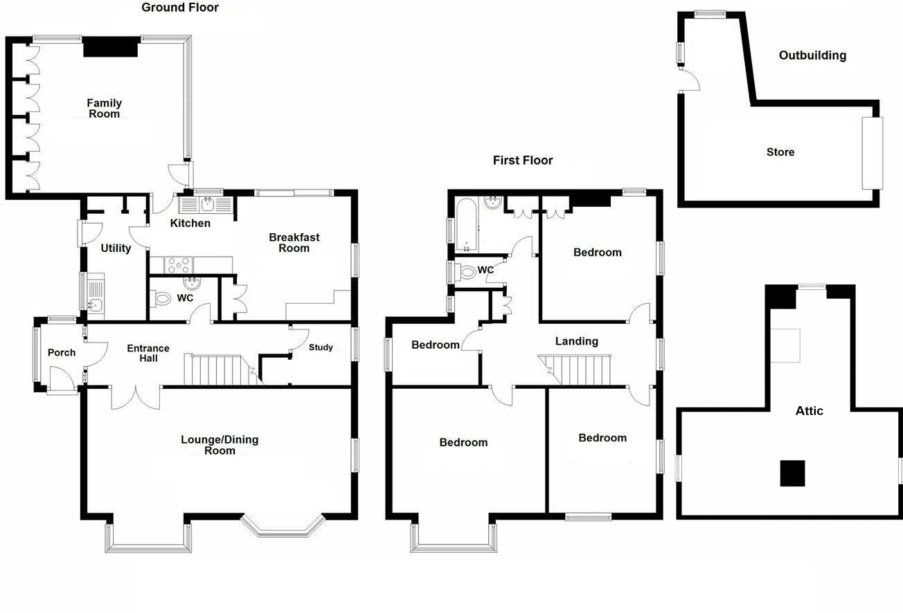
SECOND FLOOR

LOFT ROOM (Measured to maximum points)
30'0" x 25'3"

CLOAKROOM

BATHROOM

OUTSIDE

STORE ROOM
18'1" x 9'1"

Important Information

  • This is a Freehold property.
  • This Council Tax band for this property is: E

Property Ref: LDW554886

Share:

Similar Properties

Seabrook Road, Hythe, Kent

5 Bedroom Semi-Detached House | Guide Price £575,000

A five bedroom semi-detached townhouse which, although in need of updating throughout, enjoys views to sea from the firs...

Seabrook Road, Hythe, Kent

3 Bedroom Detached Bungalow | Guide Price £575,000

A beautifully presented and spacious three bedroom link detached bungalow, backing onto the Royal Military Canal also wi...

Pentire, Seabrook Road, Hythe, Kent

3 Bedroom Semi-Detached Bungalow | Guide Price £525,000

A beautifully presented and spacious three bedroom semi-detached bungalow, located just a short walk from the Royal Mili...

West Parade, Hythe, Kent

2 Bedroom Apartment | Guide Price £615,000

A stunning two bedroom modern apartment located on Hythe's beachfront enjoying panoramic sea views over the English Chan...

North Road, Hythe, Kent

3 Bedroom Semi-Detached House | Guide Price £635,000

Located along the ever-popular North Road and enjoying truly exceptional panoramic sea views, this beautifully presented...

Seascape, The Esplanade, Sandgate, Kent

2 Bedroom Penthouse | Guide Price £660,000

A stylish and contemporary two bedroom penthouse apartment presented in immaculate condition and enjoying panoramic sea...

Rogans (Hythe)

Osborne House, 3/5 Portland Road, Hythe, Kent, CT21 6EG

01303 267421

How much is your home worth?

Use our short form to request a valuation of your property.

Request a Valuation

Mortgage Calculator

Amount Borrowed: £
Total Amount Repayable: £
Total Monthly Payment: £
©2026 The Guild of Property Professionals. All rights reserved. Terms and Conditions | Privacy Policy | Cookie Policy | Complaints Policy | Members Login
The Guild of Property Professionals Trading Address: 121 Park Lane, London W1K 7AG. GPEA Limited. Registered in England & Wales.  Company No: 02819824.  Registered Office Address: 2 St. Stephen's Court, St. Stephen's Road, Bournemouth, Dorset, England, BH2 6LA.  VAT Registration No: 576 8795 61
Book a Property Valuation Update Cookies Preferences