High Street, Idle,

Guide Price
£90,000
Under Offer
This property listing is now Under Offer

2 Bedroom Terraced House for sale in Idle

2 1
  • THE IDLE VETERINARY CENTRE - 3 STOREY BUILDING
  • GRADE 11 LISTED GROUND FLOOR SHOP WITH TWO FLOORS
  • 2 BEDROOM APARTMENT ABOVE THE SHOP
  • REAR SMALL FLAGGED COMMUNAL AREA
  • PARKING ON ROAD
  • GCH WITH A CONDENSING COMBI-BOILER
  • OFFERS POTENTIAL FOR CONVERSION SUBJECT TO PLANNING PERMISSION
  • POPULAR VILLAGE LOCATION
  • GREAT INVESTMENT OPPORTUNITY
  • NO CHAIN SALE


For sale by modern method of Auction with Advanced Property Auction?.starting price ?90,000 plus reservation fees apply.

Starting Bid and Reserve Price

*Please note this property is subject to a reserve price which is generally no more than 10% higher than the starting bid, both the starting bid and reserve price can be subject to change. T&C's apply to the online Modern Method of Auction, which is powered by Advanced Property Auctions. 

ORIGINALLY THE IDLE VETERINARY CENTRE * GRADE 11 LISTED BUILDING * MAIN ROAD POSITION CLOSE TO THE THRIVING VILLAGE CENTRE * GCH WITH A CONDENSING COMBI-BOILER * THE BUILDING HAS THREE FLOORS WHICH THE SHOP PREMISES HAD THE BASEMENT ALSO IN USE AS PART OF THE PRACTICE * THE FIRST FLOOR IS OFFERING THE OPPORTUNITY OF A 2 BEDROOM APARTMENT LIVING ABOVE ACCOMMODATON * ALTERNATIVELY SUBJECT TO PLANNING PERMISSION IT COULD CONVERT BACK TO A RESIDENTIAL PROPERTY OR OFFER OTHER COMMERCIAL USES * THERE IS A SMALL REAR COMMUNAL FLAGGED AREA * MAIN ROAD PARKING * NO CHAIN SALE * INVESTORS OPPORTUNITY * 

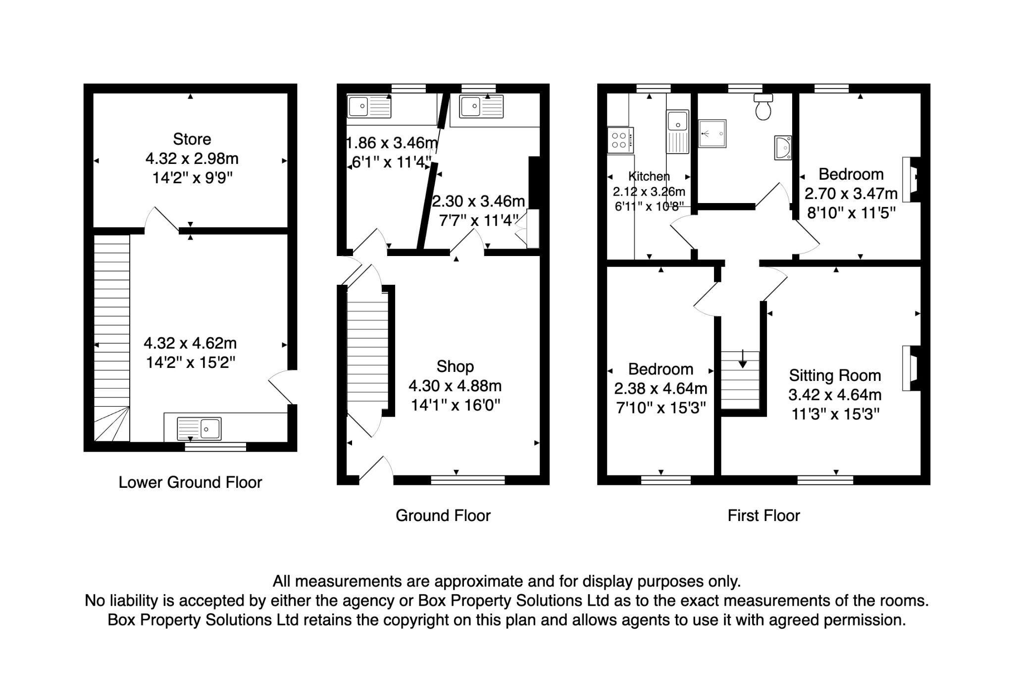
Ground Floor: Front door into the old reception room, wood window, radiator, alarm, fire alarm system, internal door leads into the:-

Rear Reception Room: Fitted units, radiator, sliding door leads into an:- 

Additional Ground floor room: Radiator.

Basement: Entrance door leads down to the basement, originally part of the commercial premises, access basement door onto the road, I- mini 2 C30 condensing combi-boiler, fitted units, dood leads into a vaulted cellar. 

Access door leads to the upper floor:  

Lounge: Feature marble fireplace, wood windows to the front with a bench seat under, radiator. 

Kitchen: Range of units in beech, work tops, sink, piped for a gas cooker, plumbed for an auto-washer, wood window, radiator. 

Bedroom 1: Radiator, front wood window with a bench saeat under. 

Bedroom 2: Radiator, rear mullion style wood windows to rear, cast iron fireplace feature.

Shower Room. Wash basin and wc in white, shower cubicle with an electric shower unit, frosted wood window, radiator.  

Externally: Front road parking, rear communal area.  

Offered for sale at a GUIDE PRICE of ?90,000, this charming Grade II listed, three-storey property presents a rare opportunity to acquire a versatile and characterful building located in the heart of Idle, a popular and well-established village in Bradford. The ground floor and basement features a commercial unit unoccupied previously by a veterinary centre, while the upper floor accommodates a spacious two-bedroom apartment living above, providing an ideal investment opportunity or potential for further conversion, subject to the necessary planning permissions.
The property comprises a traditional ground floor retail/shop front with excellent visibility on the High Street, plus 2 additional rooms, along with a basement of one room plus a vaulted cellar. The upper-floor has been part of the practice but offers potentially a 2 bedroom living above apartment, comprising, a comfortable reception room, a fully fitted kitchen, two bedrooms, and a shower room. Gas central heating is supplied via a condensing combination boiler, ensuring energy-efficient warmth throughout the property, wood windows, alarmed. 
Externally, the property enjoys access to a rear communal area and benefits from front on-road parking. Situated in a prime location within Idle village, close proximity to a variety of local amenities. 
Offered with no onward chain, this property represents a fantastic opportunity for investors, business owners or those looking for a multi-use premises in a vibrant village atmosphere. Early viewing is highly recommended to appreciate the full potential of this unique offering. NOTE THE PROPERTY IS BEING SOLD BY THE MODERN METHOD OF AUCTION.

Auctioneer's Comments:

This property is for sale by the online Modern Method of Auction which is not to be confused with traditional auction. The Modern Method of Auction allows the purchaser 28 days to achieve exchange of contracts from the date the buyer's solicitor is in receipt of the draft contracts and a further 28 days thereafter to complete. Allowing the additional time to exchange on the property means interested parties can proceed with traditional residential finance. Upon close of a successful auction or if the vendor accepts an offer during the auction, the buyer will be required to put down a non-refundable Reservation Fee of 3.5% to a minimum of ?5,500.00 + VAT (?1100.00) = (?6,600.00) which secures the sale and takes the property off the market. Fees paid to the Auctioneer are in addition to the price agreed. Further clarification on this must be sought from your legal representative. The buyer will be required to sign an Acknowledgement of Reservation form to confirm acceptance of terms prior to solicitors being instructed. Copies of the Reservation form and all terms and conditions can be found in the Buyer Information Pack which can be downloaded for free from the auction section of our website or requested from our Auction Department. Please note this property is subject to a reserve price which is generally no more than 10% in excess of the Starting Bid, both the Starting Bid and reserve price can be subject to change. T&C'S apply to the online Modern Method of Auction, which is operated and powered by Advanced Property Auction.

Energy Performance Certificate (EPCs) https://find-energy-certificate.service.gov.uk/energy-certificate/6712-4222-9714-1304-8686 https://find-energy-certificate.service.gov.uk/energy-certificate/8746-4870-0173-1882-0583

Energy Performance Certificates (EPCs) give information on how to make your home more energy efficient and reduce your energy costs. All homes bought, sold or rented require an EPC. EPCs carry ratings that compare the current energy efficiency and estimated costs of energy use with potential figures that your home could achieve. Potential figures are calculated by estimating what the energy efficiency and energy costs could be if energy saving measures were put in place. The rating measures the energy efficiency of your home using a grade from ‘A’ to ‘G’. An ‘A’ rating is the most efficient, while ‘G’ is the least efficient. The average efficiency grade to date is ‘D’. All homes are measured using the same calculations, so you can compare the energy efficiency of different properties. 

While we endeavour to make our sales particulars fair, accurate and reliable, they are only a general guide to the property and, accordingly, if there is any point which is of particular importance to you, please contact the office and we will be pleased to check the position for you, especially if you are contemplating travelling some distance to view the property.

3. The measurements indicated are supplied for guidance only and as such must be considered incorrect.

4. Services: Please note we have not tested the services or any of the equipment or appliances in this property, accordingly we strongly advise prospective buyers to commission their own survey or service reports before finalising their offer to purchase.

5. THESE PARTICULARS ARE ISSUED IN GOOD FAITH BUT DO NOT CONSTITUTE REPRESENTATIONS OF FACT OR FORM PART OF ANY OFFER OR CONTRACT. THE MATTERS REFERRED TO IN THESE PARTICULARS SHOULD BE INDEPENDENTLY VERIFIED BY PROSPECTIVE BUYERS OR TENANTS. NEITHER MARTIN LONSDALE ESTATES LIMITED NOR ANY OF ITS EMPLOYEES OR AGENTS HAS ANY AUTHORITY TO MAKE OR GIVE ANY REPRESENTATION OR WARRANTY WHATEVER IN RELATION TO THIS PROPERTY.

AML Please note if you proceed with an offer on this property we are obliged to undertake mandatory Anti Money Laundering checks on behalf of HMRC. All estate agents have to do this by law and we outsource this process to our compliance partners Credas who charge a fee for this service.

Property Reference 0015467

Important Information

  • This is a Freehold property.

Property Ref: 0015467

Share:

Similar Properties

Aireview Crescent, Shipley,

1 Bedroom Not Specified | £89,995

SUPERBLY PRESENTED GROUND FLOOR MAISONETTE * MUCH IMPROVED AND FULLY MODERNISED * GCH & IDEAL CONDENSING BOILER * UPVC D...

Vicarage Road, Shipley,

2 Bedroom Semi-Detached House | £89,950

2 BEDROOM BAY SEMI-DETACHED * GCH & UPVC DG * MODERN FITTED KITCHEN UNITS IN BEECH * MODERN FITTED SHOWER ROOM WITH CHRO...

Fairbank, Shipley,

3 Bedroom Terraced House | £89,950

MID-STONE TERRACE * 3 BEDROOMS OVER 3 FLOORS * GCH & IDEAL CONDENSING BOILER * UPVC DG * FRONT & REAR GARDENS * CLOSE TO...

Highfield Road, Idle,

2 Bedroom Terraced House | Offers in region of £94,950

2 BEDROOM FRONT FACING BACK TO BACK TERRACE PROPERTY * THE ACCOMMODATION IS ON THREE LEVELS * SPACIOUS LOUNGE * BASEMENT...

Emmeline Close, Idle,

2 Bedroom Flat | £94,950

2 BEDROOM GROUND FLOOR APARTMENT WITH THE OPTION TO USE ONE BEDROOM AS A DINING ROOM * TASTEFULLY DECORATED AND MUCH IMP...

Croft Street, Idle,

2 Bedroom Terraced House | £94,950

2 BEDROOM TERRACE PROPERTY * GCH & UPVC DG * WELL PRESENTED THROUGHOUT * CLOSE TO THE VILLAGE AMENITIES * AN IDEAL FTB C...

Martin S Lonsdale Estate Agents (Bradford)

Thackley, Bradford, West Yorkshire, BD10 8JT

01274 622073

How much is your home worth?

Use our short form to request a valuation of your property.

Request a Valuation

Mortgage Calculator

Amount Borrowed: £
Total Amount Repayable: £
Total Monthly Payment: £
©2026 The Guild of Property Professionals. All rights reserved. Terms and Conditions | Privacy Policy | Cookie Policy | Complaints Policy | Members Login
The Guild of Property Professionals Trading Address: 121 Park Lane, London W1K 7AG. GPEA Limited. Registered in England & Wales.  Company No: 02819824.  Registered Office Address: 2 St. Stephen's Court, St. Stephen's Road, Bournemouth, Dorset, England, BH2 6LA.  VAT Registration No: 576 8795 61
Book a Property Valuation Update Cookies Preferences