Marlands Road, Clayhall, IG5

Guide Price
£600,000

3 Bedroom Semi-Detached House for sale in Ilford

2 3 2
  • Three-bedroom semi-detached house
  • Through lounge plus second reception
  • Ground floor shower room and WC
  • Loft room with fixed staircase
  • 72ft north-westerly rear garden
  • Detached double garage with power
  • Off-street parking for multiple cars

Guide Price £600,000 - £650,000. Payne & Co are pleased to offer for sale, with no onward chain, this extended three-bedroom semi-detached home in the sought-after Clayhall area, presenting an excellent opportunity for buyers looking to modernise and personalise a property to their own taste.

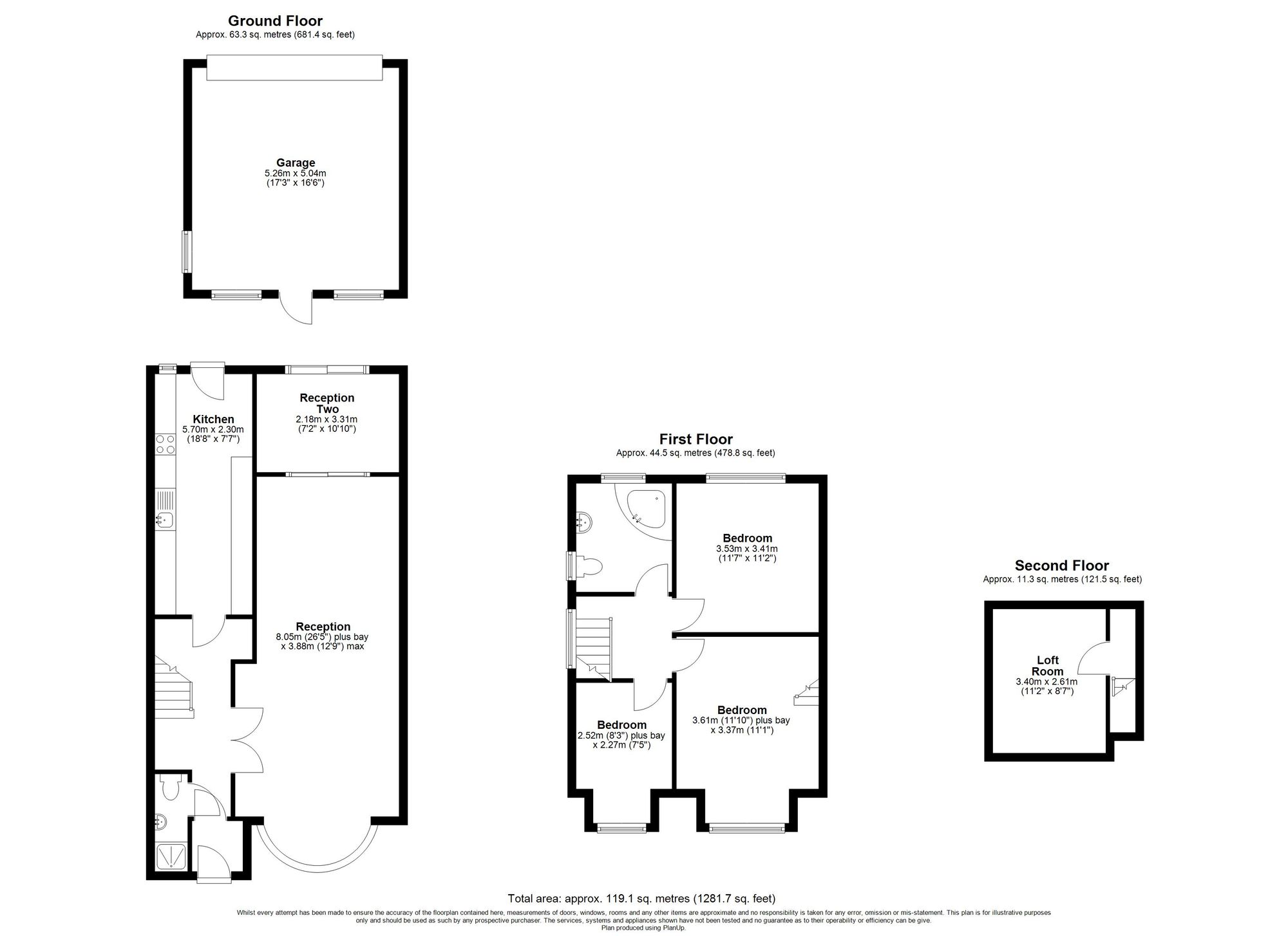
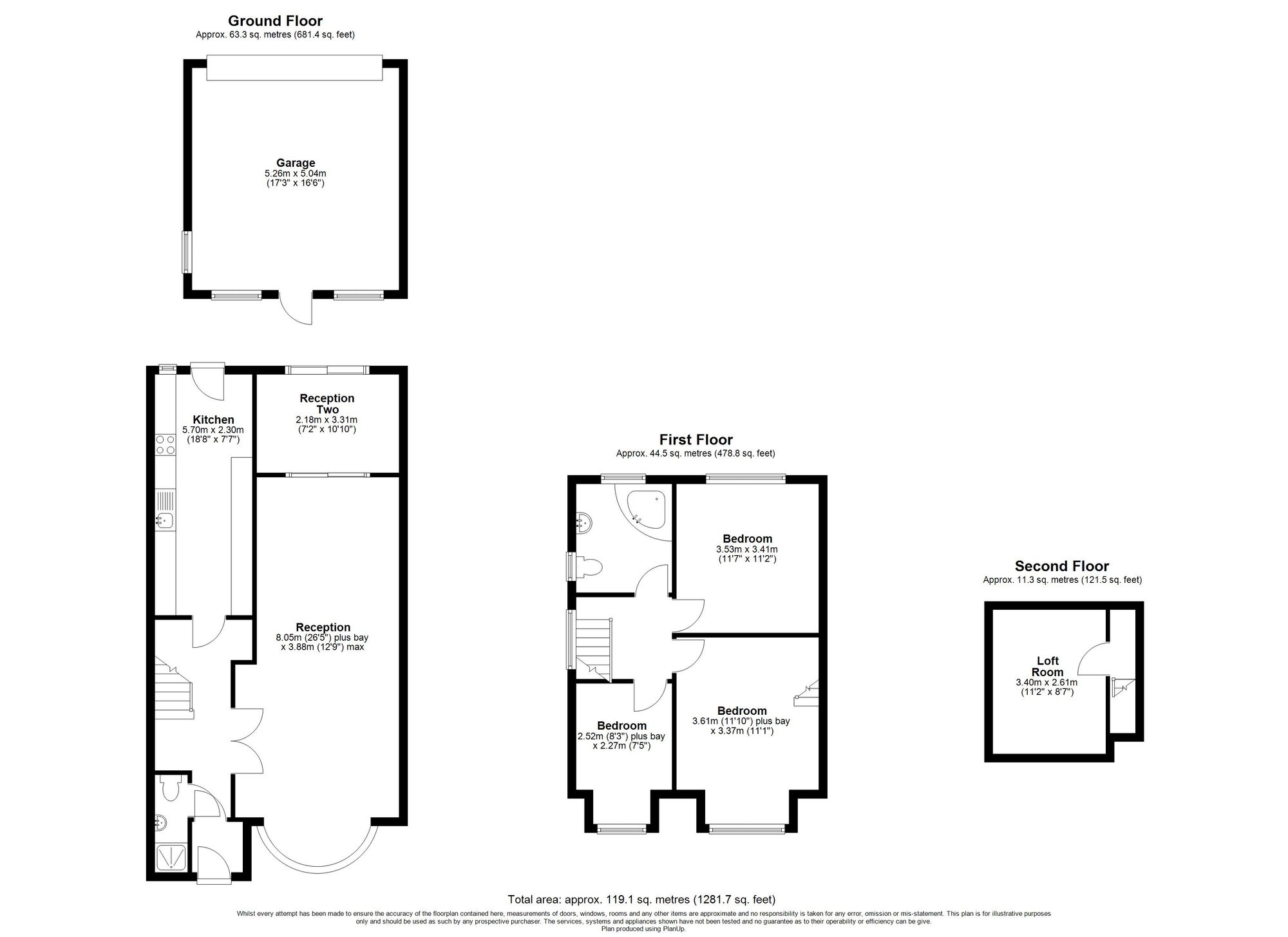
The ground floor comprises a spacious through lounge with double doors opening to the hallway, leading to a second reception room with views over the rear garden. A galley-style kitchen provides direct access to the garden, while a ground floor WC with shower adds further practicality.

On the first floor are three well-proportioned bedrooms, all benefitting from built-in wardrobes, along with a family bathroom. Bedroom one features fixed stairs leading to a loft room, offering additional versatile space.

Externally, the property boasts off-street parking for multiple vehicles, shared pedestrian side access and a rear garden extending approximately 72ft with a desirable north-westerly aspect. To the rear of the property is a detached double garage with power, accessed via a service road.

Clayhall is a popular residential location within Ilford, close to green open spaces including Clayhall Park and Fairlop Waters Country Park, which offer leisure facilities, walking routes and outdoor activities. A range of local amenities, cafés and shops can be found in nearby Barkingside and Gants Hill, along with several well-regarded schools, making the area particularly appealing to families and first-time buyers.

Excellent transport links are provided by Gants Hill and Barkingside Underground stations (Central Line), offering direct access to central London, with journey times to Liverpool Street of approximately 25–30 minutes. Numerous local bus routes also serve Ilford, Redbridge and surrounding areas.

Energy Efficiency Current: 55.0
Energy Efficiency Potential: 78.0

Important Information

  • This is a Freehold property.
  • This Council Tax band for this property is: F

Property Ref: 211a806a-167f-4814-9775-7eef928b9608

Share:

Similar Properties

Sunnyside Road, Ilford, IG1

4 Bedroom End of Terrace House | Guide Price £600,000

Guide Price: £600,000 - £650,000 Four bedroom end of terrace house with off-street parking, outbuilding, extended layout...

Faircross Avenue, Barking, IG11

5 Bedroom Terraced House | Offers in excess of £600,000

Immaculate five-bedroom terraced house in Barking with two reception rooms, three bathrooms, modern kitchen, close to sh...

Wards Road, Ilford, IG2

4 Bedroom End of Terrace House | Guide Price £600,000

Guide Price £600,000 - £625,000. Charming end-of-terrace property with 4 bedrooms, modern kitchen, 2 receptions, off-str...

Endsleigh Gardens, Ilford, IG1

3 Bedroom Terraced House | Guide Price £625,000

Guide Price £625,000 - £650,000. This newly refurbished three-bedroom terraced house in sought-after North Ilford featur...

Parsloes Avenue, Dagenham, RM9

5 Bedroom End of Terrace House | £650,000

An extended five-bedroom end-of-terrace house in Dagenham arranged over three floors, featuring an open-plan kitchen wit...

Ranelagh Gardens, Ilford, IG1

4 Bedroom Terraced House | Guide Price £650,000

Rare freehold investment opportunity in Ilford, Guide Price £650,000-£700,000. Two self-contained flats, off-street park...

Payne & Co (Ilford)

151 Cranbrook Road, Ilford, Essex, IG1 4TA

020 8518 3000

How much is your home worth?

Use our short form to request a valuation of your property.

Request a Valuation

Mortgage Calculator

Amount Borrowed: £
Total Amount Repayable: £
Total Monthly Payment: £
©2026 The Guild of Property Professionals. All rights reserved. Terms and Conditions | Privacy Policy | Cookie Policy | Complaints Policy | Members Login
The Guild of Property Professionals Trading Address: 121 Park Lane, London W1K 7AG. GPEA Limited. Registered in England & Wales.  Company No: 02819824.  Registered Office Address: 2 St. Stephen's Court, St. Stephen's Road, Bournemouth, Dorset, England, BH2 6LA.  VAT Registration No: 576 8795 61
Book a Property Valuation Update Cookies Preferences