Foxbeare Road, Hele, Ilfracombe

Guide Price
£150,000

Land for sale in Ilfracombe

  • Large building plot of approximately 1.54 acres (0.623 hectares)
  • Outskirts of the town
  • Plans previously approved under application number 56250
  • Former approval for 3 high quality detached homes of approx. 186m2 (2000ft2)
  • 4-bedroom accommodation arranged over 3 floors
  • Double garages
  • Approval subject to final 106 Agreement
  • Views over the Chambercombe Valley and countryside
  • A few hundred metres from Hele Bay Beach
  • Option to revise planning permission for alternative residential scheme

Large building plot of approximately 1.54 acres (0.623 hectares)
Outskirts of the town
Plans previously approved under application number 56250
Former approval for 3 high quality detached homes of approx. 186m2 (2000ft2)
4-bedroom accommodation arranged over 3 floors
Double garages
Approval subject to final 106 Agreement
Views over the Chambercombe Valley and countryside
A few hundred metres from Hele Bay Beach
Option to revise planning permission for alternative residential scheme

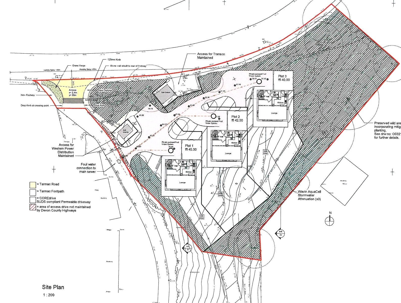
An opportunity arises to purchase a substantial building plot of approximately 1.54 acre (0.62 hectares) located on the outskirts of the town enjoying a sunny position with south facing views up the Chambercombe Valley and over the countryside.

Plans were previously approved under application number 56250 by North Devon District Council for the construction of three high quality and spacious 4 bedroom detached family homes of approximately 186m2 (2000ft2), together with double garages and parking and gardens. (The consent has now lapsed but will be reinstated by the current owner).

As part of the previous planning permission there is a 106 agreement requiring the developer to contribute £16,144.50 towards Public Open Space. There was also the need to enhance the access to the site from the junction of Foxbeare Road and Watermouth Road and the road surface itself down to the site entrance. The land is also subject to an overage clause requiring £25,000 per plot to be paid to the original land owner on completion of the respective houses.

Planning permission would need to be resubmitted again and a decision determined by the local authority. There may be different planning conditions or s106 agreement imposed for any new application that is submitted.

The development will be accessed from Foxbeare Road onto a new, private section of road which will lead to each of the three properties. Each of the previously proposed houses will be split level in design and typically comprise a large open living room and kitchen area with bi-fold glass doors opening onto a south facing balcony enjoying the countryside views. There will be a kitchen, utility room and cloakroom/wc completing the ground floor accommodation. On the first floor there is a master bedroom with dressing area and access into an en suite bathroom which is also shared with Bedroom 2. The lower ground floor accommodation comprises two further double bedrooms, both with en suite facilities and a study/fifth bedroom. Each house will have a double garage and additional parking and a sloping garden.

The original idea from the current owner was to build the properties as 'passive houses' and further details would be available from the architects. However, it is considered that the planning permission could be varied upon being resubmitted and other options could include reducing the number of houses built on the site, having it for one large family home, for example.

The land is made up of three separate areas (a plan is available upon request) and those three area amount to 1.54 acres in total. Part of the land (0.18 acres), is ground that does not have full registered title to the current owner but which has been tended and maintained by the current owner for many years. This is a small area of the overall site, is mainly scrub land, and is not an area on where any new buildings would be erected.

Services to the site are all nearby (Watermouth or Foxbeare Road) and the drainage will be part of the mains system with each house having a pump pushing waste up to the main sewer in Foxbeare Road. We understand that there is a gas main that runs under the site which Wales & West Utilities (local gas company) will need to be consulted over and should be liable to move.

Applicants are advised to proceed from our offices in an easterly direction along the High Street heading out of town sign posted Combe Martin. Continue in into Portland Street and up the hill pass through the temporary traffic lights at the McCarthy and Stone building site. Pass through further traffic lights and continue along the road passing the Thatched Inn and shortly after the brow of the hill and the entrance to the swimming pool upon reaching Foxbeare road the site will be found on the right hand side.

Important Information

  • This is a Freehold property.

Property Ref: 55837_NHO250073

Share:

Similar Properties

Apsley Terrace, Ilfracombe, Devon

1 Bedroom Apartment | £150,000

Situated in a popular and convenient location close to the High Street and amenities is this very spacious and well-pres...

Oxford Grove, Ilfracombe, Devon

3 Bedroom Apartment | £150,000

This well-presented three-bedroom maisonette spans two floors, offering generous, versatile living space with a contempo...

High Street, Ilfracombe, Devon

4 Bedroom Apartment | Offers in excess of £150,000

An exceptional and rare opportunity to acquire a substantial mixed-use property prominently positioned on Ilfracombe's b...

Willingcott Valley, Woolacombe, Devon

2 Bedroom House | £160,000

A beautifully presented 2 bedroom, 3 bathroom end terrace holiday cottage situated in the ever popular Willingcott Valle...

Capstone Court, Ilfracombe, Devon

2 Bedroom Apartment | Guide Price £160,000

4 Capstone Court, a well-presented purpose-built second floor flat situated in a desirable residential area of Ilfracomb...

St. Peters Terrace, Ilfracombe, Devon

2 Bedroom Terraced House | Guide Price £165,000

A well-presented 2-bedroom mid-terrace home tucked away in a quiet cul-de-sac with no onward chain.

Webbers Ilfracombe (Ilfracombe)

Ilfracombe, Devon, EX34 9QB

01271 863091

How much is your home worth?

Use our short form to request a valuation of your property.

Request a Valuation

Mortgage Calculator

Amount Borrowed: £
Total Amount Repayable: £
Total Monthly Payment: £
©2026 The Guild of Property Professionals. All rights reserved. Terms and Conditions | Privacy Policy | Cookie Policy | Complaints Policy | Members Login
The Guild of Property Professionals Trading Address: 121 Park Lane, London W1K 7AG. GPEA Limited. Registered in England & Wales.  Company No: 02819824.  Registered Office Address: 2 St. Stephen's Court, St. Stephen's Road, Bournemouth, Dorset, England, BH2 6LA.  VAT Registration No: 576 8795 61
Book a Property Valuation Update Cookies Preferences