Great Glen Place, Inverness, IV3

Offers Over
£222,000
SSTC
This property listing is now SSTC

2 Bedroom Apartment for sale in Inverness

1 2 2
  • Prestigious Great Glen Development
  • Stunning First Floor, 2 Bedroom Apartment
  • Stylish Open Plan Kitchen / Dining / Lounge
  • Spectacular Feature Bay Window
  • Principal Bedroom With En-Suite
  • Luxurious Bathroom
  • Beautifully Maintained Garden Grounds
  • Resident And Visitor Parking
  • EPC Band C

A fantastic opportunity to acquire a stunning two-bedroom first floor apartment within the highly sought-after Great Glen Development - a beautifully restored B-Listed building that effortlessly combines historic character with contemporary luxury.

Accessed via a secure entrance system, this exceptional home offers stylish, modern living within an elegant period setting.

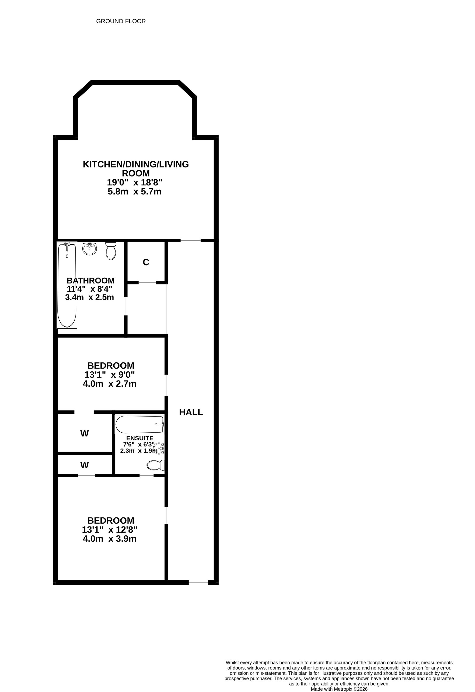
The centrepiece of the apartment is the spectacular open plan kitchen, dining and living space - a bright and impressive area perfect for both entertaining and everyday living. A magnificent bay window forms a striking focal point, flooding the room with natural light and enhancing the sense of space. The contemporary kitchen integrates seamlessly into the living area, creating a sociable and sophisticated environment.

There are two double bedrooms, including a superb principal bedroom with a sleek en-suite shower room. A beautifully finished, luxurious main bathroom serves the second bedroom and guests, completing the accommodation.

Further benefits include gas central heating, double glazing, allocated parking and a secure entry system, ensuring comfort, efficiency and peace of mind.

Externally, the development is surrounded by beautifully maintained garden grounds, offering an attractive and tranquil setting.

Ideal for first-time buyers, professionals, downsizers or investors, this is a stylish, move-in ready home within one of the area’s most desirable developments.

Early viewing is highly recommended — this is an opportunity not to be missed.

Additional Details

EPC Band C
Council Tax Band D

Gas Central Heating
Double Glazed Throughout

Home Report Available By Contacting carol@homesweethomemoves.co.uk

Entry Is By Mutual Agreement

Viewing By Appointment Through Home Sweet Home on 01463 710 151 or call Carol on 07880 888 686

Any offers should be submitted in Scottish legal form to hello@homesweethomemoves.co.uk

These particulars, whilst believed to be correct do not and cannot form part of any contract. The measurements have been taken using a sonic tape measure and therefore are for guidance only.

Important Information

  • This is a Freehold property.
  • This Council Tax band for this property is: D
  • EPC Rating is C

Property Ref: 88ef3e9d-7b4b-499b-9a10-a5805576db2e

Share:

Similar Properties

Broomhall Court, Inverness, IV2

2 Bedroom Flat | Offers Over £220,000

Stylish two-bedroom flat in Inverness with ensuite, modern kitchen, secure entry, residents’ parking, and communal groun...

Bridgend Close, Dingwall, IV15

3 Bedroom Semi-Detached House | Offers Over £220,000

Stylish three-bedroom home in quiet cul-de-sac with modern kitchen, spacious lounge, private driveway, and family bathro...

Culbokie, Dingwall, IV7

3 Bedroom Detached Bungalow | Offers Over £215,000

Three-bedroom detached bungalow in Culbokie, Black Isle - set on approx. 0.35 acres with a generous garden, patio, and e...

Resaurie Gardens, Smithton, IV2

3 Bedroom Semi-Detached House | Offers Over £225,000

Modern three-bed semi-detached villa in quiet cul-de-sac. Features lounge, kitchen diner, en-suite, family bathroom, WC,...

Neil Gunn Road, Dingwall, IV15

3 Bedroom Detached House | Offers Over £230,000

Modern 3-bed detached home in sought-after Dingwall. Features wood-burning stove, utility, garage, spacious garden with...

Pinewood Drive, Inverness, IV2

3 Bedroom Semi-Detached House | Offers Over £235,000

Fantastic opportunity to purchase this impressive 3 bed semi-detached home located in the highly desirable Milton of Ley...

Home Sweet Home Estate Agents (Inverness)

6 Bank Street, Inverness, Highland, IV1 1QY

01463 710151

How much is your home worth?

Use our short form to request a valuation of your property.

Request a Valuation

Mortgage Calculator

Amount Borrowed: £
Total Amount Repayable: £
Total Monthly Payment: £
©2026 The Guild of Property Professionals. All rights reserved. Terms and Conditions | Privacy Policy | Cookie Policy | Complaints Policy | Members Login
The Guild of Property Professionals Trading Address: 121 Park Lane, London W1K 7AG. GPEA Limited. Registered in England & Wales.  Company No: 02819824.  Registered Office Address: 2 St. Stephen's Court, St. Stephen's Road, Bournemouth, Dorset, England, BH2 6LA.  VAT Registration No: 576 8795 61
Book a Property Valuation Update Cookies Preferences