- A delightful unlisted cottage
- In the heart of this sought after village
- No onward chain
- 2 double bedrooms
- Generous sitting/dining room
- Kitchen
- Large landing/study area
- Bathroom
- Courtyard garden to the rear
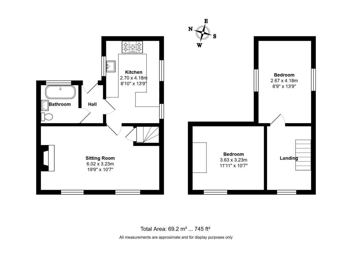
Description  A delightful characterful unlisted cottage set back from the road in the heart of this desirable village of Coddenham and with no onward chain.
Features include large sitting/dining room, well fitted kitchen, two bedrooms, large landing/study area and bathroom with enclosed courtyard garden to the rear. 
About the Area  Coddenham is approximately seven miles north of Ipswich and is a typical English village with church, village shop, recreation ground and leisure centre. It won village of the year in 2002 for its community spirit and there are some fantastic country walks within the village. There is easy access to the A140 to Norwich and A14 to Bury St Edmunds and Cambridge to the west and to Ipswich, Colchester and London via the A12 to the south and east. You are just 15 minutes from the centre of Ipswich by road, which has a main line station to London Liverpool Street journey time of about 60 minutes. There is a range of independent schools nearby and local primary schools include Stonham Aspal, Henley and Helmingham, whilst senior schools can be found at Debenham and Claydon. There are school buses to both Debenham High School and Stonham Aspal Primary School which pick up and drop off in the village. Further amenities can be found in the nearby towns of Needham Market, Stowmarket, Debenham and Ipswich.
The accommodation in more details comprises: 
Entrance door to   
Hall  With Suffolk latch doors to kitchen and bathroom. 
Kitchen Approx 13'9 x 8'10 (4.18m x 2.70m) With two windows to side and window overlooking courtyard garden. Fitted with a matching range of oak wall and base units with granite worktops over and inset with Butler style sink with mixer tap over. Tiled splashbacks. Space for range style cooker, fridge/freezer and washing machine. Suffolk latch door to Sitting/Dining room. 
Sitting/Dining room Approx 19'9 x 10'7 (6.02m x 3.23m) A spacious and light room with two windows to front. Redbrick fireplace with inset wood burning stove creates the main feature of the room. Suffolk latch door with stairs rising to first floor. 
Bathroom   White suite comprising w.c, pedestal hand wash basin and freestanding roll top ball and claw bath with mixer shower attachment. Tiled splashback. Obscure window to rear. 
Landing  A spacious area ideal for a study or reading area. Window to front. Suffolk latch doors to bedrooms. 
Master Bedroom Approx 11'11 x 10'7 (3.63m x 3.23m). Double bedroom with window to front. 
Bedroom 2 Approx 13’9 x 8’9 (4.18m x 2.67m)  Another double room with windows to side and rear. 
Outside  To the rear is an attractive courtyard garden with boundaries defined by a mixture of brick and flint walls and fencing. Pedestrian gate providing access to the side. Small brick outbuilding. 
Local Authority  Mid Suffolk District Council. Council tax band B. 
Services  Mains water, drainage and electricity. Electric heating. 
Disclaimer  Town & Village Properties (and its subsidiaries and their joint Agents where applicable) for themselves and for the vendors or lessors of this property for whom they act, give notice that (I) these particulars are a general outline only for the guidance of prospective purchasers or tenants, and do not constitute the whole or any part of an offer or contract (II) Town & Village Properties cannot guarantee the accuracy of any description, dimensions, references to conditions, necessary permissions for use and occupancy and other details contained herein and prospective purchasers or tenants must not rely on them as statements of fact or representations and must satisfy themselves as to their accuracy, (III) No employee of Town & Village Properties (and its subsidiaries and their joint Agents where applicable) has any authority to make or give any representation or warranty or enter into any contract whatever in relation to the property, (IV) Town & Village Properties (and its subsidiaries and their joint Agents where applicable) will not be liable in negligence or otherwise, for any loss arising from the use of these particulars and Town & Village Properties (and its subsidiaries and their joint Agents where applicable) have not tested any apparatus, equipment, fixtures and fittings or services and so cannot verify that they are in working order or fit for the purpose. A buyer is advised to obtain verification from their Solicitor, (V) Photographs will only show certain parts of the property and assumptions should not be made in respect of those parts of the property that have not been photographed. (Items or contents shown in the photographs are not included as part of the sale unless specified otherwise. It should not be assumed the property will remain as shown in the photograph. Photographs are taken using a wide-angle lens. 
Property Ref: 57995_100570001689
2 Bedroom Terraced House | Guide Price £215,000
A charming two bedroom characterful cottage standing proudly on Needham Market’s historic High Street, with pretty court...
Creeting St. Mary, Ipswich, Suffolk
Land | Guide Price £190,000
An exciting opportunity to acquire a building plot with full planning permission for the erection of a four bedroom deta...
Great Blakenham, Ipswich, Suffolk
2 Bedroom Mobile Home | Guide Price £120,000
A 2 BEDROOM park home for the over 55's enjoying a 'tucked away' position within this popular park offering off-road par...
Creeting St. Mary, Ipswich, Suffolk
3 Bedroom Semi-Detached House | Guide Price £250,000
A striking, spacious & conveniently situated three bedroom semi-detached house, offering a great deal of potential & boa...
4 Bedroom End of Terrace House | Offers in excess of £250,000
A spacious four bedroom end of terrace house located in a tucked way position & offering a sizeable brick outbuilding &...
2 Bedroom Chalet | Guide Price £270,000
A spacious two bedroom detached chalet requiring modernisation, yet offering a great deal of potential & with extensive...
 
                            Town & Village Properties (Needham Market)
High Street, Needham Market, Suffolk, IP6 8DQ
Use our short form to request a valuation of your property.
Request a Valuation