- DESIRABLE RUSHMERE ST ANDREW
- THREE BEDROOM COTTAGE
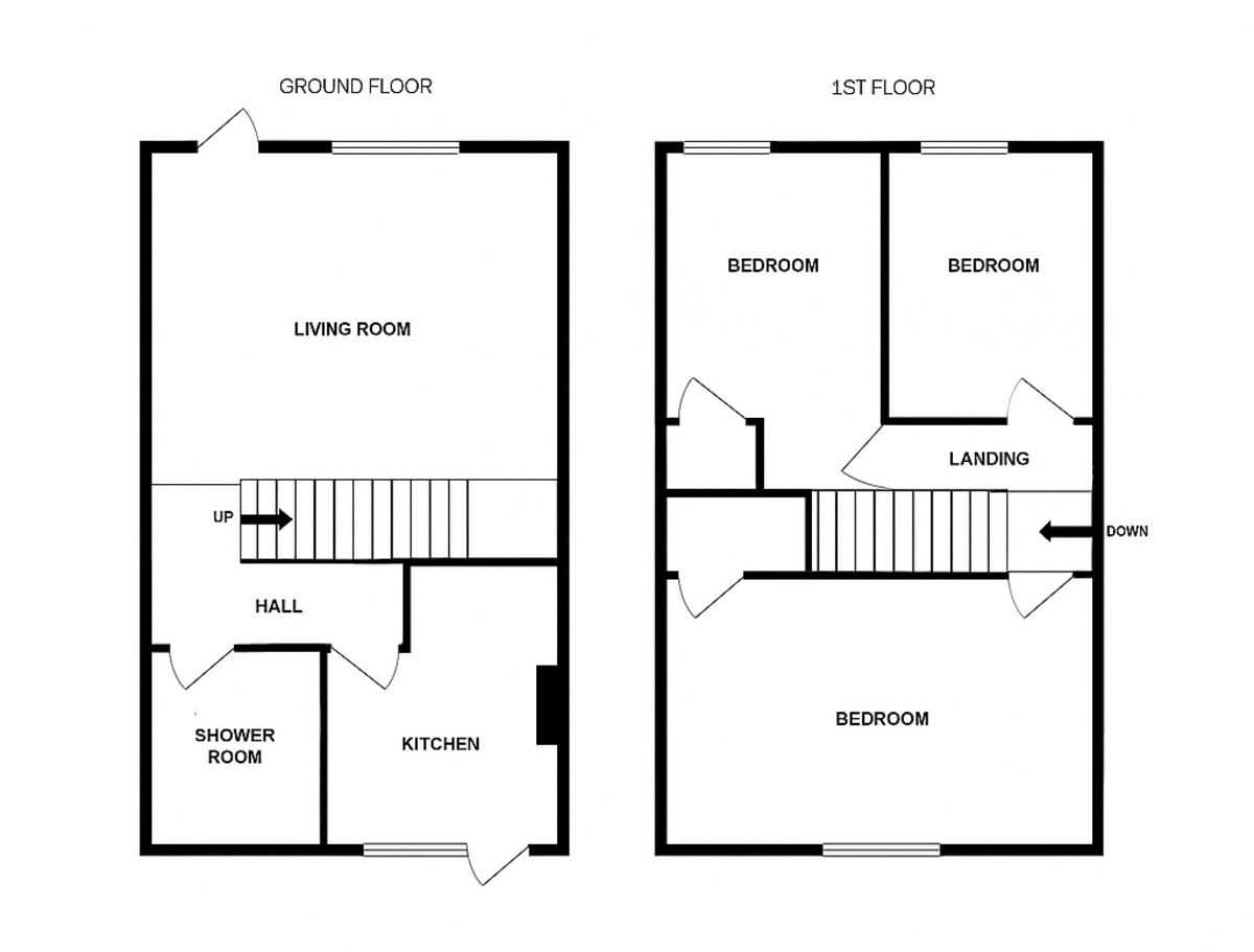
- LIVING ROOM
- GROUND FLOOR SHOWER ROOM
- FIELD VIEWS TO FRONT AND REAR
- CLOSE TO IPSWICH HOSPITAL AND LOCAL SHOPS
- OFF ROAD PARKING
- BEAUTIFUL FEATURES
  NO ONWARD CHAIN. We present to the market Oak Cottage, a 3 bedroom Cottage on the outskirts of Ipswich, in Rushmere St Andrew. This cottage has views overlooking fields front and back and has the convenience of being only a few minutes to Ipswich Hospital and local shops. 
LIVING ROOM 15' 10" x 15' 8" (4.83m x 4.78m) Entrance door to living area, with exposed beams, electric fire, wood style flooring and window to front aspect. 
INNER LOBBY  With Stairs off and door to:- 
KITCHEN 9' 2" x 8' 9" (2.79m x 2.67m) Kitchen compromises of base and eye level cupboards and drawers with roll top work surfaces, single sink drainer, tiled splash back, space for oven and plumbing for washing machine, wood style flooring, patio doors to rear garden. 
SHOWER ROOM  Shower Cubicle, hand wash basin, W.C. tiled floor, radiator, extractor and window to rear. 
FIRST FLOOR LANDING  Meter cupboard and doors to:- 
BEDROOM ONE 15' 8" x 9' 2" (4.78m x 2.79m) Window to rear aspect, cupboard housing boiler, carpet and radiator. 
BEDROOM TWO 9' 8" x 8' 1" (2.95m x 2.46m) Window to rear aspect and radiator. 
BEDROOM THREE 7' 5" x 6' 5" (2.26m x 1.96m) Window to rear aspect, cupboard and radiator. 
OUTSIDE  Front Garden with hardstanding for off road parking.
Rear garden with patio area, fence enclosed and gate to field at the bottom of the garden. 
COUNCIL TAX  Ipswich Borough Council - Band B - 1,834.42 (25/26) 
NEAREST SCHOOLS (.GOV ONLINE)  Heath Primary School
St Alban's High 
BROADBAND & MOBILE PHONE COVERAGE  Broadband- To check the broadband coverage available in the area go to
https://checker.ofcom.org.uk/en-gb/broadband-coverage
Mobile Phone- To check mobile phone coverage in the area go to
https://checker.ofcom.org.uk/en-gb/mobile-coverage 
STAMP DUTY LAND TAX (SDLT)  On all property and land transactions, the buyer needs to be aware that there is potentially a stamp duty land tax amount to pay on their completed purchase.
The link below will take you to the government online calculator to assist you with working out the cost for this tax and if it is applicable to you.
www.tax.service.gov.uk/calculate-stamp-duty-land-tax/!/intro 
DIGITAL MARKETS, COMPETITION AND CONSUMER ACT 2024 (DMCC)  Your Ipswich Ltd has not tested any electrical items, appliances, plumbing or heating systems and therefore cannot testify that they are operational. These particulars are set out as a general outline only for the guidance of potential purchasers or tenants and do not constitute an offer or contract. Photographs are not necessarily comprehensive or current and all descriptions, dimensions, references to condition necessary permissions for use and occupation and other details are given in good faith and believed to be correct but should not be relied upon as statements of, or representations of, fact. Intending purchasers or tenants must satisfy themselves by inspection or otherwise as to the correctness of each of them. We have taken steps to comply with the Digital Markets, Competition and Consumer Act 2024 (DMCC), which require both the seller and their agent to disclose anything, within their knowledge, that would affect the buying decision of the average consumer. If there are any aspects of this property that you wish to clarify before arranging an appointment to view or considering an offer to purchase, please contact us and we will make every effort to be of assistance.
Your Ipswich Ltd, as part of their service to both vendor and purchaser, offer assistance to arrange mortgage and insurance policies, legal services, energy performance certificates, and the valuation and sale of any property relating to any purchaser connected to this transaction. Your Ipswich Ltd confirms they will not prefer one purchaser above another solely because he/she has agreed to accept the offer of any other service from Your Ipswich Ltd. Referral commission (where received) is in the range of £60 to £200. 
Property Ref: 58007_100138005309
3 Bedroom Semi-Detached House | Guide Price £250,000
A very well presented, thoroughly modernised and remodelled, three bedroom semi-detached family home of comfortable prop...
3 Bedroom Terraced House | Guide Price £250,000
CHAIN FREE - An exceptional, three double bedroom extended over-passage attached family home of deceptively impressive p...
2 Bedroom Semi-Detached Bungalow | £250,000
NO ONWARD CHAIN - We are delighted to be offering for sale this 2 bedroom semi-detached bungalow located to the South-We...
Fonnereau Road, Ipswich, Suffolk
2 Bedroom End of Terrace House | £255,000
A rare opportunity to purchase the freehold interest in the Iconic Grade II listed Purple shop located at the bottom of...
3 Bedroom Semi-Detached House | £260,000
NO ONWARD CHAIN - Your Ipswich Estate Agents are delighted to be offering for sale this 3 bedroom semi-detached house lo...
Plummers Dell, Great Blakenham, Ipswich, Suffolk
3 Bedroom Semi-Detached House | Guide Price £260,000
OFFERED WITH NO ONWARD CHAIN - A delightful semi-detached three-bedroom family home set amongst similar properties withi...
 
                            Your Ipswich (Ipswich)
125 Dale Hall Lane, Ipswich, Suffolk, IP1 4LS
Use our short form to request a valuation of your property.
Request a Valuation